
©︎ Rex Chu – OS Studio
〈基隆太平小学校(Taiping Elementary School, Keelung)〉は、台湾の基隆市太平区に建つ旧小学校を再生した、展示場、書店、店舗を備えた建築です。
台北を拠点に活動するKHAA(Kuo+Huang and Associates)が設計しました。
注目ポイント
- 廃校を開放し、都市と自然を縫合する「道」として設計
- 新たに埋め込まれた木造構造が生み出すシークエンス
- 校舎に残された痕跡を継承した、来訪者の記憶を呼び起こす装置
(以下、KHAAから提供されたプレスキットのテキストの抄訳)

©︎ Studio Millspace

©︎ Rex Chu – OS Studio
西港の丘に佇む太平小学校は、基隆というまちの興亡を静かに見守り続けてきた証人である。1960年代、西埠頭で働く港湾労働者の子供たちに教育の場を提供するべく設立されたこの学校は、一時は繁栄を極めた。しかし、産業構造の変化や人口流出、そして少子化の波には抗えず、2017年、その歴史に幕を下ろすこととなった。

©︎ Studio Millspace
迷路のように入り組んだこの丘の町において、私たちは海と山をつなぐ1本の道を構想した。それは埠頭を出発点とし、標識に導かれながら丘を登り、旧太平小学校を通り抜けて、丘の背後に広がる登山道へと至るルートである。
しかし、都市と森林、人工と自然を織りなす道という想像上の風景を、いかにして現実のものとして定着させるべきか、それが課題であった。

Site plan

©︎ Rex Chu – OS Studio
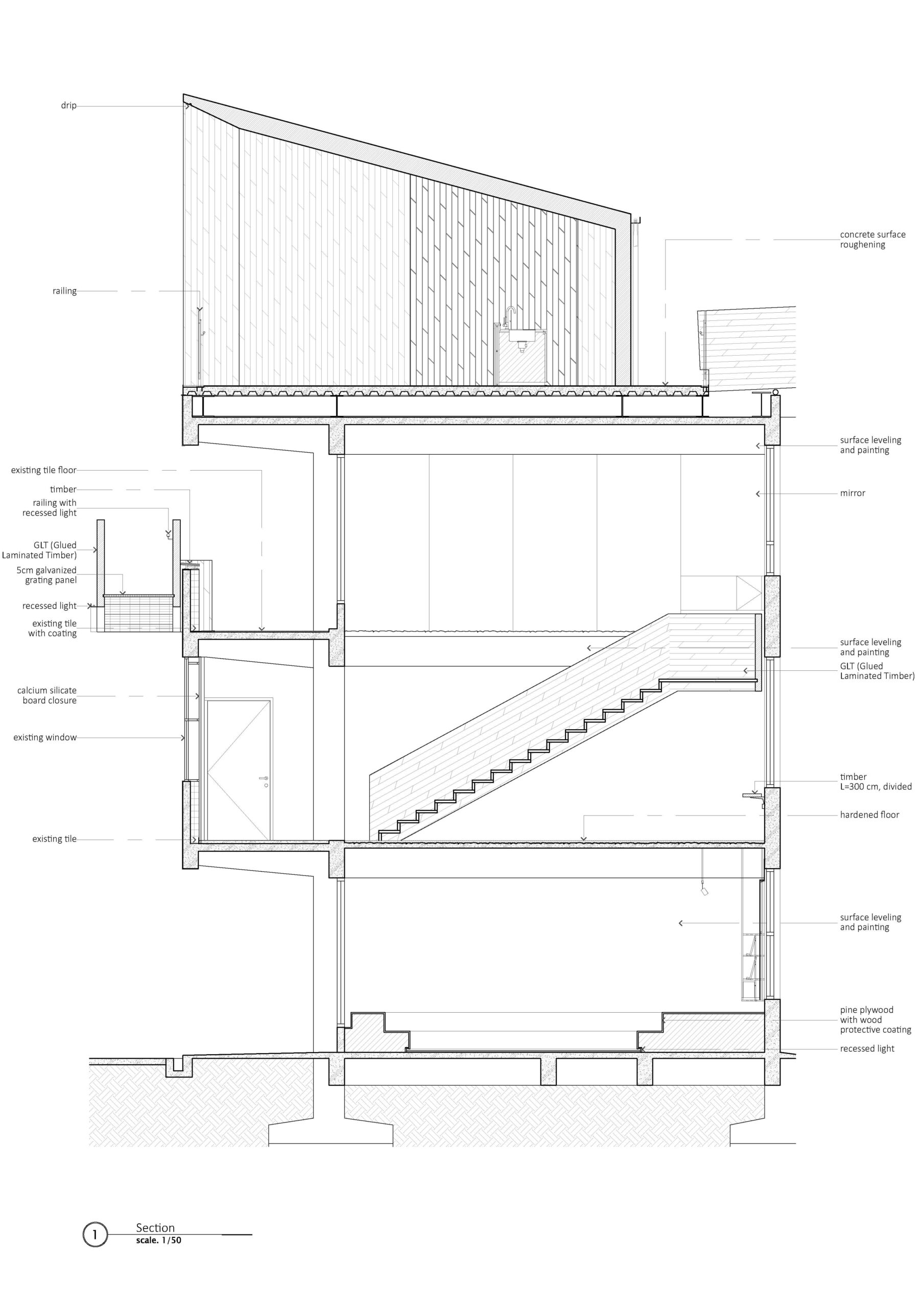
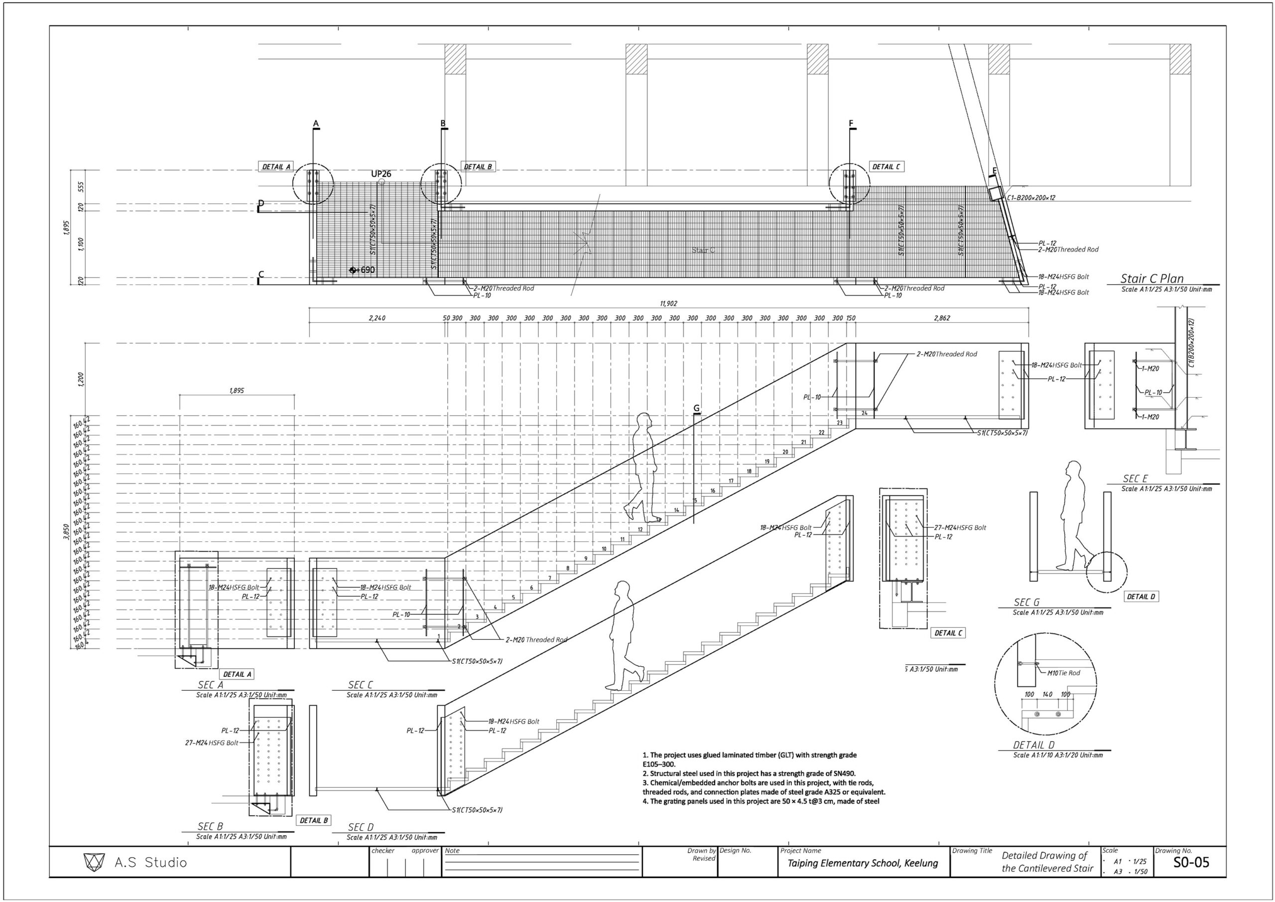
まずは既存の壁を取り壊し、かつて囲われていた校庭を公共空間として街へ開放することから始めた。 新たに加えられた構造物は、すべて木造で構成されている。人々をより高い場所へと誘う片持ち階段、港を見渡し到着するフェリーの汽笛に耳を傾けるための小さな屋上パビリオン、そして敷地の最奥部には、その先のハイキングコースへと手を伸ばすように18mのスカイブリッジが架けられている。

©︎ Studio Millspace

©︎ Rex Chu – OS Studio
元の校舎は明確な構造的リズムによって定義されており、2つの階段室が建物を前・中・後の3区画に分節していた。この既存構成を活かし、それぞれの区画に異なる役割を与えた。

Isometric
入口付近の前区画には活気ある書店を設け、かつての「学びの場」としての役割を継承させた。床スラブや壁の一部を開放することで空間に流動性を生み出し、山々の景色を内部へと引き込んでいる。基隆の読書室として機能するこの書店は、同時に街の誰もがくつろげる「居間」でもある。校舎に残された使い込まれた机や椅子は、そのまま読書や休憩に利用され、訪れる人々と通り過ぎる人々との間に、新たな詩的なつながりを紡ぎ出している。

©︎ Rex Chu – OS Studio

©︎ Rex Chu – OS Studio
中央部では、意図的に建物を廃墟のような状態まで剥き出しにした。床スラブ、アルミサッシ、一部の間仕切り壁、さらには1階教室の段差床までも撤去した。この大胆な操作により、外部広場の舗装を建物内へと延長させ、内と外の境界を意図的に曖昧化している。
奥の区画に関しては、数年前に市が実施した軽微な改修状態をそのまま保存した。

©︎ Rex Chu – OS Studio

©︎ Rex Chu – OS Studio

©︎ Rex Chu – OS Studio

©︎ Studio Millspace

©︎ Studio Millspace
森と都市、過去と現在がこの場所で交錯する。かつて隠されていた、擦り切れた黒板、風化した色彩、空間が本来もっていた質感は、畏敬の念をもって優しく露わにされ、我々に新たな眼差しを促している。子供たちが遊んだ廊下を歩き、授業が行われた教室に足を踏み入れるとき、個人的な記憶が呼び起こされ、それらはやがて集合的な記憶へと流れ込み、都市の共有された潜在意識の一部となる。
この小学校の再生が、新たな共生の道を開き、山と海が交わる地を探求する通路となり、港の歴史を顧みつつ都市の未来を構想する場となることを願う。大切にされた記憶を分かち合うことこそが、まちに新たな息吹をもたらすのである。

©︎ Rex Chu – OS Studio

©︎ Studio Millspace

©︎ Rex Chu – OS Studio

©︎ Studio Millspace

©︎ Studio Millspace

©︎ Studio Millspace

©︎ Studio Millspace

©︎ Rex Chu – OS Studio

©︎ Studio Millspace

Site plan

Ground floor plan

1F plan

2F plan

Roof plan

Section

Section

Detail section

Detail
以下、KHAAのリリース(英文)です。
Project Name: Taiping Elementary School, Keelung
Location: Keelung City, Taiwan
Principal Use: Exhibition, bookstore, shop
Design Group: KHAA (Kuo+Huang and Associates)
Website: https://khaa.com.tw/
Construction Material: Timber, white exterior paint
Site Area: 15,939 m2
Building Area: 1152.27 m2
Total Floor Area: 3035.85 m2
Number of Stories: 4 floors on the ground
Overall Design Time: 2019.05-2021.09
Overall Construction Time: 2021.06-2021.12
CONSULTANT
Engineering & Consulting > Structural: A.S Architecture & Structure
Engineering & Consulting > Mep: Songxing Electromechanical Consulting Co., Ltd.
Landscape Design: Motif Planning & Design Consultants
CONSTRUCTION
Construction Co.: M.H. Timber Design & Engineering
Landscape Design: Motif Planning & Design Consultants
Photography: Rex Chu – OS Studio, Studio MillspaceTaiping Elementary School, Keelung
Perched on the hill of the west harbor, Taiping Elementary School bears witness to the rise and fall of the city of Keelung. It flourished in the 1960s, having been established to provide education for the children of dockworkers on the west wharf. Yet, with the transformation of industries, population outflow, and a declining birthrate, the school was closed in 2017.
In this labyrinthine hill town, we imagined a path connecting the mountain and the sea, setting off from the harbor pier, ascending along Lane 113 guided by the signs, passing through the former Taiping Elementary School, and reaching the hiking trails behind the hill, weaving together the city and the forest, the man-made and the natural. But how could we turn our imagination into reality?We began by taking down the wall, opening the once-walled campus to the city as a public space. All the new interventions are built in wood: a cantilevered stair that invites people to climb higher; a small rooftop pavilion for looking back across the harbor and listening to the horns of arriving ferries; and, at the far edge, an 18-meter skybridge that reaches out to meet the hiking trail beyond. The original school building was defined by a clear structural rhythm, with two staircases dividing it into three sections—front, middle, and back. In the front section near the entrance, we introduced a lively bookstore, echoing the school’s former role as a place of learning. We opened portions of the floor slabs and walls to let the spaces flow and to draw the mountain scenery inside. Serving as Keelung’s reading room, the bookstore is also a welcoming living room for everyone in the city. The school’s worn desks and chairs remain for visitors to read or rest on, forming a new, poetic connection with the passing crowd. The back section preserves the light-touch renovation carried out by the city government a few years ago. In the middle section, we intentionally stripped the building back to a state of ruin by removing floor slabs, aluminum doors and windows, some interior partitions, and even the raised platforms of the ground-floor classrooms. This gesture extends the square’s pavement into the building, deliberately blurring the boundary between inside and out.
Forests and the city, past and present, converge here. The worn blackboards, the weathered hues, and the earliest textures of the space that were once hidden, have been gently uncovered with reverence and invite us to behold them anew. Strolling down the hallway where children once played and stepping into the classrooms where lessons were once taught, personal memories are summoned and flow into a collective remembrance, becoming part of the city’s shared subconscious. May the rebirth of this elementary school open a path of new symbiosis, a passage to explore where mountains meet the sea, and a platform from which we can reflect on the harbor’s history and envision the city’s future. Sharing cherished memories breathe new life into the city.
KHAA 公式サイト
https://khaa.com.tw