
©︎ Rungkit Charoenwat
タイ・バンコクに建つ〈テラリウムハウス(Terrarium House)〉は、街中でありながらも都市の喧騒から離れることのできる、自然に包まれた建築家の自邸です。
バンコクを拠点とする建築事務所 Unknown Surface Studioが設計しました。
注目ポイント
- 旗竿地だからこそ実現した聖域のような空間
- 既存樹木をガラスケースのように包み込む「テラリウム」のような中庭
- 曲面ガラスに包まれた、角のない流動的な住空間
(以下、Unknown Surface Studioから提供されたプレスキットのテキストの抄訳)

©︎ Rungkit Charoenwat
都会の喧騒が絶え間なく響くバンコクのラートプラーオ。その過密な都市構造の中心に、ひっそりと静寂が潜んでいる。〈テラリウムハウス〉は、周囲を威圧するように叫ぶ構造物ではなく、ささやくような存在としてそこに現れる。
四方を隣家に囲まれた「スプーン状」の狭小地という厳しい制約こそが、この聖域を生み出すきっかけとなった。ここでは建築が内側へとその眼差しを向け、閉ざされた土地を、光と影、そして静寂が支配する私的な世界へと変容させている。

©︎ Rungkit Charoenwat

©︎ Rungkit Charoenwat
この住居への旅は、幅4mという細いアクセス路、いわばスプーンの柄の部分から始まる。建築家はこの空間を単なる物理的な入口としてではなく、魂を移行させる場として演出した。
天然石の壁に挟まれ、伸びやかな木製天井に覆われたこの細長いトンネルは、訪れる者の感覚を圧縮し、神秘と期待の瞬間を創出する。それは外界の混沌を洗い流し、内なる聖域を顕在化させるための、厳かな儀式の通路となるのである。

©︎ Rungkit Charoenwat
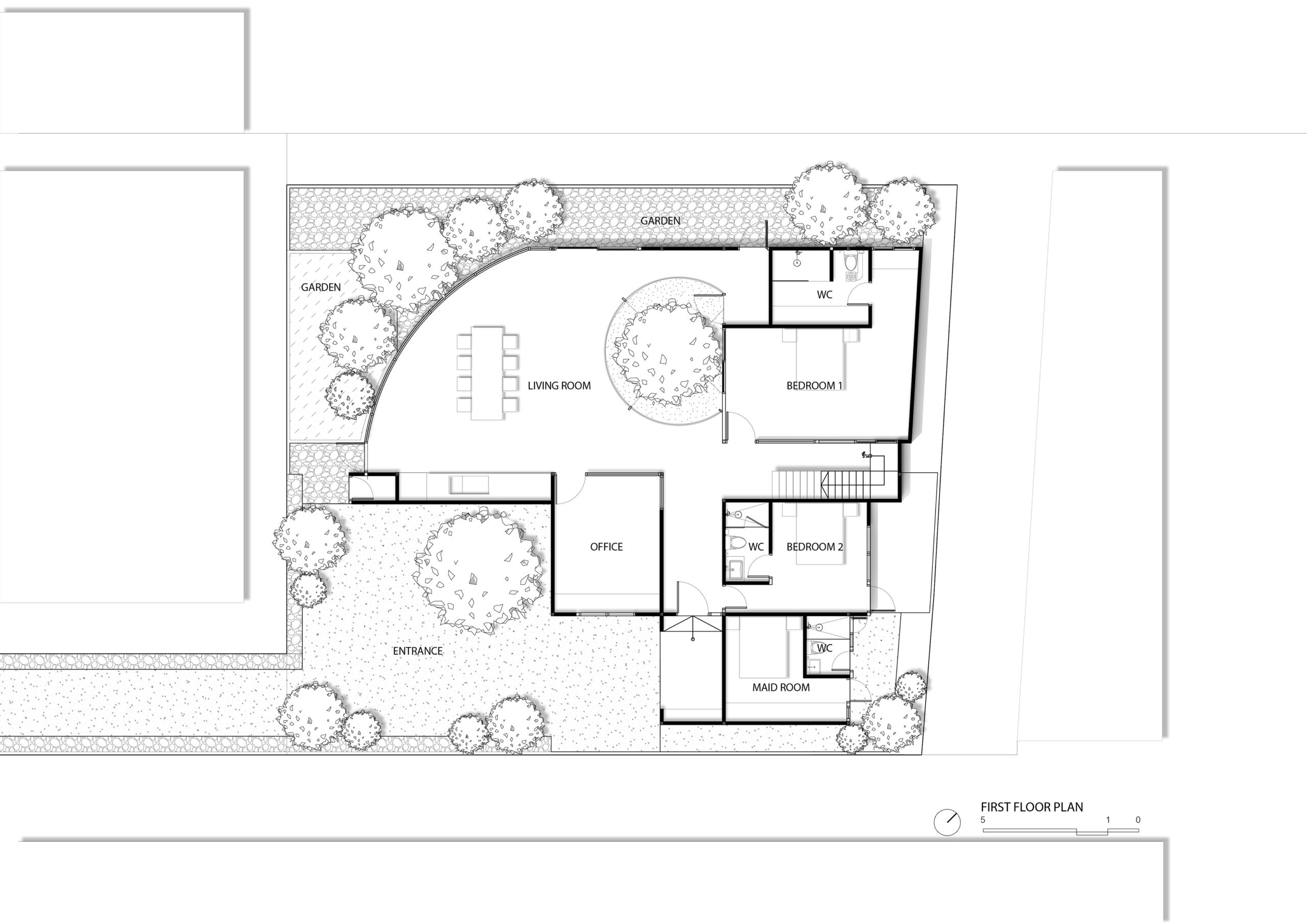
敷居をまたぐと空間は一気に広がり、この家の鼓動する心臓部である中庭へと至る。敷地内にあった原生樹木を保存しつつ、建物はまるでガラスケースのように自然を包み込む。まさに生命が保護されながら繁栄する「テラリウム」である。
この緑の核は受動的な光源としても機能し、葉の間から差し込む陽光が、木製の内装に刻々と移り変わる影を描き出す。日々の情景を演出するその空間の雰囲気は、太陽の角度と共に呼吸し、変化し、1日のあらゆる時間帯において異なる情調を生み出している。

©︎ Rungkit Charoenwat

©︎ Rungkit Charoenwat
四方を隣接する建物に囲まれていながらも、内部空間は無限の広がりを感じさせる。2層分の高さを誇るリビングエリアが垂直方向の自由を生み出し、曲面ガラス壁が空間の「角」を溶かすことで、リビングルーム、ワークスペース、そして上階空間との間に視覚的な流動性を実現している。
2階はプライベートなペントハウスとして機能し、アートコレクションと主寝室を収容するが、これらすべてが中央のヴォイドとの連続的な対話によって結ばれている。

©︎ Rungkit Charoenwat

©︎ Rungkit Charoenwat
テラリウムハウスを際立たせているのは、魂を込めた素材感(マテリアリティ)である。建築家自身の自邸であるこの住まいは、職人技のマニフェストとも言える仕上がりを見せる。
7種類もの木材を厳選し、化学的な脱色を施すことで、ヒノキを思わせる統一された調和の取れた色調を実現した。この視覚的な柔らかさの内側には、構造的な独創性が内包されている。柱のない設計を採用し、鋼とタキアン材のガラスフレームだけでアルミ屋根の重量を支えている。これは、構造と質感を最も誠実かつ美しい形で露わにした、「素材の真実」への賛歌である。

©︎ Rungkit Charoenwat
ここでは、ランドスケープは後付けの要素ではなく、空間の「共創者」として扱われている。入口に立つ細長い高木は天井の隙間を貫き、視線を空へと誘う。内部では大きく広がる樹葉が自然のカーテンとなり、視線を遮ることで完全なプライバシーを確保する。
〈テラリウムハウス〉において、建築と自然は単に共存するだけではない。互いに抱擁し合い、都会の喧騒が遥か彼方にあるかのような、時を超えたオアシスを創り出しているのである。

©︎ Rungkit Charoenwat

©︎ Rungkit Charoenwat

©︎ Rungkit Charoenwat

©︎ Rungkit Charoenwat

©︎ Rungkit Charoenwat

©︎ Rungkit Charoenwat

©︎ Rungkit Charoenwat

©︎ Rungkit Charoenwat

©︎ Rungkit Charoenwat

©︎ Rungkit Charoenwat

©︎ Rungkit Charoenwat

©︎ Rungkit Charoenwat

©︎ Rungkit Charoenwat

©︎ Rungkit Charoenwat

©︎ Rungkit Charoenwat

©︎ Rungkit Charoenwat

©︎ Rungkit Charoenwat

©︎ Rungkit Charoenwat

©︎ Rungkit Charoenwat

1st Floor

2nd Floor

Roof Plan

Section
以下、Unknown Surface Studioのリリース(英文)です。
General Information
Project Name: TERRARIUM HOUSE
Completion Year: 2025
Scale: 450 sqm.
Project Location: Bangkok , Thailand
Architecture Firm: Unknown Surface Studio
Project Architect : REAL AS TECT
Website: https://unknownsurfacestudio.com/
Contact e-mail: unknownsurfacestudio@gmail.com
Lead Architects: Cievanard Nattabowonphal, Piyanat Songkhorh, Nonglak Boonsaeng
Photo credit: Rungkit CharoenwatProject Description :
A Secret Sanctuary of Light and Craftsmanship
Location: Ladprao, Bangkok, ThailandIn the heart of Ladprao’s dense urban chaotic fabric, where the city creates a restless hum, lies a hidden stillness. “Terrarium House” emerges not as a structure that shouts, but one that whispers—a sanctuary born from the constraints of a spoon-shaped, landlocked plot surrounded by neighbors on all four sides. Here, the architecture turns inward, transforming a blind piece of land into a private world of light, shadow, and silence.
The Sequence of Arrival
The journey begins at the narrow, 4-meter wide access—the handle of the spoon. The architect choreographed this space not merely as an entrance, but as a transition of the soul. Flanked by natural stone walls and sheltered by a stretching wooden ceiling, this elongated tunnel compresses the senses, creating a moment of mystery and anticipation. It creates a ceremonial passage that washes away the chaos of the outside world before unveiling the sanctuary within.A Living Glass Cabinet
Crossing the threshold, the space expands into the home’s beating heart: the Central Courtyard. Preserving the site’s original trees, the house wraps around nature like a glass vitrine—a “Terrarium” where life flourishes protected. This green core functions as a passive light source, orchestrating a daily performance where sunlight filters through leaves, painting shifting shadows upon the wooden interiors. The atmosphere of the house breathes and transforms with the sun’s angle, creating a different mood for every hour of the day.Seamless Flow & The Penthouse
Despite the enclosing neighbors, the interior feels boundless. A Double Space living area creates vertical freedom, while curved glass walls dissolve corners, allowing visual fluidity between the living room, workspace, and the upper levels. The second floor operates as a private Penthouse, housing an art collection and the Master Bedroom, all connected by this continuous dialogue with the central void.The Master Builder’s Craft
What sets Terrarium House apart is its soulful materiality. As the residence of a master contractor, the home serves as a manifesto of craftsmanship. Seven distinct species of wood were meticulously selected and chemically bleached to achieve a singular, harmonious hue reminiscent of Hinoki cypress. This visual softness conceals structural ingenuity; the house employs a column-free design where steel and Takhian wood glass frames bear the weight of the aluminum roof. It is a celebration of “Truth to Materials,” leaving structure and texture exposed in their most honest and beautiful forms.Architecture of Nature
The landscape is not an afterthought but a co-creator of space. Tall, slender trees at the entrance pierce through ceiling voids, drawing the eye upward to the sky. Inside, spreading foliage acts as a natural curtain, filtering sightlines and ensuring absolute privacy. In this Terrarium House, architecture and nature do not just coexist; they embrace, creating a timeless oasis where the city feels a world away.
Unknown Surface Studio 公式Facebook
https://www.facebook.com/unknownsurfacestudio/