
© Iwan Baan
中国・台湾南部に位置する高雄市に建つ〈衛武営国家芸術文化センター(National Kaohsiung Centre for the Arts)〉は、うねるように広がる屋根と有機的な屋内空間が特徴的な大規模なパフォーマンス複合施設です。
1984年にオランダ・デルフトで設立された専門家集団 メカノー(Mecanoo)が設計しました。
注目ポイント
- 元軍事施設跡地を市民空間へと再生するプロジェクト
- 地域の象徴「バニヤンツリー」から着想した、樹冠のように広がる空間
- 公園の延長として機能する、ランドスケープ的デザイン
- 貨物船のようなスケール感とディテールをもつ外装
(以下、メカノーから提供されたプレスキットのテキストの抄訳)

© Shawn Liu Studio
高雄は、約300万人の人口を擁する活気ある都市である。台湾で2番目に大きな都市であり、世界有数の海港都市の1つでもある。また、台風、高温、多雨、定期的な地震といった、亜熱帯特有の過酷な自然環境にもさらされている。
この新たな140,000m²のパフォーマンス複合施設は、そうした極端な気候条件に対応する必要があった。

© Iwan Baan

© Iwan Baan
本プロジェクトの敷地は、高雄都市圏中心部にある旧軍事施設跡地(約65ヘクタール)である。将来的にはこの地を「セントラルパーク」のような市民空間として再生することが構想されていた。
2006年に初めて訪れた際、この地はまだフェンスに囲まれた軍用地であり、野生の犬が多く生息していた。また、数十年にわたり絡み合って成長したバニヤンツリーが密生していた。空中に伸びた枝が地面に達し、新たな幹を形成しながら広がるその姿は、まるで巨大な傘のようであった。

© NAARO
このバニヤンツリーの形態は、高雄の気候を体現している。日差しや雨を遮る広大な樹冠は、湿度の高い気候に適応した自然の構造である。亜熱帯地域では日没が18時から19時頃であり、日が沈むと同時にまちがにぎわいを見せる。涼しくなる夕暮れ時には、人々が街を歩き、買い物をし、屋外で食事を楽しむ。
木陰では人々が踊り、音楽を奏で、演劇を上演し、太極拳を練習するなど、多様なパフォーマンスが行われている。台湾を初めて訪れた際に五感で感じたこれらの光景が、この特異な都市の雰囲気を建築に活かしたいという衝動を掻き立てた。

© Harry Cock

© mecanoo architecten
私たちは、バニヤンツリーが、公式・非公式なパフォーマンス空間の融合を可能にするヒントになるのではないかと考えた。これにより建築は24時間活気を帯び、公園の自然な延長として機能することになる。
良い公共建築には良質な公共空間が不可欠である。この理念は私たちが手がける公共建築に対する根幹的な信条であり、たとえば〈バーミンガム図書館(Library of Birmingham)〉の沈床式円形劇場や、〈ラ・ロトハ・デ・リェイダ(La Llotja de Lleida)〉の建物下に設けられた都市型ステージのような空間にも反映されている。

© Harry Cock
形式的には異なるこれらの建築に共通するのは、それぞれの立地、文化、気候と完璧に調和している点である。バニヤンツリーの開かれた保護的な形状が、この設計の出発点となった。
その広大な樹冠を模した「バニヤン・プラザ」は、涼しい風が流れる部分的に囲まれた公共空間である。4つのパフォーマンスホールが「幹」となり、波打つ屋根を支える構造の間に、地面から高さ5mまで起伏する地形が形成されている。屋根が地面と接する箇所では、建物が円形劇場となり、周囲の公園と一体化して舞台装置のような風景を生み出している。

Concept

Concept
各パフォーマンス会場とロビーは独自の雰囲気を有しながらも、一体となった空間を構成している。バニヤン・プラザの壁と連続する天井面は中立的な白で構成され、人工照明やプロジェクションによりその雰囲気を自在に変化させることができる。膨らんだプラザ空間に吊り下げられた12のシャンデリアにより、夜間には建物全体が華やかに変貌する。
ただし、問題は残された。長さ225m、幅160mに及ぶ「貨物船級」のスケールを、どのような素材で実現すべきかという問いである。スタッコ、タイル、アルミニウム、鋼鉄、いずれが最適なのか。

© Sytze Boonstra
2008年、我々はミラノ・サローネのためのパビリオン設計を依頼され、〈バニアンの一片(A Piece of Banyan)〉と題する長さ20m、幅3.5mの1/4スケールモデルを製作した。これは、バニヤン・プラザにて想定していたセラミックタイル張り工法を実験的に検証する目的であった。
中国陶器に見られるクラック模様を模したタイルを使用し、環境照明のテストも同時に行った。色彩や雰囲気の変化は魅力的であったが、曲面外壁へのタイル施工は課題を残した。特にミラノでの豪雨により、天井へのタイル接着は不可能であった。

© Iwan Baan

© Sytze Boonstra
その後、外装素材の探求は続けられ、高雄の船舶建造産業における高度な技術の活用というアイデアに行き着いた。私たちは、バニヤン・プラザの外装を「ラグジュアリーなヨット」ではなく「貨物船」のディテールで仕上げるべきだと提案した。
照明やバナー、布などを吊るすためのポイントも設け、完璧な滑面ではなく、耐久性がありメンテナンス性に優れた外装を造船業者の手で実現させた。最終的に、この建物は「陸上に浮かぶ船」としての姿を目指すこととなった。

© Harry Cock

© Harry Cock
4つのパフォーマンスホールは、それぞれ異なる音響的課題を抱えているため、音響設計家アルバート・シュー(Albert Xu)と連携しながら設計が進められた。

© Shawn Liu Studio

© Ethan Lee
彼は最も複雑な1,981席の「コンサートホール」について、1:10スケールの模型を用いて性能試験を実施した。我々はこの大規模ホールにおいても、観客がピアニストの手元を確認できるほどの親密さを目指していた。
ステージを中心に据え、段状のテラス席が周囲を取り囲む「段々畑」形式の構成を採用し、観客がパフォーマンスに近い位置で鑑賞できるよう設計された。来場者はオーク材に包まれた1階から、螺旋状のスロープを経て黄金色の座席へと導かれる。

© National Kaohsiung Center for the Arts

© National Kaohsiung Center for the Arts
2,236席の「オペラハウス」は、3層の円形バルコニーを備えた馬蹄形の構成を取る。赤と紫の台湾花模様の布地が座席を彩り、暗色の壁面と対比を成している。
この劇場は70人超のオーケストラを擁する西洋オペラに対応する一方、吊り下げ式の音響キャノピーの操作により、中国オペラにも適応可能な音響調整が可能である。

© National Kaohsiung Center for the Arts
メカノーブルーの1,210席をもつ「プレイハウス」は、演劇やダンスなど多様な公演に対応するため、設計の核に「柔軟性」が据えられている。舞台の構成は可変で、正面から観覧するプロセニアム形式から、三方から囲む突き出し舞台形式への変形が可能である。

© Sytze Boonstra

© Iwan Baan
434席の「リサイタルホール」は、4つのホールの中で最も親密な雰囲気を特徴としている。非対称の構成と2階建ての客席により、室内楽やリサイタルに最適化されている。
座席はコンサートホールと同様の黄金色の布で覆われ、壁面にはオーク材が用いられている。ホール上部には音吸収カーテンで囲まれた円形構造が設けられており、演目に応じて残響時間の調整が可能となっている。

© National Kaohsiung Center for the Arts

© Sytze Boonstra

© Ethan Lee


© Iwan Baan

© Ethan Lee

© Ethan Lee

© Shawn Liu Studio

Site Plan

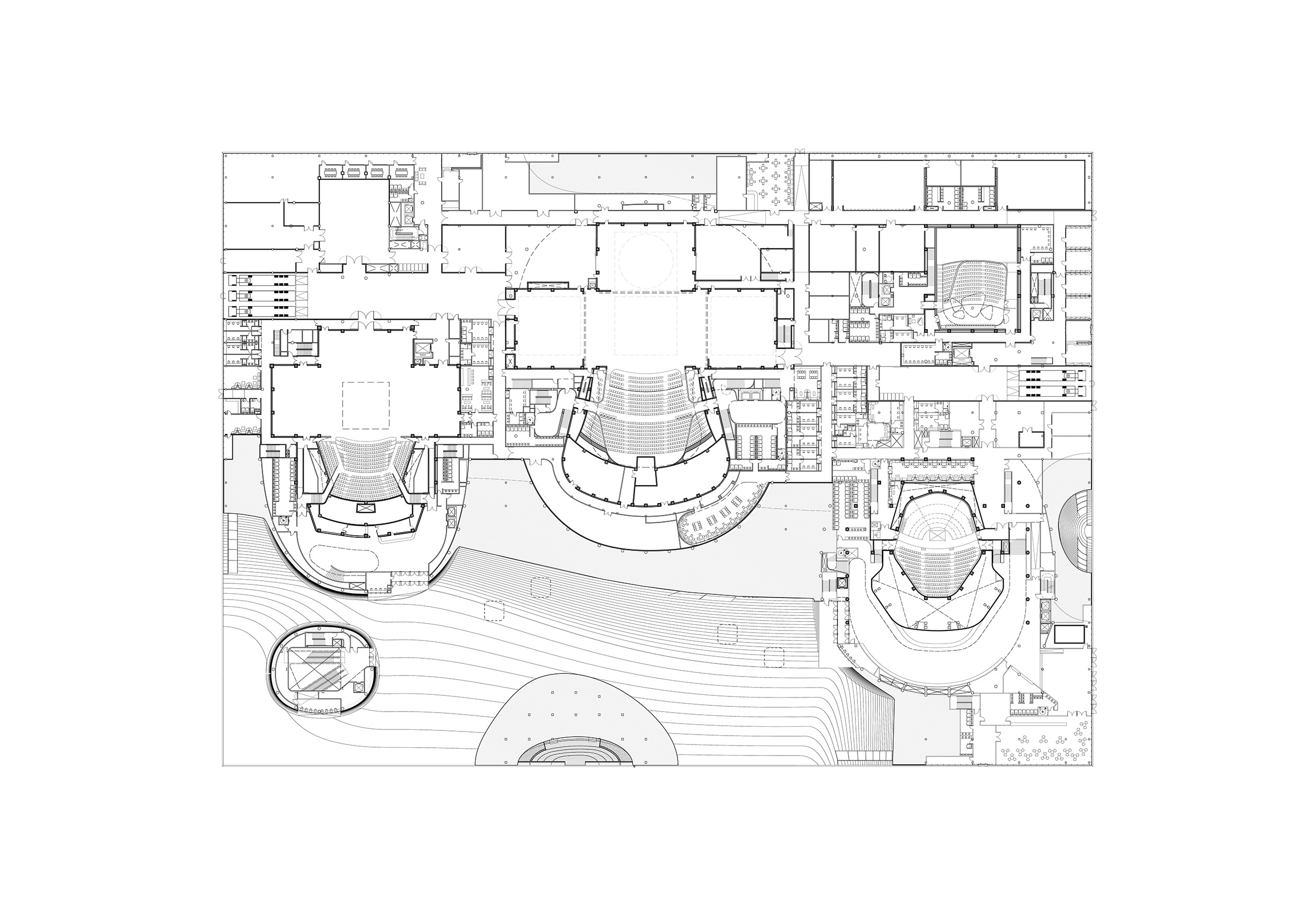
1st Floor Plan

2nd Floor Plan

Section – The Banyan Plaza

Section – The Concert Hall and The Recital Hall

Section – The Opera House

Section – The Playhouse

Architecture Surface Diagram
以下、メカノーのリリース(英文)です。
An acoustic landscape
–
National Kaohsiung Centre for the Arts
–
Kaohsiung, TaiwanKaohsiung is an informal, lively city of almost three million inhabitants. Not only is it the second largest city in Taiwan and one of the world’s largest sea ports, but also host to a dramatic sub-tropical climate of typhoons, high temperatures, heavy rainfall and regular earthquakes. The new 140,000 square-metre performance complex must cope with all of these extremes.
Barking dogs and banyan trees
The location for this building is a former sixty-five hectare military compound in the centre of the metropolitan area of Kaohsiung – a place which is intended to become a sort of ‘Central Park’ for the city. When we first visit the site in 2006 it is still a fenced-off zone of military barracks occupied by a lot of wild, barking dogs. It’s also dense with banyan trees, their twisting trunks and branches having gradually interlocked over decades. Their aerial shoots grow down into the soil forming additional trunks, spreading over an astonishingly wide area, and the crowns of these trunks become one, like a huge umbrella. According to local legend, Alexander the Great once sheltered his entire army beneath the crown of a single tree.The form of the banyan reflects the local climate. Its wide crown, providing shelter against the sun and rain, is a perfect expression of Kaohsiung’s humid atmosphere. In the sub-tropics the sun sets at around six or seven o’clock and, just as it disappears beneath the horizon, the city comes to life. During these twilight hours as the temperature cools people stroll the streets, shop for their groceries, and eat outside. Under the canopies, as well as under the trees, informal performances occur: people dance, play music, perform plays, or practice Tai Chi. What we see, hear, feel, taste and smell on this first trip to Taiwan inspires us to somehow harness this unique urban atmosphere.
A continuation of the park
We wonder whether the banyan tree could help us to create a combination of formal and informal performance spaces. In this way the building would be full of life around the clock; a natural continuation of the park. We know that good public buildings need good public space, a mantra which is central to our approach to civic architecture: think of the Library of Birmingham’s sunken amphitheatre, or La Llotja de Lleida’s urban stage beneath a cantilever, using the stairs of an adjacent building as audience seating. The formal qualities of these three buildings are very different but they have one thing in common: they are a perfect match with their respective locations, cultures and climates.The open, protective shape of the banyan tree becomes a springboard for the design. Its expansive sheltered crown becomes the Banyan Plaza, a partially enclosed public space where the cooling wind can freely flow. Between the four formal performance halls, which form the ‘trunks’ that support the undulating roof, a topography rising from ground level to plus five metres becomes part of the park’s landscape. Where the roof touches the earth the building becomes an amphitheatre, open towards the surrounding parkland which, in turn, becomes both its stage and its set.
Cargo ship
Each performance venue and foyer has its own unique atmosphere and together create one fluidly connected space. The walls and continuous ceiling surface of the Banyan Plaza is a neutral white, allowing for artificial light and projections to alter the mood. With twelve chandeliers suspended against the billowing form of the plaza, the building can really dress up for the night! But a question remains: how do you materialise a space the size of a cargo ship, almost 160 metres wide and 225 metres long? Should it be clad in stucco, tiles, aluminium, or steel?A Piece of Banyan
In 2008 we are invited to design a pavilion for the Salone del Mobile in Milan. We decide to build ‘A Piece of Banyan’ – a 1:4 scale model of a sliced fragment, twenty metres long and three and a half metres wide, to research and test the proposed ceramic tile cladding for the Banyan Plaza. We affix tiles to the model reminiscent of the craquelé of Chinese porcelain and we also test the ambient lighting. The changing colours and atmospheres are spectacular; the tile cladding on the curved facades, on the other hand, is less of a success. For one, it’s raining heavily in Milan and is impossible to glue the tiles to the ceiling.We continue our search for the building’s skin and the idea arises to use the finely tuned, locally accessible techniques of Kaohsiung’s ship building industry. We convince everyone that the Banyan Plaza should have the detailing of a cargo ship, and not of a luxury yacht. There should be hoist points, for example, so that lights, banners and fabric can be hung. We don’t want to aim for a perfectly smooth façade – we want to employ the ship builders to do what they do best: create a durable, long-lasting skin on a scale that some contractors would be intimidated by. We ultimately want the building to look like a ship on the land.
The four halls
Each of the four performance halls has its own acoustic challenge, and so we collaborate with acoustician Albert Xu. He constructs a 1:10 scale model to test the performance of the most complicated venue: the 1,981-seat Concert Hall. Despite its size we want the theatre to have an intimate feel. Wouldn’t it be great if every member of the audience could see the hands of the pianist? We choose the shape of a stepped vineyard with a stage at its centre, so that terraces at different floor heights encircle the podium. With seating on all sides of the stage, the audience is in close proximity to the performance itself. The public enters the oak-lined from the ground floor and spiraling ramps lead them to their golden seats.The 2,236-seat Opera House is arranged in the form of a horseshoe with three circled balconies. The seating is upholstered in a mixture of red and purple fabrics with a pattern of Taiwanese flowers, contrasting with the darker walls. This theatre is not only suitable for Western opera, with an orchestra of over seventy musicians, but can also be acoustically adapted to accommodate Chinese opera by manoeuvring a suspended acoustic canopy.
The Playhouse, with its 1,210 seats in Mecanoo Blue, is designed to host a variety of drama and dance performances. Flexibility is the core element in the design of this multifunctional space. The layout is adaptable and can be changed from a typical proscenium stage with the audience in front, to a thrust stage with the audience on three sides.
The 434-seat Recital Hall has the most intimate atmosphere of the four. With its asymmetrical composition and seating across two levels, it is designed for chamber music and recital performances. The seats have the same golden fabric as the Concert Hall and oak lines the walls. The upper part of this hall is enclosed by a circle of sound absorbing curtains, allowing for the reverberation time within the space to be tuned to specific types of performance.
メカノー 公式サイト
https://www.mecanoo.nl/Projects/project/54/National-Kaohsiung-Centre-for-the-Arts