
© Rafael Gamo
メキシコ・ナヤリト州の港町サン・ブラスに位置する〈旧サン・ブラス税関・文化センター(Ex Aduana San Blas / Cultural Center)〉は、1768年に解説された港に建てられた歴史ある旧税関を保存しつつ再生した文化拠点です。
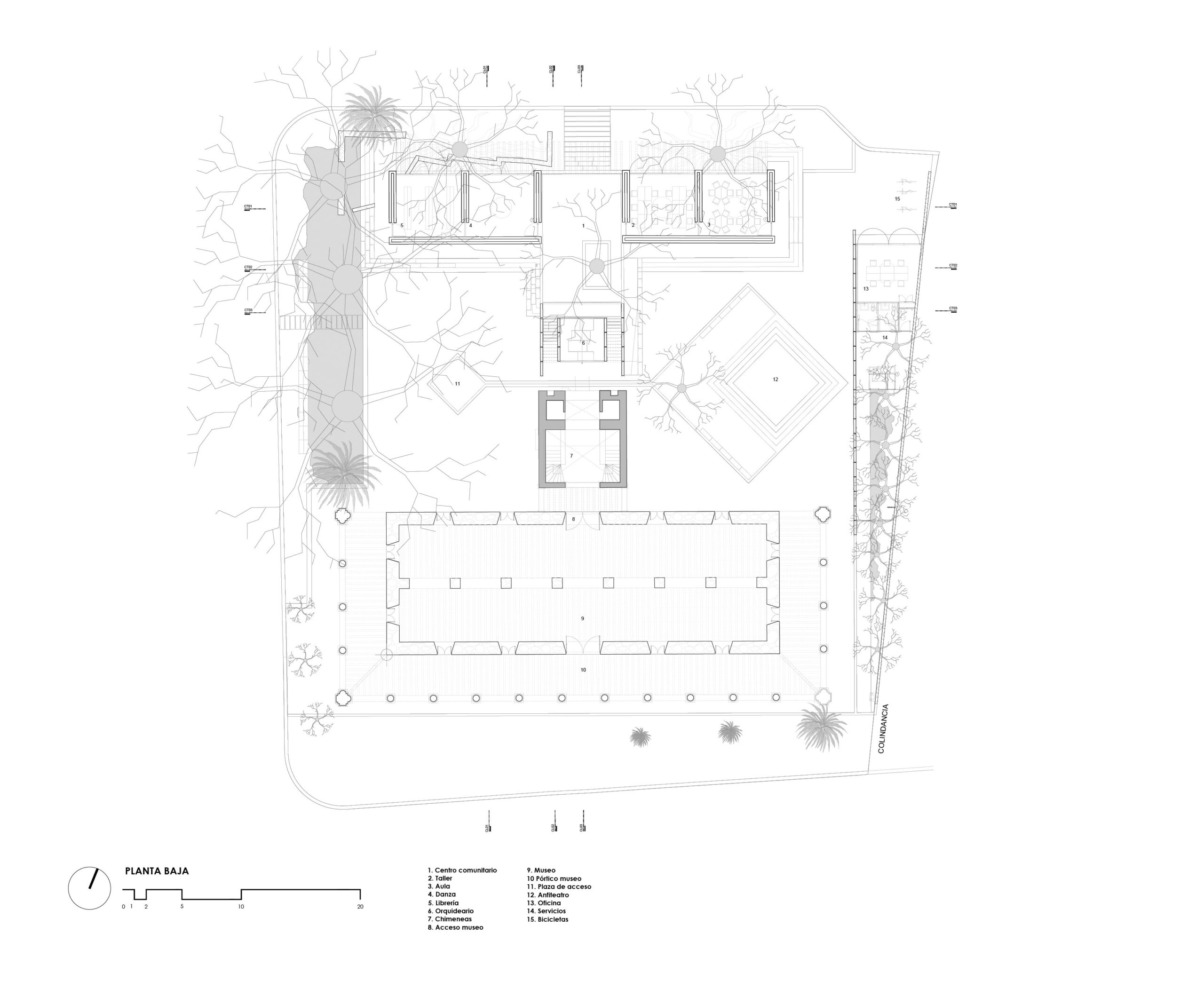
博物館と展示スペースに加え、文化活動の拠点となる工房を備えた空間となっており、メキシコを拠点とする建築デザイン集団 コレクティボc733(Colectivo c733)が設計しました。
注目ポイント
- 元の建物に使われていたアドベ(泥レンガ)を取り入れた新たな構造
- 歴史的建造物と新しい建築が素材・構造・空間構成を通じて融合
- ブリッジ、展望デッキ、垂直通路を組み合わせた歴史的建築をつなぐ立体的な動線
- 動線を通じて建物と港の歴史をたどる「時間旅行」的な空間体験
(以下、コレクティボc733から提供されたプレスキットのテキストの抄訳)

© Rafael Gamo

© Rafael Gamo
1768年、メキシコのヌエバ・ガリシア(メキシコ西部に1531年から1786年まで存在したスペインの植民地)にサン・ブラス港が開設された。この港は太平洋沿岸の防衛拠点として、またアジアからの物資の玄関口としての役割を担っていた。
数年前まで、旧サン・ブラス税関の建物は1階部分と、展示スペースとして活用されていた古い廊下を保持していた。周辺には、手づくりの泥レンガ(アドベ)によるオリジナルの構造物の残骸や、小規模な工房が点在していた。

© Rafael Gamo
歴史的建造物である旧税関の改修は、その復元と地域コミュニティの文化発展を目的として行われた。計画には、博物館と展示スペースに加え、文化活動の拠点となる工房の建設が含まれている。
改修は、まず現存するアドベ部分を補強し、過去の記憶を保存する作業から始まった。その後、地元で生産された新たなアドベを用いて現代的な構造を構築し、広場や工房エリアなどの公共空間が定義された。

© Rafael Gamo
中庭の中心には、工業的意匠を持つブリッジ、展望デッキ、垂直通路が設けられた。これにより訪問者は、歴史的建物と工房の屋上にアクセスできる。
また、メキシコのナヤリト州やハリスコ州に暮らす民族であるウイチョル族の宇宙観を象徴する「シクリ(Sikuli)」の形状をもつ屋外フォーラムも設置され、人間・自然・宇宙のつながりを空間的に表現している。

© Rafael Gamo
4枚のアドベプレートの構成によって、既存建築と新たな構造物、過去と現在、自然と人工物との間に新しい関係性が生み出された。
建物は、風や眺望、光を活かす活動を第2のレベルへと展開し、屋上を文化活動のためのボックスシート空間へと変貌させている。垂直通路は、この港で最も古い建物の記憶をたどる、時間旅行のような体験を提供する。

© Rafael Gamo

© Rafael Gamo

© Rafael Gamo

Axonometric

Plan

East elevation

Section

Section

Section
以下、コレクティボc733のリリース(英文)です。
Ex Aduana San Blas / Cultural Center
Colectivo C733In 1768, the Port of San Blas was established in Nueva Galicia, Mexico, with the purpose of protecting the Pacific coast and becoming a gateway for Asian goods. Until a few years ago, the building of the old San Blas customs still preserved its first level and an old corridor used as an exhibition space. In addition, there are a series of small workshops and remnants of the original structure, made of handmade adobe bricks.
The main objective of the current intervention in the historic building was its recovery and the construction of workshops for the cultural development of the community, accompanied by a museum and exhibition area. The intervention began by consolidating the adobe remnants to preserve the memory of the past. Then, a contemporary structure was created with locally made adobe elements, defining public spaces such as squares and workshop areas.
The heart of the courtyards is inhabited by an industrial-style bridge, a viewing platform and vertical walkway that allows visitors to reach the rooftop of the historic building and the rooftop of the workshops. In addition, there is an outdoor forum shaped like a Sikuli, a Huichol structure that represents the composition of the universe and the connection between human beings, nature, and the universe.
The composition of four adobe planes allowed for a new relationship between the existing building and the new structures, between the past and the present, and between nature and the constructed structures. The building seeks to unfold activities to a second level with other opportunities for wind, views, and light, turning the same rooftops into box seat spaces for cultural activities. The vertical walkway becomes a journey through time in the memory of one of the oldest buildings in this port.
コレクティボc733 公式インスタグラム
https://www.instagram.com/c733_/