
© Mohammad Hassan Ettefagh
イランの歴史ある都市ヤズドに建つ〈アルガヴァン商業プロジェクト(Arghavan Commercial Project)〉は、伝統技術である藤編みをファサード全体に応用した商業施設です。
イランの建築事務所 13 Degrees Architecture Studioが設計しました。
注目ポイント
- ハナズオウの廃枝の活用した、素材の価値を引き出す藤編み
- フレームや藤編み職人への還元を意識した建築コストの配分
- 引き継ぎプロジェクト特有の課題を解決する軽量なファサード
- 多孔質かつ透明なシェルによる照明効果で都市空間を活性化
(以下、13 Degrees Architecture Studioから提供されたプレスキットのテキストの抄訳)

© Mohammad Hassan Ettefagh
私たちは〈アルガヴァン商業プロジェクト〉を、経験論と構造学の領域における実践として検討すべきものであると考えている。
人間の生活経験、技術、時間、自然素材、力といった要素が交錯する場で形成されるものは、やがて創造的で新しいものとして美的な生命を帯びる。〈アルガヴァン商業プロジェクト〉は忘れ去られた技術である籐編みから始まり、建築の時代精神に応答する新たな機能的代替案へと進化するプロセスである。

© Mohammad Hassan Ettefagh
本プロジェクトにおける籐編みとハナズオウ(Cercis)の木の廃枝の利用は、私たちの事務所にとって初めての経験ではない。これまでにもシェルター、キャノピー、さらにはファサードの一部として、状況に応じた技術的設計を施しつつ活用してきた。
〈アルガヴァン商業プロジェクト〉では、その使用範囲を拡張し、全体を一体化するために応用した。我々はこれを記録された建設技術として確立し、他者や他の状況においても再現可能かつ拡張可能な技術へと昇華させようと試みた。強度・優雅さ・尊厳といった要素が、この技術の成果である。

Timeline of Arghavan
籐編みはその本質として、価値の低い素材を創造的プロセスを通じて価値ある実用的なものへと転換する営みである。〈アルガヴァン商業プロジェクト〉は、この内在的特性を経済性に反映させている。
本プロセスにおいて材料費は、流行的で高価かつエネルギー消費の大きい非環境的素材ではなく、ハナズオウの廃枝に焦点を当てた。また通常であれば下地構造に費やされるコストを、革新的かつ実験的な施工プロセスに充て、実行コストの大部分を職人、特に編み手への賃金として分配した。

Process of weaving
〈アルガヴァン商業プロジェクト〉は、時間的交差点に位置づけられるべきものである。すなわち、籐編みの可能性に関する当事務所の理解と、その意識的な交差が建築研究および設計プロセスに反映された経験的・認知的成果である。
私たちは次のことを念頭に設計プロセスを進めた。

© Mohammad Hassan Ettefagh

© Mohammad Hassan Ettefagh

© Mohammad Hassan Ettefagh

© Mohammad Hassan Ettefagh

© Mohammad Hassan Ettefagh

© Mohammad Hassan Ettefagh

© Mohammad Hassan Ettefagh

Site plan

Design Procedure Diagram

Exploded Diagram

Story of Arghavan

Pros of Arghavan

Detail

Process of Construction

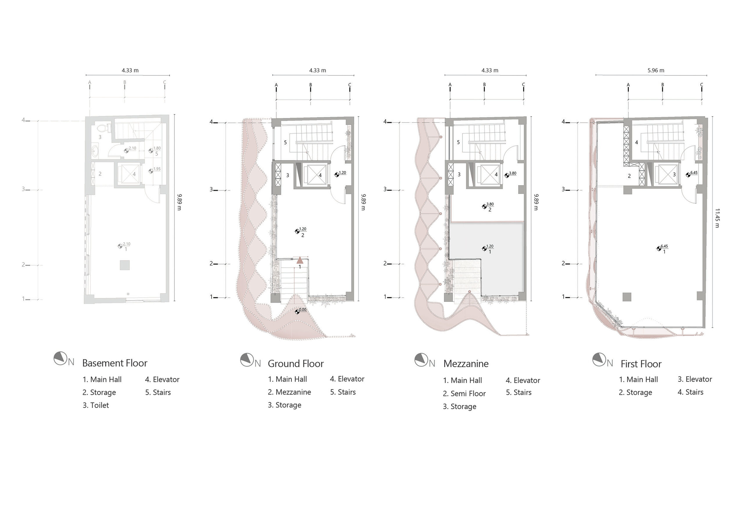
Plans

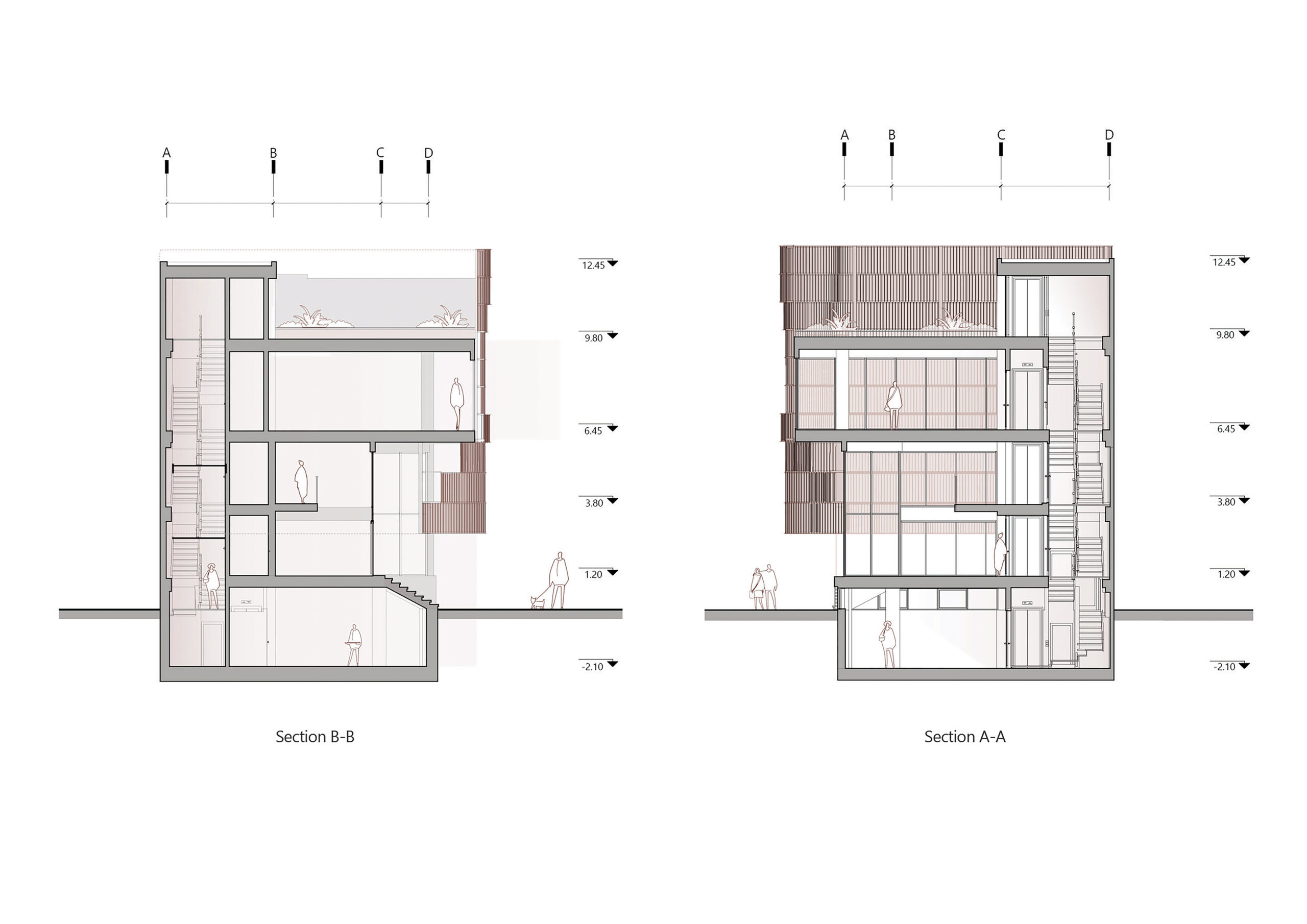
Section
以下、13 Degrees Architecture Studioのリリース(英文)です。
Arghavan Commercial Project
Essence: We believe that the Arghavan project should be examined as a practice in the realm of empiricism and tectonics. A formative state that occurs in the field of human lived experiences, techniques, time, materials from nature, and forces, and ultimately enters an aesthetic life as something creative and new. An evolution that begins with forgotten techniques like wicker weaving and transforms it into a new, operational alternative that responds to the spirit of its time in architecture.
To simplify this process, let’s break it down into a few titles:
A: Tectonic Evolution of Cercis Siliquastrum (Arghavan) Wicker: The use of wicker weaving and discarded branches of Cercis tree in this project was not our first experience with this indigenous technique. We had previously used it under various titles such as shelter, canopy, and even part of the facade in our other projects. In each of them, we designed technical details according to the situation. However, in the Arghavan project, its use is expanded to create a cohesive whole. We have tried to turn it into a documented construction technique, an experience, and a repeatable and expandable technique for others or other situations. Ultimately, aspects like strength, elegance, and dignity should be the conscious outcomes of this technique.
B: Material and Spirit of the Time: Wicker weaving, by its nature, is a profession that turns low-value materials into something valuable and practical through the creative process. Therefore, the Arghavan project tries to use this inherent quality in the project’s economy. In this process, the cost of materials is focused on discarded branches of Cercis tree, away from common, trendy, expensive, energy-intensive, and non-environmental materials. The costs associated with the usual substructure are also spent in the innovative and experimental technical construction process, and the execution costs are mainly focused on paying wages to craftsmen, especially weavers.
C: Responding to the Architectural Concept: In this regard, we can say that we are facing a temporal intersection. This means that the Arghavan project should be considered the experiential and cognitive result of our office’s understanding of wicker weaving, its possibilities, and its conscious intersection with the architectural study and design process of this project. In fact, we had reached an initial image of the project during the design process. In this image, we wanted:
1. The urban facade to become more active through our project.
2. Due to the existing structural weaknesses (as the project was handed over to our office after the structure was executed), we aimed for maximum lightness.
3. Through a porous or transparent shell, we could bring the interior lighting of the project to serve the urban facade as much as possible.AWARDS
Winner of 13th Annual Architizer A+Awards Popular Choice in the Architecture +Innovation category
Golden Winner of Design Awards (USA)
2nd place in 2A Continental Architectural Awards (UAE)
Honorable mention in Architecture and People National Awards (Iran)Program: Commercial, Office, Restoration
Location: Yazd, Iran
Year: 2023
Status: Completed
Area: 205 m²
Client: Mr. JaliliTeam
Lead Architects: Mohammadreza Alemrajabi, Sajjad Jafari Galuyak, Sima Azimipour, Atefe Alemrajabi
Design associates: Seyed Sina Meshkati, Pouya Sharghi
Executive manager: Atefe Alemrajabi
Executive team: Pouya Sharghi, Siavash Akhavankarbasi
Structural engineer: Ali Sharghi
Mechanical engineer: Mostafa Khoubyari, Ahmadali Mahmoudi
Electrical engineer: Marzieh Mirzazadeh
Graphic: Alireza Salmanzade, Amirreza Namdan, Fateme Salehirad, Sahar Fattah
Poster: Mojtaba Heidarpanah
Photographers: Mohammad Hassan Ettefagh, Atefe Alemrajabi, Mohammadreza Alemrajabi
13 Degrees Architecture Studio 公式サイト
https://13degrees.studio/projects/arghavan-commercial-building/