
©︎ György Palkó
〈PEBL Grand〉は、プレファブリケーション化によりスピーディな生産と設置を実現した、イベントの休憩所から瞑想スタジオまで、多用途に展開可能な汎用性を備えた木造キャビンです。
自然環境にも都市環境にも溶け込むローポリなデザイン言語で構成されており、ブダペストを拠点とする建築デザインスタジオ Hello Woodが設計しました。
注目ポイント
- 宇宙カプセルを想起させる未来的な造形
- CNC加工による三次元シェル構造とCLTコアを組み合わせた建設システム
- 材料廃棄と組立時間を削減する効率的な施工プロセス
- 可動性・持続可能性・スピード・体験という現代建築の要請に応える実験的プロジェクト
(以下、Hello Woodから提供されたプレスキットのテキストの抄訳)

©︎ György Palkó
Hello Woodの共同創業者兼CEO アンドラーシュ・フサール(András Huszár)は次のように語る。
「〈PEBL Grand〉がニューヨークでデビューした。これはワークステーションキャビンとしても知られる〈PEBL One〉の大型アップグレード版であり、夢が現実となった瞬間である。」

©︎ György Palkó
Hello Woodは当初、建築クリエイティブキャンプの運営に注力していたが、年月を経てフルサービスの製品開発・デザイン&ビルドスタジオへと成長した。
公共インスタレーションで認知度を高めた同スタジオは現在、「枠にとらわれない発想」を理念に掲げ、独自の宿泊施設開発を手がけている。

©︎ György Palkó
〈カポルチ・シクラーク・リゾート(Kapolcsi Sziklák Resort)〉の設立・運営で得た経験を活かし、独自のグランピング時代を切り開いた。新たに導入された〈PEBL Grand〉は画期的なモジュラーキャビンコンセプトであり、4年前に始まった建築開発の成果である。
最初のモデルは、革新的なアイデアに寛容なリピーターのクライアントの支援により実現した。彼はかつて、12歳の娘の夢を叶えるため特別な飛行機型キャビン〈Jet House〉を依頼しており、その経験が今回のプロトタイプ開発につながった。この取り組みを通じて、キャビンはついにニューヨークに進出するに至った。

©︎ György Palkó

©︎ György Palkó
この独創的なキャビンは、プレファブリケーション建築の可能性を再定義する存在である。
有機的でありながら未来的な外観は、プレミアムレベルの快適性と環境意識を融合させ、技術革新と自然由来の造形を結びつけている。宇宙カプセルや地質構造を思わせるデザインは、従来の直角的な建築規範から脱却している。

©︎ György Palkó

©︎ György Palkó
「ローポリ」デザイン言語で定義された小石のようなキャビンは、自然環境にも、未利用の屋上などのような都市環境にもシームレスに溶け込むことが可能である。
この彫刻的構造の効率的かつ現代的な実現の背景には、Hello Woodが特許出願中の独自建設システムがある。

©︎ György Palkó
CNC加工による三次元シェル構造は、無垢材CLT(クロスラミネートティンバー)の耐力コア層と断熱・防水層を組み合わせており、複雑な空間形態や不規則な幾何学形状の創出を可能にすると同時に、材料廃棄や組立時間の削減を実現する。
外装材は木材、石材、アルミニウム、鏡面仕上げなどを選択可能であり、周囲環境に溶け込ませることも、意図的に際立たせることもできる。高い適応性は、多様な環境やクライアントのニーズに応える設計思想を示している。

©︎ György Palkó
キャビンの生産と設置は、予測可能性とスピードを基盤としている。完全プレファブリケーション化されたカプセルは、組み立て済みの状態で欧州全域にターンキー方式で納入され、遠隔地へは標準海上コンテナでフラットパック輸送される。
現地での設置は約1日で完了し、地中スクリュー基礎によりコンクリート基礎を不要とすることで環境負荷を最小限に抑える。現場準備もわずか半日で済むため、遅延が課題となる宿泊施設開発において大きな利点となる。

©︎ György Palkó

©︎ György Palkó
機能や素材はフルカスタマイズが可能であり、各クライアントのニーズに合わせて設計される。
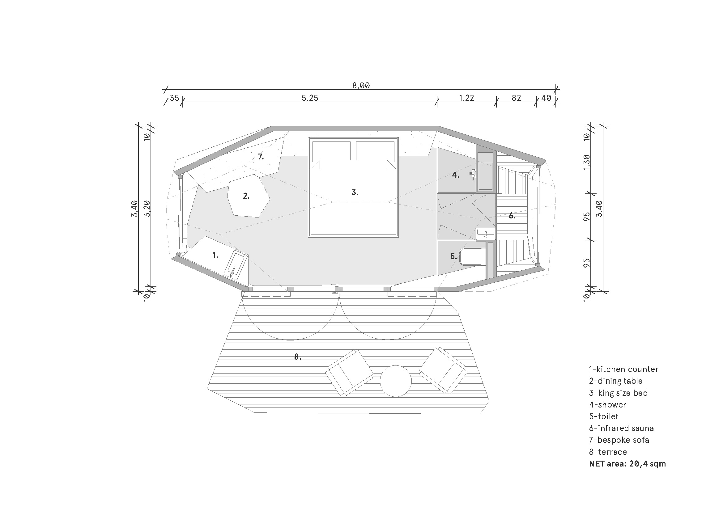
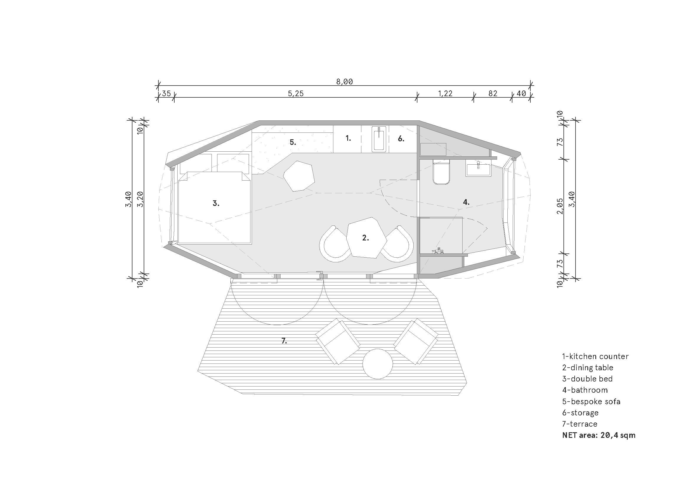
コンパクトなサイズながら、キングサイズベッド、ダイニングエリア、キッチン、バスルーム、パノラマ式赤外線サウナ、大型ガラス面を備え、5つ星ホテルのスイートルームと同等の快適性を提供する。さらに、追加ユニットにより拡張が可能で、空間レイアウトに極めて高い柔軟性をもつ。

©︎ György Palkó
彫刻的でユニークなキャビンは回転・移動が可能であり、不規則な小石のように角度によって異なる表情を見せる。
その用途はほぼ無限であり、フェスティバルの休憩エリア、瞑想スタジオ、クリエイティブワークスペース、専用ゲストルーム、プライベートサウナなど多岐にわたる。

Floorplan_accomodation

Floorplan_backstage

Floorplan_tinyhouse
このハンガリー発の革新的デザインはニューヨークのクラブオーナーの注目を集め、今年5月にはブルックリンのクラブ屋上テラスに5基の〈PEBL One〉が設置された。
そこではマンハッタンの壮大なパノラマビューを背景に、パフォーマーのためのスタイリッシュかつ快適な休憩スペースとして機能している。

キャビンはすべてプレファブリケーション化され、海上コンテナで輸送された後、数週間で現地組立が行われた。このプロジェクトは、建築が可動性、持続可能性、スピード、体験といった時代の要求に応えるためにいかに適応・進化できるかを示す実験である。
彫刻的な美学、独自の構造システム、環境配慮型アプローチを融合させることで、Hello Woodは小規模建築の未来を体現する作品を生み出した。これは革新への専心を反映するとともに、建築に新たな道を切り開き、世界各地の多様なニーズに応える実用的な解決策を提示するものである。

©︎ György Palkó

©︎ György Palkó

©︎ György Palkó

©︎ György Palkó

©︎ György Palkó

©︎ György Palkó

©︎ György Palkó

©︎ György Palkó

©︎ György Palkó

Construction

Model

Section
以下、Hello Woodのリリース(英文)です。
PEBL Grand: Futuristic cabins among New York’s skyscrapers, developed by Hello Wood
“The PEBL Grand debuted in New York – a larger, upgraded version of the PEBL One, also known as the Workstation Cabin, – a dream come true.” said András Huszár, co-founder and CEO of Hello Wood.From creative camps to full-fledged development
Hello Wood initially focused on organizing architectural creative camps, but over the years, it has grown into a full-service product-developing design & build studio. While it gained recognition through its public installations, the studio now creates its own accommodation developments, embracing the principle of “thinking outside the box.” Drawing on the experiences gained from establishing and operating their Kapolcsi Sziklák Resort, they launched their own glamping era. The newly introduced PEBL Grand is a groundbreaking modular cabin concept, the result of an architectural development that began four years ago. The initial model was made possible by a returning, satisfied client who is open to innovative ideas — previously, he commissioned a special airplane-shaped cabin, the Jet House, as a dream project for his 12-year-old daughter. Thanks to this supported prototype development, the cabins have now made their way all the way to New York.Innovation in technology and design
The uniquely designed cabin completely reimagines the potential of prefabricated architecture. Its appearance is both organic and futuristic; by merging premium-level comfort with environmental awareness, it combines technological innovation with nature-inspired forms. Its design—reminiscent more of space capsules or geological formations—breaks away from traditional, right-angled architectural norms. As a result, the pebble-shaped cabin, defined by a “low-poly” design language, can seamlessly integrate into both natural and urban environments—such as previously unused rooftops. Behind the efficient and contemporary realization of this unique, sculptural structure stands Hello Wood’s proprietary construction system, submitted for patent protection. This CNC-manufactured three-dimensional shell structure combines a solid wood CLT (Cross-Laminated Timber) load-bearing core with insulating and waterproof layers. This innovation enables the creation of complex spatial forms and irregular geometries, while also reducing material waste and assembly time. The design is highly adaptable to various environments and client needs: depending on the material and texture of the maintenance-free exterior cladding – which may be wood, stone, aluminum, or even mirror – it can either blend into its surroundings, whether forested or industrial or intentionally stand out from them.Customization meets efficiency
The production and installation of the cabin are built on predictability and speed. The capsules can be fully prefabricated, assembled, and delivered turnkey-ready throughout Europe, while for more distant locations they are shipped flat-packed in standard sea containers. On-site installation of the prefabricated cabin takes approximately one day. Thanks to the ground screw foundation system, no concrete base is required, minimizing environmental impact. This way, the necessary site preparation can be completed in just half a day. This process is especially advantageous in accommodation development projects, where delays are often a challenge. The cabins are fully customizable in functionality and materials, tailored to the specific needs of each client. Despite its compact size, it offers a complete user experience with the comfort and quality of a five-star, two-person hotel suite – including a king-size bed, dining area, kitchen, bathroom, panoramic infrared sauna, and large glass surfaces. Moreover, the cabin can be expanded with additional PEBL units, making its spatial layout highly flexible. These uniquely shaped, sculptural land art objects can be rotated and relocated, showing different faces from every angle – much like irregularly shaped pebbles. Their potential uses are nearly endless: they can serve as a festival resting area, meditation studio, creative workspace, exclusive guest room, or even a private sauna.Design objects on the New York skyline
The Hungarian innovation also caught the attention of the owners of a New York club. As a result, in May of this year, five PEBL Grand units were installed on the rooftop terrace of their entertainment venue in Brooklyn, offering a stunning panoramic view of Manhattan. These design objects were placed in the backstage area, where they will serve as stylish and comfortable resting spaces for performers. All elements of the cabins were prefabricated, shipped flat-packed in sea containers, and assembled on-site by the studio’s team within a few weeks. The project is an experiment in how architecture can adapt and evolve to meet the demands of our time: mobility, sustainability, speed, and experience. Through the combination of sculptural aesthetics, a unique structural system, and an environmentally conscious approach, the Hungarian design studio has created a piece that embodies the future of small-scale architecture. This development with its high-quality realization, perfectly reflects a commitment to innovation. It not only opens up new paths in architecture but also offers practical solutions for a variety of needs in locations around the world.“The PEBL Grand is the result of years of dedicated development, which has taken Hello Wood all the way from Budapest to New York.” – Tamás Fülöp, one of the lead architects of the PEBL Grand
Hello Wood
getyourpebl.com/pebl-grand/
Hellowood.eu
Instagram: @hellowood
Facebook: Hello WoodPEBL Grand
Design Board: András Huszár, Dávid Ráday, Krisztián Tóth
Lead architects: Tamás Fülöp, András Huszár
Production: Károly Bere, István Komjáthy, András Szabó, Zsolt Hodgyai
Interior design: Tamás Fülöp, Anikó Varga
Accessories: KARE Design
Contact person: Tamás Fülöp
Email address: inquiry@hellowood.eu
Press contact: Diána Trencsényi
Email address: diana.trencsenyi@hellowood.eu
Photo and video: György Palkó, Márton Bognár
Hello Wood 公式サイト
https://hellowood.eu