
©︎ Sergio López
ドミニカ共和国の首都であり世界遺産でもあるサント・ドミンゴに建つ〈ラス・メルセデス・キンプトンホテル(Las Mercedes Kimpton Hotel)〉は、18世紀の建築と中庭を再生しつつ現代建築と融合したホテルプロジェクトです。
スペインとメキシコに拠点を構え、持続可能なソリューションの特定と実装に専念する建築デザイン事務所 モネオ・ブロック・アーキテクツ(Moneo Brock Architects)が設計しました。
注目ポイント
- 歴史的な建造物と中庭を組み込み、遺産を尊重しつつ現代建築を融合
- ユネスコ世界遺産サント・ドミンゴにおける保存と現代性の共存の実践
- ゲストと住民のオアシスとして機能する中庭を中心とした空間構成
- 保存と現代性や環境負荷低減による「ニュー・バウハウス」の理念の具現化
(以下、モネオ・ブロック・アーキテクツから提供されたプレスキットのテキストの抄訳)

©︎ Sergio López

©︎ Sergio López
サント・ドミンゴの〈ラス・メルセデス・キンプトンホテル〉は、130室を擁するホテルプロジェクトである。本計画は一連の歴史的建造物を修復し、遺産への敬意と現代建築を融合させている。
18世紀の貴重な2つの建物とその中庭を修復・組み込み、ラテンアメリカを代表する歴史的中心地においてユニークな体験を提供し、その再生に貢献している。

©︎ Sergio López
1496年に設立されたサントドミンゴとそのコロニアル地区は、ユネスコ世界遺産に登録されている。ルネサンス様式のまち並みを特徴とするこの地区は、現代のニーズに応じて変貌を遂げつつあり、過去と現在の共存を示すモデルとなっている。
交通量の減少、公共空間の拡大、緑豊かな街路、透水性の歩道など新たな取り組みが進められ、住民や観光客は歴史と自然が共存する環境の中で歩行の喜びを取り戻している。

©︎ Sergio López
ラス・メルセデス通りに位置する本ホテルは、〈ラ・アルタグラシア聖堂〉、〈サン・フランシスコ修道院〉、〈ラス・メルセデス教会〉、〈バリ病院〉の遺跡などの象徴的建物に囲まれている。
ここでは、保存と現代性の新たな共存が試みられている。建築プロジェクトはコロニアル都市の豊かな遺産を再解釈し、地域社会に根ざした屋内公共空間によって歴史的な街区を変容させている。

©︎ Sergio López
ホテルの中核となるのは中央の中庭である。既存植生を保存するために慎重に保護され、上層階で2倍の規模に拡張された。雄大な樹木や在来種のつる植物が繁茂するこの中庭は、建築と自然を融合させるオアシスとして機能し、ゲストのみならず住民にも開かれている。

©︎ Sergio López
この庭園を囲むようにオープンギャラリーが客室へと続き、自然光を取り入れ、9つある中庭間の通風を促進している。
水平および垂直のラミネートによって日差しや雨から保護されたこれらの回廊は、トロピカルな雰囲気を醸し出し、共用スペースに流動的な循環と開放感、透明感を生み出している。水平ラミネートと垂直ガラスラミネートの緑色、その質感と輝きは、周囲の緑の爽やかさを彷彿とさせる。

©︎ Sergio López
3,680m²の敷地という広さと道路の地形との関係により、さまざまな高さの入口を設置し、新旧のバランスをとるためにホテル施設とサービスの一部を地下に埋設した。
ホテルは地下3,890m²、地上6,360m²で構成されている。新築部分のファサードは、歴史的中心部のスケールを保ち、重厚な外観を避けるため通りから後退して設計されている。

©︎ Sergio López

©︎ Sergio López
各客室にはバルコニーを設け、緑豊かな9つの新しい中庭を囲むように配置されている。この中庭の配置により、ホテルは自然に開かれ、歴史的建造物の様式に控えめかつ敬意をもって調和している。

©︎ Sergio López
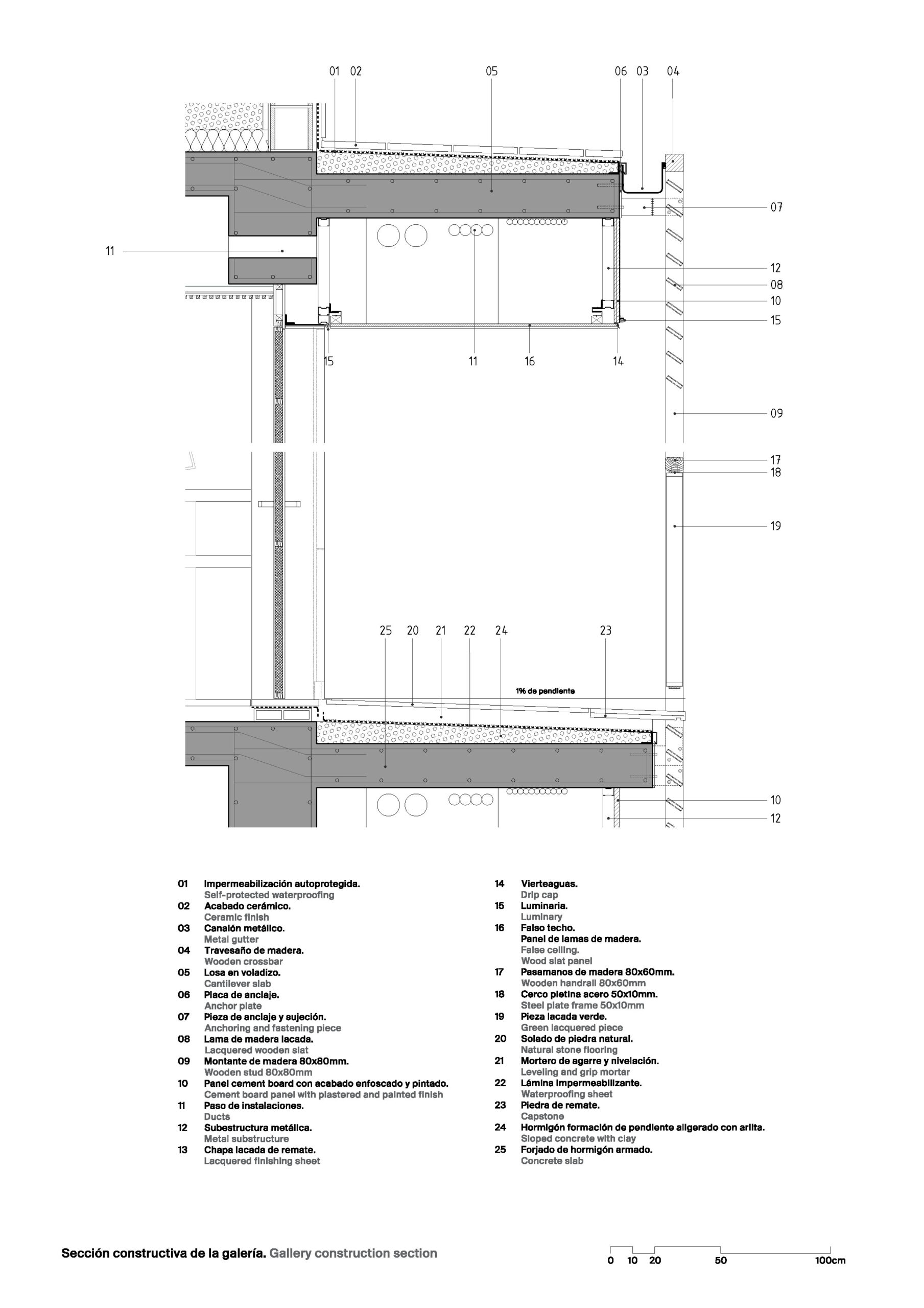
内装には、地元産トラバーチンの床、セラミックのアーチ型天井、ギャラリーの木造構造といった、周囲の建築様式に調和する素材が採用されている。これらはカーボンフットプリントを削減し、持続可能性を考慮した選択である。
これらの素材の選択は、持続可能性とドミニカ共和国の熱帯気候への建築の適応という基準に基づいている。

©︎ Sergio López

©︎ Sergio López
また、建物の日射制御は厳密に検討されている。客室では、外部バルコニーに天井と側面にセラミック製の仕切りを設置し、熱的快適性を確保しながらエネルギー消費を最小限に抑えている。
ギャラリーでは水平スラットを採用しており、さらに建物には雨水収集システム、貯水タンク、屋上ソーラーパネルが備わっている。センサーとホームオートメーションで制御される空調は、エアサーモシステムによって行われている。

©︎ Sergio López

©︎ Sergio López
最上階テラスには、プール、ジム、バーを備えた広いサンルームが設けられ、海と歴史地区の眺めを一望できる。
館内には複数のレストラン、会議室、宴会場があり、結婚式や企業イベントにも対応可能である。これにより〈ラス・メルセデス・キンプトンホテル〉は、歴史、アクセス、持続可能性を兼ね備えた都市における総合的な目的地としての地位を確立している。

©︎ Sergio López

©︎ Sergio López
本ホテルはニュー・バウハウスの原則に基づき、遺産の保存と現代建築を融合させている。歴史と現代性のバランスを取りながら、責任ある実践を取り入れることでポジティブな影響を保証している。
中庭やテラスといった空間を重視し、地元産素材や自然換気を活用することで熱的快適性を確保し、持続可能かつ健康的な建築の好例となっている。歴史的街区の再生を通じて、まちを活性化し、遺産と現代生活の新たな関係を提示しているのである。

©︎ Sergio López

©︎ Sergio López

©︎ Sergio López

©︎ Sergio López

©︎ Sergio López

©︎ Sergio López

©︎ Sergio López

©︎ Sergio López

©︎ Sergio López

©︎ Sergio López

以下、モネオ・ブロック・アーキテクツのリリース(英文)です。
Las Mercedes Kimpton Hotel: In the heart of Ciudad Colonial
The Kimpton Hotel Las Mercedes, located in the Colonial City of Santo Domingo, is a 130-room hotel project that combines respect for historical heritage with contemporary architecture. This unique design seeks to revive the value of colonial architecture while providing guests with a luxurious and sustainable experience in the heart of one of Latin America’s most emblematic historic centers.
At the heart of the project is the central courtyard, part of the original construction, which has been carefully preserved throughout the renovation. The courtyard retains its vegetation, offering a space that connects guests with nature and the colonial era architecture. Surrounding this vital area, the room corridors allow for natural light, cross-ventilation, and a serene, tropical atmosphere. All rooms feature balconies overlooking the inner courtyards, while some have private terraces with jacuzzis, enhancing guest intimacy and comfort.
The hotel’s rooftop terrace includes a spacious solarium with a pool, gym, and other amenities, offering spectacular views of the sea and the historic center of the Colonial City. From this elevated vantage point, visitors can appreciate iconic landmarks like the Archdiocesan Sanctuary of Nuestra Señora de la Altagracia, the Church of Nuestra Señora de las Mercedes, and the Monastery of San Francisco, enjoying a visual connection with the city’s historic surroundings.
To maintain a balance between old and new, the project respects the colonial facades while integrating contemporary multi-story volumes, creating new courtyards and avoiding a massive appearance. This approach provides a sense of openness and transparency throughout the public spaces and a design that respects the urban scale and contributes to the area’s revitalization.
The hotel’s interiors highlight the use of local materials, such as travertine floors, wooden slats in the galleries, and ceramic surfaces on walls, bringing a natural aesthetic to the spaces. Wood is used for its low carbon footprint and its excellent insulating properties. The use of these materials make it a space well-suited to the tropical climate of the Dominican Republic and their selection reinforces the hotel’s commitment to sustainability.
The hotel offers a variety of salons and event spaces, including multiple restaurants, a meeting room, and an event hall perfect for weddings and corporate gatherings. The Kimpton Hotel Las Mercedes thus positions itself as a comprehensive destination in the Colonial City, blending luxury, history, and sustainability in an environment that invites guests to enjoy and connect with the cultural heritage of Santo Domingo.
モネオ・ブロック・アーキテクツ 公式サイト
https://www.moneobrock.com/project/new-hotel-in-santo-domingo