
© ERRE+Valencia Dron Works

© ERRE+Valencia Dron Works
スペイン・バレンシアの新たなスポーツ・エンターテインメント施設〈ロイグ・アリーナ(Roig Arena)〉は、世界初の「全面セラミックスキン」を採用したスポーツ施設です。
バレンシアを拠点とする建築設計事務所 ERREと、世界各地に拠点を置く設計・建築・エンジニアリング・プランニング企業 HOKが共同で設計しました。
注目ポイント
- 未利用地を国際的なスポーツ・文化拠点へ転換する都市再生プロジェクト
- 8,600枚のセラミックフィンを鱗状に配列したパラメトリックデザイン
- 公園からアリーナへとシームレスに接続する階段状テラス
- ファサードに設置されたメディアディスプレイ「ザ・アイ」
(以下、ERREから提供されたプレスキットのテキストの抄訳)

© ERRE+Valencia Dron Works

© ERRE+Valencia Dron Works
総工費4億ユーロの新たな多目的アリーナ〈ロイグ・アリーナ〉は、革新的なデザイン、持続可能な機能、フレキシブルな空間構成が融合した施設である。
Licampa 1617が開発し、HOKとERREが設計を手掛けたこの多目的施設は、未活用地域であったクアトレ・カレレス地区を、スポーツ、音楽、文化、企業イベントの国際的拠点へと変貌させる。
バレンシア・バスケットクラブの男女チームの本拠地となる本アリーナは、新たに整備された2ヘクタールの公共公園と一体化し、市民が年間を通じて利用できる都市の核となる。なお、プロジェクト資金はバレンシアの実業家ホアン・ロイグ(Juan Roig)が個人資産で全額を負担した。

©Hufton+Crow
歩行者優先区域に指定された公園とアリーナの移行部には階段状のテラスが設けられ、屋内の体験を屋外に拡張し、地域に開かれた多目的コミュニティ空間を形成している。ダイナミックなメディアディスプレイ「ザ・アイ」を備えた大階段は、来訪者の到着体験を形づくるとともに、都市景観におけるアリーナの存在感を明確に示している。
自然光が差し込むコンコースは、イベント非開催日には、ヨーロッパの歴史的なメルカドを模した飲食市場へと変貌する。

©Hufton+Crow

©Hufton+Crow
「〈ロイグ・アリーナ〉は場所の祝典である。バレンシアの独自の文化と気候を取り込み、市民の共有拠点であり、都市の比喩的なリビングルームを創出する。」
「アリーナ内部では前例のないフレキシビリティ、親密な観客席構成、技術革新が相まって、真に没入感のある体験が実現されている。〈ロイグ・アリーナ〉は都市の核となり、スポーツパークの中心として活気ある成長の触媒となり、すべての人々にとって魅力的な目的地となる。」
HOKスポーツ+エンターテインメント部門ディレクター
ジョン・ローズ(John Rhodes)

©Hufton+Crow
〈ロイグ・アリーナ〉は、全面セラミックスキンを採用した初のスポーツ施設である。ERREが設計し、パメサ・グループ・エンプレサリアル(Pamesa Grupo Empresarial)が現地製造した合計8,600枚のセラミックフィンが、湾曲した鋼製フレーム上に鱗状に配置されている。夜間にはカラフルな照明によりファサードが輝きを放つ。
設置前には実物大1:1のプロトタイプが製作され、構造的な実現性が検証された。設計チームは1.0×1.2メートルの単一モジュールを採用し、フィンサイズの標準化によって設置の簡素化、廃棄物の削減、カーボンフットプリントの低減を実現した。パラメトリックモデリングにより10度から63度の角度で各要素の配置が決定されている。
昼間には、バスケットボールの表面に着想を得たテクスチャーと3色の淡いブルー釉薬で仕上げられたフィンが自然光を外部テラスへ導く。夜間にはRGB-White技術を搭載した動的LED映像照明システムとして機能し、リアルタイムデータと連動した壮観な光演出を生み出す。

©Hufton+Crow
アリーナの設計は、バレンシアの温暖な気候に対応する自然換気システム、太陽光発電パネル、地元産資材の活用など、港湾都市の特性を称揚する持続可能な戦略に基づいている。

©Hufton+Crow

©Hufton+Crow
「当初から、都市と関わり、内部に入る前から体験できる建築を目指した。このビジョンは、建物をテラス状に包む広い回廊の設計に具現化されている。」
「象徴的なセラミックフィンファサードは日光を遮りつつ周囲との視覚的つながりを保ち、結果として生まれた流動的で有機的な動線は、人々がコートに入る前に集い、イベントの興奮を共有できる快適な屋外交流空間を形成している。」
ERREパートナー建築家
ホセ・マルティ(Jose Martí)
アンパロ・ロイグ(Amparo Roig)
M・アンヘレス・ロス(M. Ángeles Ros)

©Hufton+Crow

©Hufton+Crow
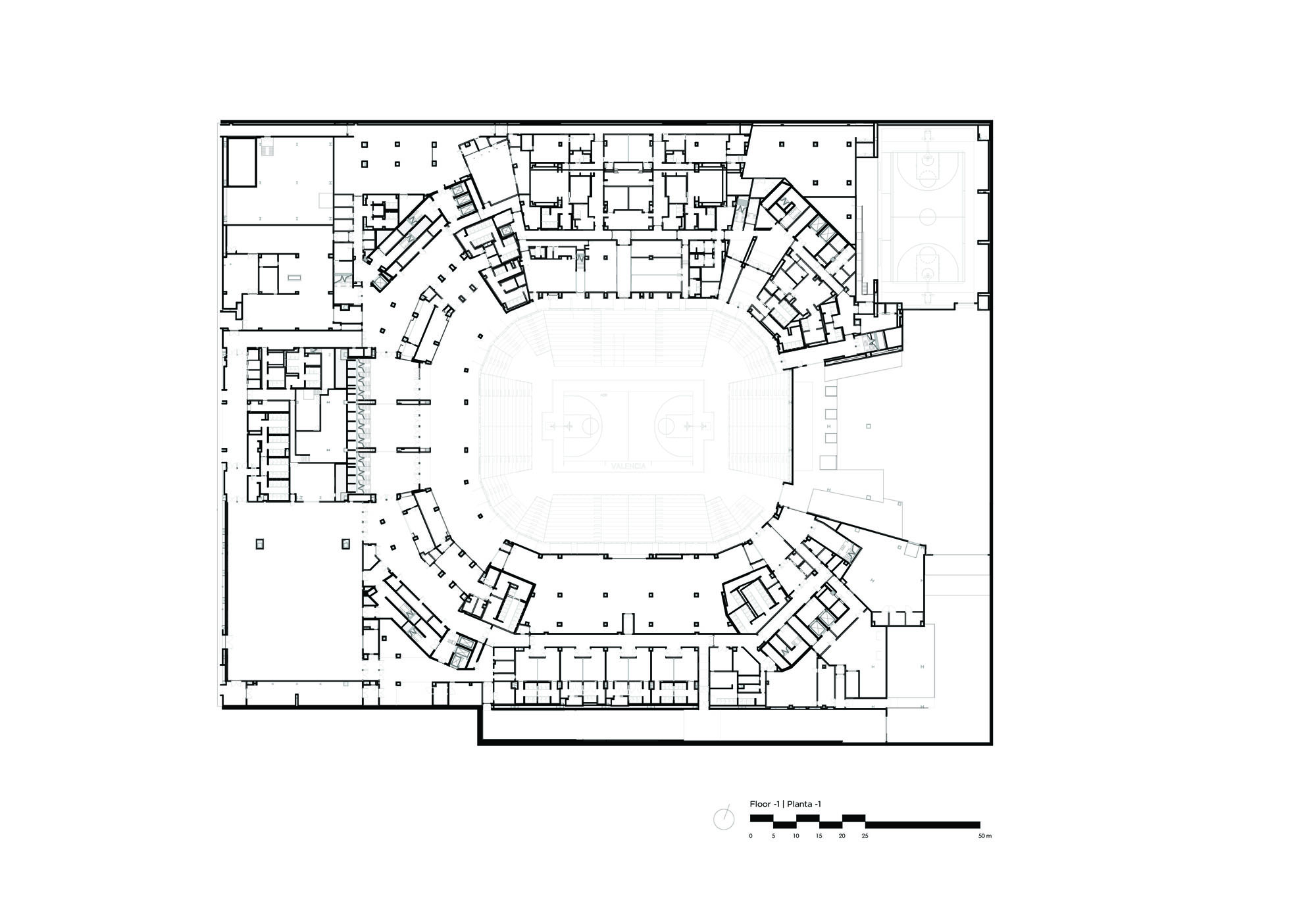
会場内部では、HOK独自のScrumツールにより観客席の視界、幾何学構成、ホスピタリティ配置が最適化されている。バスケットボール試合時は15,600人を収容し、コンサートなどのイベント時には20,000人に拡張可能である。座席オプションにはプレミアムクラブやVIP向けダイニング体験も含まれる。
また、イベント非開催日には展示ホール、宴会スペース、会議室、補助キッチンなど柔軟なサポートスペースを活用し、会議、トーナメント、市民イベントの開催が可能な、建物のフレキシビリティを最大限に引き出す設計となっている。

©Hufton+Crow

©Hufton+Crow
メインコート上空には欧州最高解像度のスコアボードが設置され、500m²をカバーする欧州最大の屋内ビデオウォールおよび全周を囲む220m²のLEDリボンディスプレイが併設されている。
外装では、300m²の表面積をもつ記念碑的なマルチメディアスクリーン「ザ・アイ」が北西ファサードを支配し、都市に強烈な視覚的ランドマークを形成している。

©Hufton+Crow

©Hufton+Crow

©Hufton+Crow

©Hufton+Crow

©Hufton+Crow

©Hufton+Crow

©Hufton+Crow

© ERRE+Valencia Dron Works

©Hufton+Crow

© ERRE+Valencia Dron Works

©Hufton+Crow

©Hufton+Crow

©Hufton+Crow

3D SECTION

3D

CAPACITY DIAGRAM

EVENT LEVEL

GROUND FLOOR

BOWL

VIP BOXES

BOWL UPPER LEVEL

ROOF LEVEL

CROSS SECTION

LONGITUDINAL SECTION
以下、ERREのリリース(英文)です。
ROIG ARENA OPENS IN VALENCIA AS PREMIER SPORTS AND ENTERTAINMENT DESTINATION
New €400 million multipurpose arena designed by HOK and ERRE blends innovative design, sustainable features and flexible spaces for year-round events
Valencia, SPAIN (September 6, 2025) – The new €400 million Roig Arena in Valencia will open on 6 September with a tribute concert to Nino Bravo, the celebrated Spanish pop singer. The multipurpose venue, developed by Licampa 1617 and designed by HOK and ERRE, transforms the underutilised Quatre Carreres district into an international destination for sporting, music, cultural and corporate events. The arena, home to the men’s and women’s teams of Valencia Basket Club, is integrated with a new two-hectare public park, creating a civic anchor that invites year-round use. The project was financed entirely by Valencian businessman Juan Roig with his personal assets.
Designated a pedestrian-priority zone, the transition between the park and arena includes stepped terraces that extend the interior experience outdoors and create multipurpose community spaces. A grand staircase with a dynamic media display, “The Eye,” defines the arrival experience and signals the arena’s presence in the urban landscape. A daylit concourse transforms on non-event days into a food and beverage market modelled after Europe’s historic mercados.
“Roig Arena is a celebration of place. The design embraces Valencia’s distinctive culture and climate, creating a shared civic anchor and metaphorical living room for the city,” said John Rhodes, director of Sports + Entertainment at HOK. “Inside, the building’s unprecedented flexibility, intimate seating bowl and technological innovation create a truly immersive experience. Much like the city of Valencia, the arena offerings are diverse, unique and hospitable. Roig Arena will be an anchor for the city, the centre of a sports park, a catalyst for vibrant growth and a destination experience for all.”
Innovative Ceramic Façade
Roig Arena is the first sports project with an entirely ceramic skin. A total of 8,600 ceramic fins, locally manufactured by Pamesa Grupo Empresarial and designed by ERRE, are arranged like scales that float on a curved steel frame. At night, the façade glows with coloured lighting. A full-scale 1:1 prototype of the façade system was built prior to installation, demonstrating its constructive feasibility. The design team opted to use a single modular piece measuring 1.00 x 1.20 meters. Standardizing the size of the fins simplified installation, reduced waste, and lowered the project’s carbon footprint. Parametric modeling defined the placement of each element, with angles ranging between 10 and 63 degrees. By day, the fins—designed with a texture inspired by the surface of a basketball and finished in three subtle shades of blue glaze—filter natural light into the exterior terraces. By night, the façade reveals its full potential as a dynamic LED video-illumination system with RGB-White technology, capable of interacting with real-time data to create a spectacular light display.
The arena’s design is rooted in sustainable strategies that celebrate the port city, including passive cooling to combat Valencia’s warm climate, photovoltaic panels, and locally sourced materials.
“From the very beginning, we were clear that we wanted an architecture that engaged with the city and could be experienced even before entering its interior. This vision is materialized in the design of the wide corridors that wrap around the building like terraces, protected by the iconic ceramic fin façade that filters sunlight while maintaining visual connections with the surroundings. The result is a fluid and organic circulation that creates pleasant outdoor gathering spaces where people can meet and share the excitement of the event before stepping into the court,” say Jose Martí, Amparo Roig, and M. Ángeles Ros, partner architects at ERRE.
Advanced Technology
Inside the venue, the team used HOK’s proprietary Scrum tool to optimise sightlines, geometry and hospitality configurations in the seating bowl. The arena can accommodate 15,600 fans for basketball games and expand to seat 20,000 for concerts and other events. Diverse seating options include premium clubs and VIP dining experiences. On non-event days, flexible support spaces including an expansive exhibition hall, banquet space, meeting rooms and auxiliary kitchens allow the venue to host conferences, tournaments and civic events, maximising the building’s flexibility.
Suspended above the arena’s main court is the highest-resolution scoreboard in Europe, accompanied by the continent’s largest indoor videowall, covering 500 m², and a 220 m² LED ribbon display encircling the entire perimeter. On the exterior, the monumental multimedia screen “The Eye” dominates the northwest façade with its 300 m² surface, creating a striking visual landmark.
ERRE 公式サイト
https://errearquitectura.com/en/projects/roig-arena/