
©︎ Dave Burk
中国・上海の文化・技術・研究特化型地区であるウェストバンド(西岸地区)に誕生した〈上海ウェストバンド・コンベンションセンター(Shanghai West Bund Convention Center)〉は、AIを用いた最適化により実現した「垂直型コンベンションセンター」です。
80年以上にわたり、業界や分野を飛び越えたさまざまな学際的なプロジェクトを手がける建築事務所 スキッドモア・オーウィングズ・アンド・メリル(Skidmore, Owings & Merrill、以下SOMと表記)が設計しました。
注目ポイント
- 採光、構造効率、眺望、床面積など、あらゆるパラメータを最適化するAI支援
- 人とAIが協働することで実現した、複雑な幾何学形状の合理化
- 都心の限られた土地だからこそ垂直方向に展開する「垂直型コンベンション」モデル
- 「AIバレー」とも称されるエリアのアイデンティティを体現する建築
(以下、SOMから提供されたプレスキットのテキストの抄訳)

©︎ Dave Burk
多目的最適化ワークフローによって設計された〈上海ウェストバンド・コンベンションセンター〉は、コンパクトかつ高性能なランドマークとして立ち上がった。主要な展示空間とテラス、そして黄浦江を望む公共エリアが一体となった建築である。
上海・ウェストバンド(西岸地区)の黄浦江沿いに位置する同センターは、文化・技術・研究特化型地区として急速な進化を遂げるこのエリアに寄与する建築である。AI支援ワークフローにより設計された本建築は、中国人工知能産業の新興拠点である「ウェストバンドAIバレー」という文脈に見事に調和している。
垂直方向にボリュームを積層させるマス戦略によってコンパクトな接地面積にプログラムを集約しつつ、地上レベルを公共空間として確保した。緑化テラスと川沿いのプロムナードは、同地区の5kmに及ぶ緑の回廊を拡張し、ウォーターフロントと近隣文化施設との結びつきを強固にしている。

©︎ Dave Burk
2025年7月には、1階フロアにて世界人工知能大会(WAIC)が開催された。このイベントは、地区全体で重要視しているコンピューティングツールによって形成された会場にふさわしいものであった。低炭素建材と高効率なエネルギーシステムを採用した本プロジェクトは、イノベーションハブとしてのウェストバンドのアイデンティティをより一層強化するものである。

©︎ Dave Burk
本プロジェクトは、SOMが継続的に探求しているコンピューテーショナルデザインにおけるベンチマークとなる事例である。AI支援による多目的最適化ワークフローが、ダイヤモンドに着想を得た幾何学形状を導き出した。これにより、採光と遮光、床面積と外壁の傾斜、構造効率と眺望といった、通常は相反するパラメータのバランスを最適化している。
設計チームはまず、空間の境界、プログラム要件、カーテンウォールの条件、性能目標を定義した。その後、アルゴリズムが数百ものモデルを生成・評価し、各モデルは建築家とエンジニアが設定した基準に基づいてスコアリングされた。

©︎ Dave Burk
このプロセスは初期段階のリサーチを加速させ、手作業では達成困難なレベルの精度を実現した。さらに設計の可能性を広げ、プロジェクトの技術的・体験的な目標を満たす構成を明らかにしたのである。
一方で、人間の判断も依然として不可欠であった。設計者は文脈への適合性、明快さ、優雅さに基づき、生成された案から最適なものを選択し、洗練させた。このワークフローによって、構造用鋼材の削減、エネルギー性能の向上を実現し、複雑な幾何学形状を標準サイズのガラスパネルを主体としたファサードへと合理化することに成功した。

©︎ Dave Burk
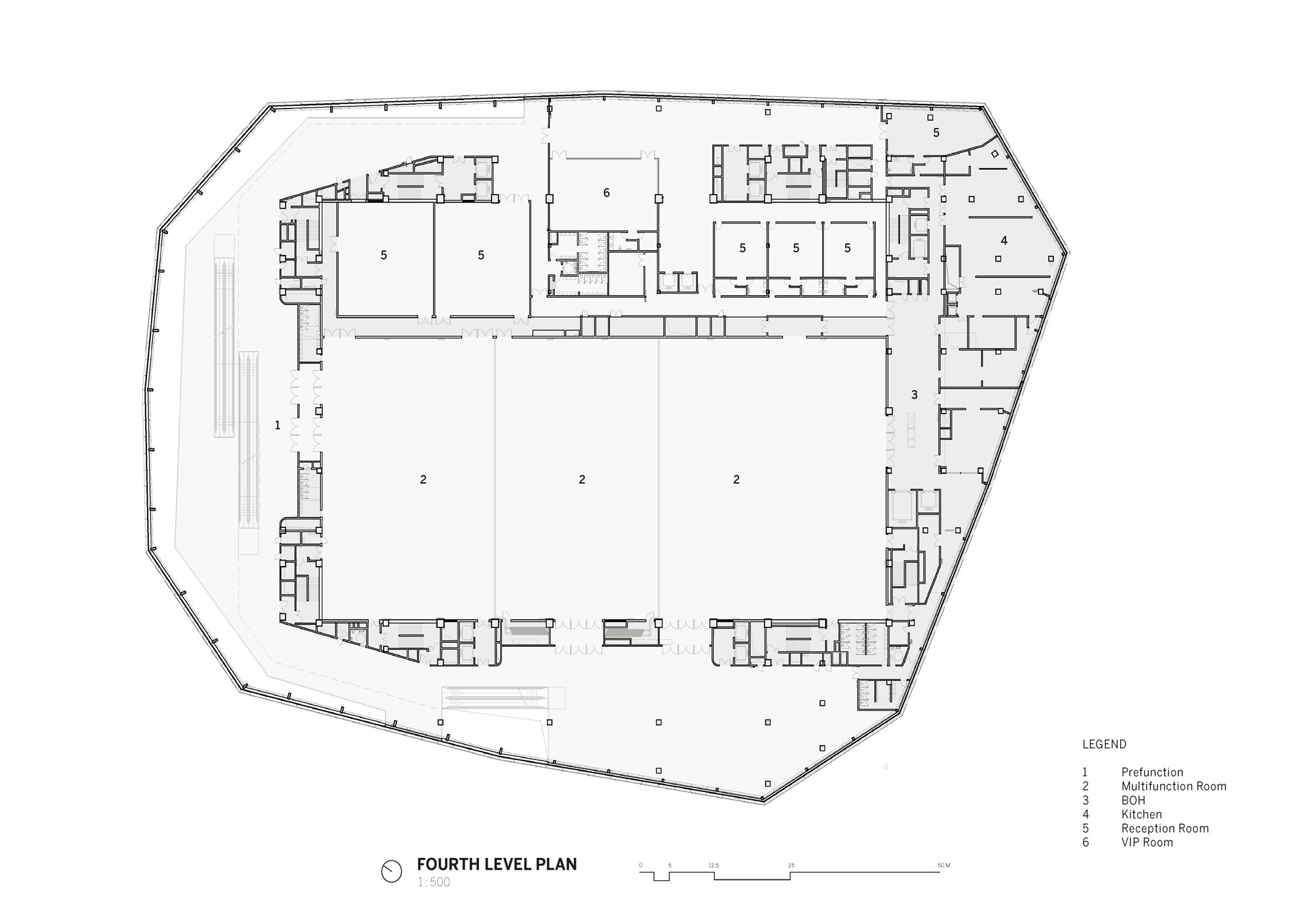
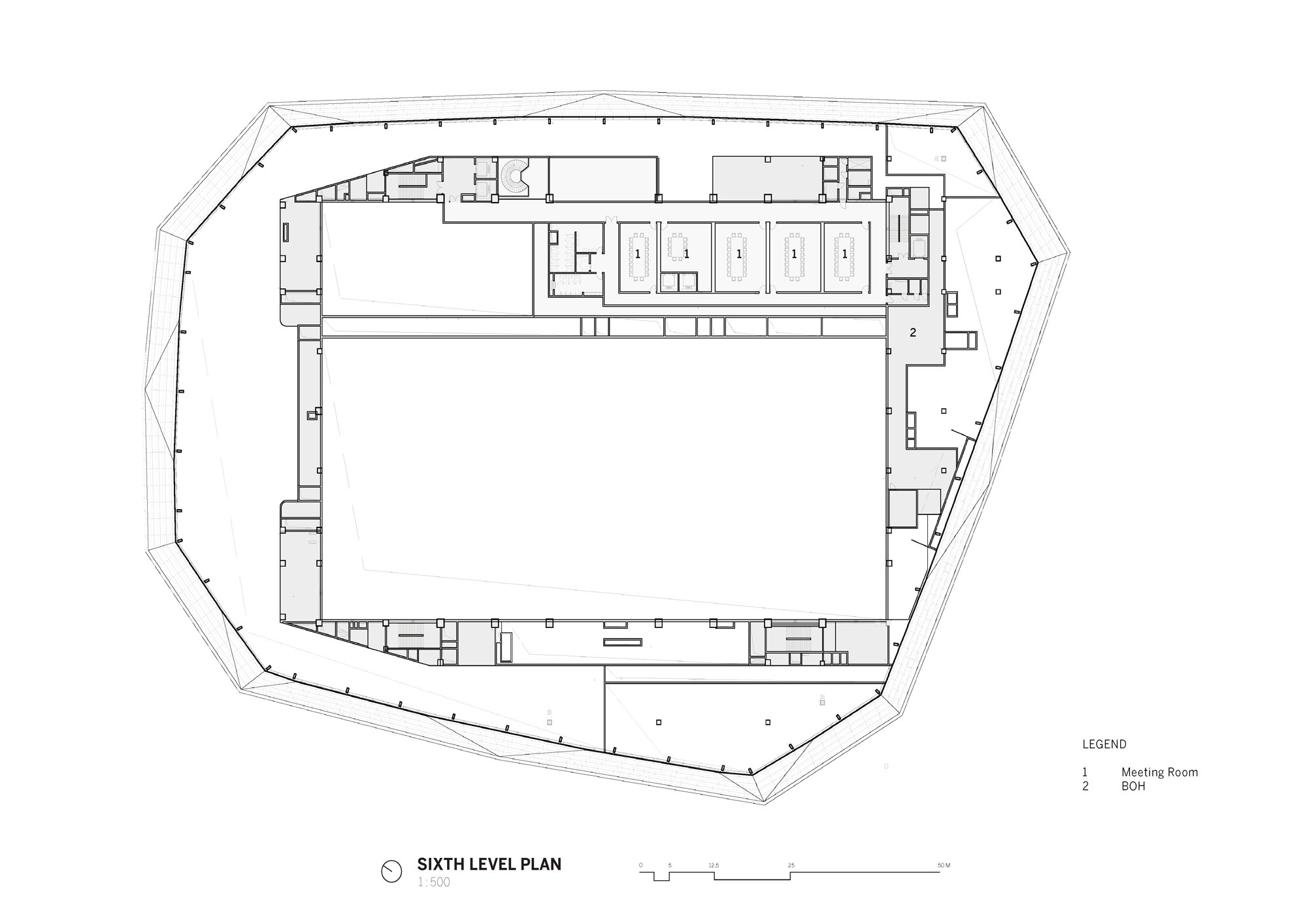
内部空間においては、上海におけるコンパクトなイベント会場の新たなモデルを提示している。メインエントランスには高層のアトリウムを配置し、そこから続くエスカレーターが、6,000m²と4,000m²という2つの柱のない大ホールへと来場者を導く。
ウォーターフロント沿いでは最大級となるこれらのホールは、国際会議や博覧会、地域プログラムに対応可能である。垂直方向の配置計画により、限られた敷地面積という制約を克服しながら動線を改善し、直感的なウェイファインディング(経路探索)を実現している。

©︎ Dave Burk
外周部に配置された公共スペース、会議室、集会エリアには豊かな自然光が降り注ぎ、眼下の川の風景を切り取る。上層階のランドスケープテラスは屋外の「部屋」として機能し、建物のイベント対応能力を拡張すると同時に、地区全体のオープンスペース・ネットワークを拡充する役割も果たしている。

以下、SOMのリリース(英文)です。
Project: Shanghai West Bund Convention Center
Location: Shanghai, China
Client: Shanghai West Bund Conference and Exhibition Center CO., LTDSite Area: 23,600 square meters
Building Gross Area: 60,000 square meters
Stories: 7
Building Height: 49.70 metersDesign Architect/Engineer: Skidmore, Owings & Merrill (SOM) www.som.com
SOM Services: Architecture, Sustainable Engineering Systems, Structural EngineeringLocal Architectural/Engineering Design Consultant: ECADI (East China Architectural Design & Research Institute CO. LTD)
Project Narrative
Designed through a multi-objective optimization workflow, the West Bund Convention Center rises as a compact, high-performance landmark—uniting major exhibition spaces with terraces and public areas overlooking the Huangpu River.
A Riverfront Venue for Innovation
Positioned along the Huangpu River in Shanghai’s West Bund, the convention center contributes to a rapidly evolving district dedicated to culture, technology, and research. Designed through an AI-assisted workflow, the building aligns with its context in the West Bund AI Valley—an emerging hub for China’s artificial intelligence sector. Its vertical massing strategy consolidates program on a compact footprint while preserving the ground plane for public space. Landscaped terraces and river-facing promenades extend the district’s five-kilometer green corridor, strengthening connections between the waterfront and nearby cultural institutions.
In July 2025, it hosted the World Artificial Intelligence Conference on its ground floor—an event well suited to a venue shaped by the same computational tools celebrated across the district. Built with low-carbon materials and energy-efficient systems, the project reinforces West Bund’s identity as a hub of innovation.
Advancing Design Through AI-Assisted Optimization
The project is a benchmark in SOM’s ongoing exploration of computational design. An AI-assisted, multi-objective optimization workflow guided the building’s diamond-inspired geometry, balancing parameters that typically conflict—daylight and shading, floor area and envelope inclination, structural efficiency and view orientation. The design team defined spatial boundaries, programmatic requirements, curtain wall conditions, and performance objectives. Algorithms then generated and evaluated hundreds of models, each scored against criteria established by the architects and engineers.
This process accelerated early-stage research and enabled a level of precision difficult to achieve manually. It also expanded the design space, revealing configurations that met the project’s technical and experiential goals. Human judgment remained fundamental: designers selected and refined the preferred iteration based on contextual fit, clarity, and elegance. The workflow reduced structural steel quantities, improved energy performance, and rationalized the complex geometry into a facade composed predominantly of standard-sized glass panels.
A Vertical Convention Model
Inside, the project introduces a new model for compact event venues in Shanghai. A tall atrium anchors the primary entrance, where a sequence of escalators brings visitors to two large, column-free halls of 6,000 and 4,000 square meters. Among the largest spaces of their kind along the waterfront, these halls accommodate international conferences, expos, and community programming. Their vertical placement maximizes the site’s limited footprint while improving circulation and reinforcing intuitive wayfinding.
Perimeter public spaces, meeting rooms, and gathering areas receive abundant natural light and frame views of the river. Landscaped terraces on the upper levels offer outdoor rooms that expand the building’s event capabilities and extend the district’s broader open-space network.
SOM 公式サイト
https://www.som.com