
©︎ Muhamad Putera Wicaksana
インドネシア・マンダリカのサーキットに建つ〈プルタミナMotoGP体験ギャラリー(Pertamina MotoGP Experience Gallery)〉は、モータースポーツの熱狂と文化を伝える新たな体験型施設です。
MotoGPの「スピード」に着想を得たダイナミックな空間構成と、将来的な再利用を見据えた「足場ベースのモジュール建築」を融合させた建築であり、ジャカルタに拠点をおく建築事務所 AT-LARSが設計しました。
注目ポイント
- 建築言語として昇華された足場とモジュールシステム
- 「スピード」を体現する浮遊したボリュームと中央ボイド
- 環境と呼応するプレファブ式ポリカーボネートパネル
- 急速に変化するイベント環境における、建設負荷が低く適応性の高い建築形の採用
(以下、AT-LARSから提供されたプレスキットのテキストの抄訳)

©︎ Muhamad Putera Wicaksana

©︎ Muhamad Putera Wicaksana
2024年に完成した〈プルタミナMotoGP体験ギャラリー〉は、プルタミナ・マンダリカ・インターナショナル・ストリート・サーキットへの戦略的追加施設である。
スピードに着想を得たデザインとモジュール建築の論理を融合させたパビリオン様式を導入し、サーキットの精神と深く結びつき、本質的にダイナミックな印象を与える構造を生み出している。

©︎ Muhamad Putera Wicaksana
当初、迅速に組み立て可能な構造物として発注された本ギャラリーは、わずか4カ月で設計・建設され、数年間の使用を想定して計画された。本プロジェクトは、足場ベースのシステムを単なる技術的解決策としてではなく、1つの建築言語として採用している。
その結果誕生した1400m²の2階建てフレームワークは、文化的インフラとしての機能を果たすと同時に、適応型建築の未来を宣言する存在でもある。その生々しい工業的審美性は、サーキットの観覧席がもつ工業的な特性と共鳴しつつ、迅速な組み立て、将来的な改造、そして低負荷な維持管理を可能にしている。
この建築形態は、パビリオンとインフラストラクチャの中間に位置づけられ、再利用と適応性の論理を体現している。それは、恒久的で記念碑的な傾向が強い従来の博物館建築に対する、新たな代替案の提示である。

©︎ Muhamad Putera Wicaksana
本ギャラリーは、スピードと運動の建築的具現化として構想された。それを表現するのが、MotoGP文化の躍動感と活気を捉えた、細長く鮮やかな模様をもつボリューム「スピードボックス」である。
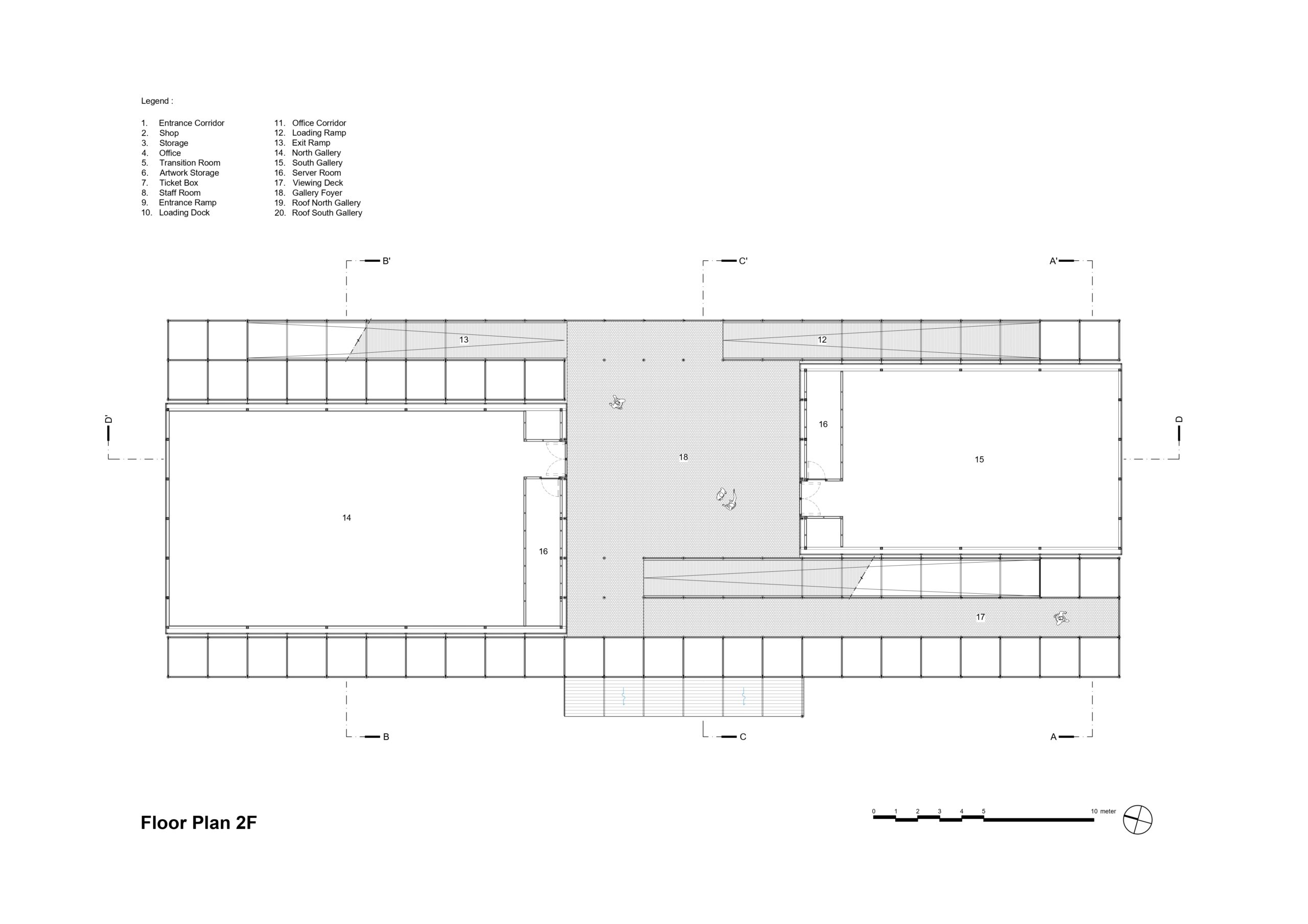
浮遊感と加速感を喚起するために地上から持ち上げられたこの形態は、戦略的に2つの平行なギャラリーボックスへと分割され、その間に劇的な中央の空洞を生み出している。この空間が、博物館のメインロビーであり交流の軸となる。
浮遊するボリュームの下には、商業施設やサポート機能を収容する接地層が配置されており、公共領域を活性化させつつ全体の構成を安定させている。高架歩道、集いのテラス、展望台と相まって、このギャラリーは1つの文化的なアリーナとして機能する。来場者がマンダリカにおけるMotoGPの進化する精神、歴史、そして未来を体験し、称え、予感することができる没入型の環境である。

©︎ Muhamad Putera Wicaksana

©︎ Muhamad Putera Wicaksana
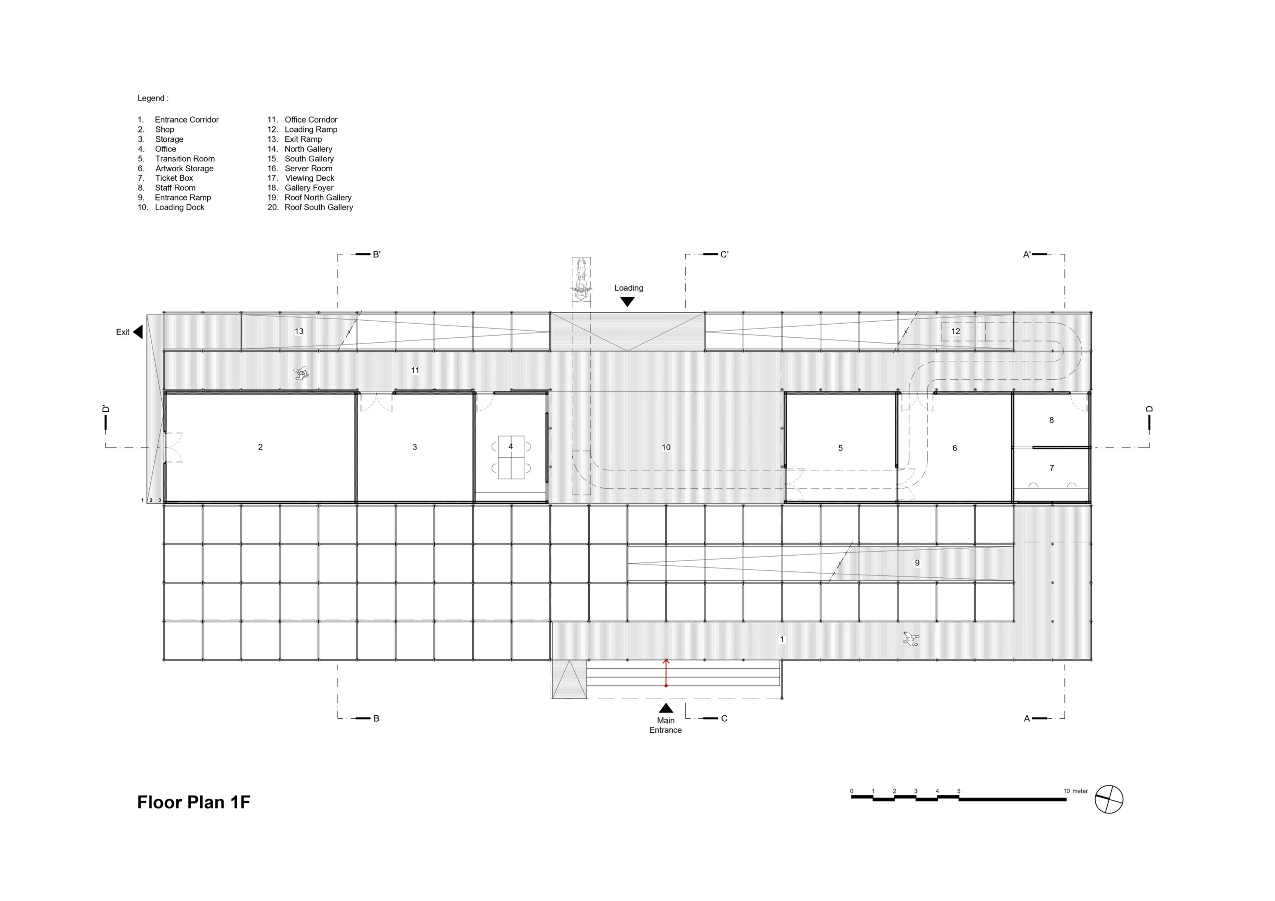
建物は、明確な目的と動線をもつ2層構造で構成されている。1階は小売、事務、保管スペースといった運営機能を収容し、上層階には開放的なロビーと展望デッキで連結された2つの独立したギャラリーボックスが配置されている。アクセス性と包括性を重視した動線設計により、東西のファサードに沿って延びるスロープが各階を滑らかに接続し、すべての来場者が平等に空間と関われるよう配慮されている。
南ギャラリーは、展示会や発表会、コミュニティプログラムなど、多様な用途に対応可能なフレキシブルなイベントスペースとして機能する。それと対峙する北ギャラリーは、インドネシア初の公式マンダリカMotoGP™ギャラリーとして、同国で成長を続けるモータースポーツ文化を称える空間である。記念品やインスタレーションを通じて、このスポーツが持つ世界的な文化をローカルな文脈に落とし込んで展示している。

©︎ Muhamad Putera Wicaksana

©︎ Muhamad Putera Wicaksana
ファサードは、素材を通じて「動き」の概念を具現化している。半透明でリブ加工が施された淡色調のプレファブリケーション式ポリカーボネートパネルが水平のリズムで構成され、疾走するバイクの残像を想起させる。日中はそのパネルを陽光が透過し、ギャラリーの内部に鮮やかな屈折光を散乱させる。夜間になると建物は内部から発光し、アイドリング中のエンジンのように、建物の外皮を通して内部の活動が柔らかく視認できるようになる。
この不透明性と輝きの相互作用が、構造全体に動的な性質を与えている。光、時間、使用状況の変化によって、静的な建築に命が吹き込まれるのである。この視覚的なダイナミズムは単なる美学にとどまらず、パフォーマンスの本質そのものを体現している。光、素材、動きの相互作用が、MotoGP™のアドレナリンと深く共鳴しているのである。

©︎ Muhamad Putera Wicaksana

©︎ Muhamad Putera Wicaksana

©︎ Muhamad Putera Wicaksana
本プロジェクトは、モジュール建築とプレファブリケーション工法が、効率性と表現力をいかにして両立させ得るかを示す好例である。足場フレームとパネル化された外皮は、建設時の廃棄物と現場作業を削減するだけでなく、将来的な移転、拡張、再構成をも可能にする。これは、急速に変化するイベント環境における持続可能な設計の核心的な原則である。
スポーツと観光の拠点として急成長を遂げているマンダリカ地域において、本プロジェクトは適応可能な文化インフラの原型として力強く存在している。それは動きを体現し、技術を称え、その場所の文脈を尊重する建築物である。

©︎ Fernanda Fattahalim

©︎ Fernanda Fattahalim

©︎ Fernanda Fattahalim

©︎ Fernanda Fattahalim

©︎ Fernanda Fattahalim

©︎ Muhamad Putera Wicaksana

©︎ Muhamad Putera Wicaksana

©︎ Muhamad Putera Wicaksana

©︎ Muhamad Putera Wicaksana

©︎ Muhamad Putera Wicaksana

Site plan

1F plan

2F plan

Roof plan

Elevation North & West

Section B & C

Section D

Section Detail
以下、AT-LARSのリリース(英文)です。
Pertamina MotoGP Experience Gallery
Completed in 2024 as a strategic addition to the Pertamina Mandalika International Circuit, the Pertamina MotoGP Experience Gallery introduces a pavilion typology that blends a speed-inspired design and modular construction logic, creating a structure that connects with the spirit of the circuit and feels inherently dynamic.
Initially commissioned as a quick to assemble structure, the gallery was designed and built in just four months and intended to remain in place for several years. The project adopts a scaffolding-based system not simply as a technical solution but as an architectural language. The result is a 1400-square-metre, two-storey framework that acts both as cultural infrastructure and as a statement about the future of adaptable architecture. Its raw industrial aesthetic resonates with the industrial character of the circuit’s grandstands while enabling rapid assembly, future modification, and low-impact maintenance.
This architectural morphology—somewhere between pavilion and infrastructure—embraces the logic of reuse and adaptability, offering an alternative to the permanent, monumental tendencies of museum architecture.
The Pertamina MotoGP Experience Gallery is conceived as an architectural embodiment of speed and motion, expressed through the Speed Box—an elongated, vibrantly patterned volume that captures the dynamism and vibrance of MotoGP culture. Elevated above the ground to evoke a floating, accelerated presence, this form is then strategically split into two parallel gallery boxes, generating a dramatic central void that becomes the museum’s primary foyer and social spine. Beneath the suspended masses, a grounded layer accommodates commercial and supporting functions, activating the public realm while anchoring the composition. Together with elevated walkways, gathering terraces, and viewing platforms, the gallery operates as a cultural arena—an immersive environment where visitors can experience, celebrate, and anticipate the evolving spirit, history, and future of MotoGP in Mandalika.
The building is organized into two stacked levels with a clear sense of purpose and flow. The ground floor accommodates operational functions — retail, office, and storage spaces — while the upper floor houses two distinct gallery boxes connected by open foyers and viewing decks. Accessibility and inclusivity guided the circulation design, with elongated ramps on the east and west façades providing a fluid connection between levels, ensuring all visitors can engage with the space equally.
The South Gallery acts as a flexible event space, adaptable for exhibitions, launches, or community programs. Facing it, the North Gallery celebrates Indonesia’s growing motorsport culture as the nation’s first official Mandalika MotoGP™ Gallery, displaying memorabilia and installations that map the sport’s global culture in local context.
The façade embodies the idea of motion through material. Prefabricated polycarbonate panels — translucent, ribbed, and lightly tinted — are composed in horizontal rhythms that evoke the blur of a passing bike. During the day, sunlight filters through, scattering vibrant refractions across the gallery interiors; by night, the building glows from within like an idling engine, its inner activity softly visible through the outer skin.
This interplay of opacity and luminosity gives the structure a kinetic quality — static architecture animated by the shifting conditions of light, time, and use. This visual dynamism is more than aesthetic; it embodies the essence of performance — the interplay of light, material, and motion that resonates with the adrenaline of MotoGP™
This project exemplifies how modular construction and prefabrication can produce architecture that is both efficient and expressive. Its scaffolding framework and panelized envelope not only reduce waste and on-site labor but also allow for future relocation, expansion, or reconfiguration — key principles for sustainable design in fast-paced event environments.
In Mandalika, a region rapidly emerging as a hub for sports and tourism, this project stands as a prototype for adaptable cultural infrastructure — a building that embodies movement, celebrates technology, and honors place.
Date: 15.11.2025
Project DataName: Pertamina MotoGP Experience Gallery
Location: Pertamina Mandalika International Circuit, Indonesia
Completed: 2024
Opening:27-29 September 2024
Design & Built Period: June – October 2024 (4 months)
Site Area: 13,600 sqm
Floor Area: 1,400 sqm
Floors: 2
Material: Modular scaffolding system combined with H-beams, prefabricated polycarbonate panels
Program: Galleries, event space, shop, office, storage, and viewing deckProject CreditsProject Owner: Indonesia Tourism Development Corporation
Project Sponsor: Pertamina
Project Manager: Idelaju
Architecture Design: AT-LARS
Lead Architect: Stephanie Larassati
Design Team: Raihan HJP, Angelika
Technical Team: Muhammad Iqbal
Construction: Diles Architecture
Content Direction: MATRA
Branding Identity: Studio Woork
Exhibition Design: .this/PLAY
Structure: Sucoot
Photographer: Muhamad Putera Wicaksana (Architecture), Fernanda Fattahalim (Exhibition)
AT-LARS 公式サイト
https://www.at-lars.id