
©︎ Qingshan Wu

©︎ Qingshan Wu
中国・南坪村に位置する〈ビレッジ・シネマ(Village Cinema)〉は、地域の歴史的建造物を活用した、村民のためのレジャー活動、文化イベント、公共図書館を統合した新たな複合公共空間です。
文化財保護の厳しい制約から、建物の主要構造に手を加えることなく空間を柔軟に刷新する「回転パネルシステム」を導入したプロジェクトであり、上海の設計事務所 アトリエ・グオ(Atelier Guo)が設計しました。
注目ポイント
- 既存構造に介入しない「加法」の設計アプローチ
- 徽州建築における「大工」と「細工」の分業に着想を得た二次構造システム
- 用途に応じて空間を操作する「回転パネルシステム」
- 新旧素材の調和を図る、プレファブと職人の手作業を融合した施工プロセス
(以下、アトリエ・グオから提供されたプレスキットのテキストの抄訳)

©︎ Qingshan Wu

©︎ Qingshan Wu
本プロジェクトは、「イメージ」(写真と映像)を核とする南坪村の独自の文化的アイデンティティに応え、程家祠堂(ていけしどう)を村民のレジャー活動、文化イベント、そして公共図書館を統合した複合公共空間へと変容させるものである。
設計においては文化財保護の要件を厳守し、祠堂の主要構造には一切手を加えることなく、多様なニーズに応えるための新機能を導入している。

©︎ Qingshan Wu

©︎ Qingshan Wu
歴史的建造物保護という厳しい制約に直面するなか、本設計では「引き算」ではなく「足し算」のアプローチを採用した。ここでは、伝統的な徽州(きしゅう)建築における「大工仕事」(構造枠組み)と「細工仕事」(充填・細部仕上げ)の分業の知恵に着想を得て、独立した二次構造システムを導入している。
こうして生み出された「回転パネルシステム」が、本設計の中核を成す。このシステムは祠堂の三間構造に沿って配置され、元の壁に触れることなく、より公共的で気軽なエントランスから中庭の核心的な活動空間に至るまで、空間の階層を柔軟に定義する。同時に、既存の木製壁板に対する防湿や通風といった、実用的な課題にも対応する仕組みとなっている。

©︎ Qingshan Wu

©︎ Qingshan Wu

Pivoting panel system-1

Pivoting panel system-2
本空間における体験の核心は「映像鑑賞」にある。従来の映画館とは異なり、この祖廟での映画鑑賞は、既存の構造枠組みを通して行われる。設計はこれを戦略的に捉え、多層的な鑑賞体験へと転換した。具体的には、第二間から目線の高さで座って鑑賞するか、あるいは第一間の庭越しに遠方から眺めるかという、複数の選択肢を提供している。
また、中庭の上部には可動式遮光システムを設置し、昼間の上映をも可能にした。中2階に設けられた図書室では、既存空間の高い窓とスケールに巧みに適応させるべく、着脱式のモジュール家具を採用している。

©︎ Qingshan Wu

©︎ Qingshan Wu

©︎ Qingshan Wu

©︎ Qingshan Wu
詳細設計の段階においては、新旧が混在する木製壁パネルと調和させるため、家具のプロポーションを繰り返し調整し、すべての鋼材部品を木材で覆うことで素材の一貫性を確保した。
遮光システムにはコンクリート製のカウンターウェイトを組み込み、来館者の動線と一体化させている。コーヒーバーの配管などのサービスラインについても、歴史的建造物を損なうことのないよう入念に計画された。
さらに、すべての家具は現場外でプレファブリケーションされている。建築家と製造業者が制限機構とパネルモジュールを最適化したのちに現地へ搬入され、指導のもとで地元職人が組み立てを行うことで、設計と施工調整における高い精度が確保されたのである。

©︎ Qingshan Wu

©︎ Qingshan Wu

©︎ Qingshan Wu

©︎ Qingshan Wu
空間の生命力は、その使用法に宿る。「回転パネルシステム」の開閉によって、空間は緻密な構造的表現と広大な歴史的ボリュームの間を自由に行き来し、絶えず変化する公共のニーズに応えていく。
施設の運営においては村民の参加を促し、地域文化をサービスへと自然に融合させている。本プロジェクトは、遺産保存、村民のニーズ、そして「イメージ」というテーマの均衡を模索する1つの実践である。設計に内在する多様な可能性を通じて、南坪村の住民や訪問者とともに、農村における公共文化空間の想像力を切り拓くことを目指している。

©︎ Qingshan Wu

©︎ Qingshan Wu

©︎ Qingshan Wu

©︎ Qingshan Wu

©︎ Qingshan Wu

©︎ Qingshan Wu

©︎ Qingshan Wu

©︎ Qingshan Wu

©︎ Qingshan Wu

©︎ Qingshan Wu

©︎ Qingshan Wu

©︎ Qingshan Wu

©︎ Qingshan Wu

©︎ Qingshan Wu

©︎ Qingshan Wu

©︎ Qingshan Wu

©︎ Qingshan Wu

©︎ Qingshan Wu

©︎ Qingshan Wu

©︎ Qingshan Wu

Axonometric drawing

Site plan

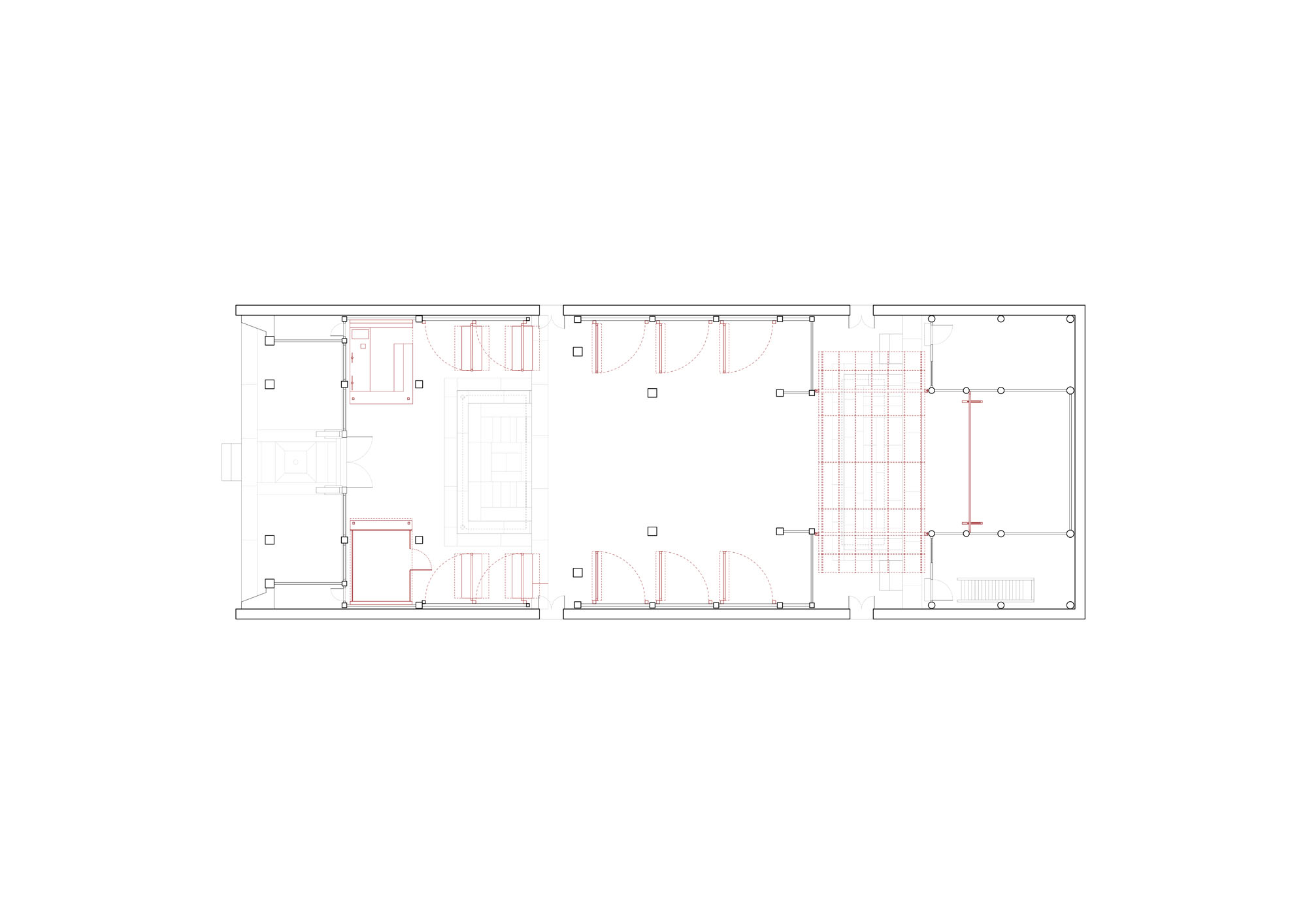
Floor plan

Section

Bar counter-1

Bar counter-2

Library-1

Library-2

Shading system-1

Shading system-2
以下、アトリエ・グオのリリース(英文)です。
Project Name: Village Cinema
Completion Year: 2025
Gross Built Area: 323m²
Design Firm: Atelier Guo
Company Website: https://atelierguo.com
Contact Name: Liaohui Guo
Contact e-mail: atelierliaohuiguo@gmail.com
Firm Location: Shanghai, China
Lead Architects: Liaohui Guo
Lead Architects e-mail: atelierliaohuiguo@gmail.com
Project location: China,Anhui,HuangshanAdditional CreditsDesign Team: Liaohui Guo, Min Wu, Bang Zhang , Wenkai Wang, Huan Chen, Tengxin Sun, Ruiqi Situ, Jingyi Ren
Clients: Village Cinema Temporary Party Branch, Nanping Village Committee
Principle architect: Liaohui Guo
Project architects: Min Wu, Bang Zhang , Wenkai Wang
Site Architects: Wenkai WangMedia ProviderPhoto credits: Qingshan WuProject DescriptionThis project responds to Nanping Village’s unique cultural identity centered on “image” (photography and film), transforming the Cheng Family Ancestral Hall into a hybrid public space that integrates villagers’ leisure activities, cultural events, and a public library. The design strictly adheres to heritage conservation requirements, introducing new functions to meet diverse needs without altering the ancestral hall’s main structure.Faced with the rigid constraints of heritage protection, the design strategy adopts an “addition” rather than “subtraction” approach. We introduce an independent secondary structural system, inspired by the wisdom of the “large-scale carpentry” (structural framework) and “small-scale carpentry” (infill and detailing) division of labor in traditional Huizhou architecture. The resulting “Pivoting Panel System” forms the core of the design—it follows the three-bay layout of the ancestral hall, flexibly defining spatial hierarchies from the more public, informal entrance to the core activities in the inner courtyard, all without touching the original walls. It simultaneously addresses practical issues like moisture protection and ventilation for the existing wooden wall cladding.“Film viewing” is central to the spatial experience. Unlike in a conventional cinema, viewing a film in the ancestral hall requires looking through the existing structural framework. The design strategically transforms this into layered viewing experiences: one can either sit and watch from the second bay at eye level or view from a distance across the first-bay courtyard. An operable shading system is installed above the courtyard to enable daytime screenings. The library on the second-floor mezzanine utilizes detachable and modular furniture to cleverly adapt to the existing space’s high windows and scale.During detailed design, to harmonize with the hall’s mix of old and new wooden wall panels, furniture proportions were repeatedly adjusted, and all steel components were wrapped in wood to ensure material coherence. The shading system incorporates concrete counterweights integrated with visitor circulation flows, and service lines for the coffee bar are meticulously routed to avoid damaging the heritage fabric. All furniture was prefabricated off-site; after architects and manufacturers optimized limiting mechanisms and panel modules, it was transported to the site and assembled by local craftsmen under guidance, ensuring precision in design and construction coordination.A space’s vitality lies in its use. As the “Pivoting Panel System” opens and closes, the space freely alternates between states of dense structural articulation and expansive historical volume, serving evolving public needs. Operations encourage villager participation, naturally integrating local culture into the services offered. This project represents a practice seeking balance among heritage conservation, villagers’ needs, and the “image” theme. Through the multiple possibilities embedded in its design, it aims to open up imaginations of rural public cultural space together with Nanping’s residents and visitors.
アトリエ・グオ 公式サイト
https://atelierguo.com