多くの読者の関心を集める建築には、必ず理由があります。設計の巧みさや空間の魅力はもちろん、いまの時代や住まい手の感覚と、どこかで強く接続しているからこそ、人の目に留まるのではないでしょうか。
「PROJECT」月間PVランキングで上位となった作品を、多く読まれたという事実を1つの手がかりに、建築がどのように構想され、かたちになっていったのかを紐といていきます。
2026年2月の月間PVランキングの1位は、INTERMEDIAによる〈斜面と土〉。代表の佐々木翔 氏にインタビューを行い、斜面を内部に取り込む本作について、設計の背景やプロセス、そして地形と建築の関係をどのように捉えているのかを聞きました。
INDEX
- 土地の記憶から立ち上がる住まい
- 斜めの発想
- 断面を成立させる構造とディテール
- 土地に根差すことで立ち上がる建築のタイポロジー
- なぜ、この建築は読まれたのか
佐々木翔|Sho Sasaki
1984年 長崎県生まれ。2007年 九州芸術工科大学(現 九州大学)卒業。2010年 九州大学大学院修了。末光弘和+末光陽子/SUEP.を経て、2015年- INTERMEDIA。2022年- 水脈(mio)代表取締役。2025年- 長崎大学 准教授。
INTERMEDIA
https://www.intermedia-co.jp
地形の記憶から立ち上がる住まい
── 改めて、〈斜面と土〉の概要について教えてください。
佐々木翔 氏(以下、佐々木):敷地は、私たちが設計活動の拠点としている島原半島の一角、長崎県雲仙市にあります。海沿いの国道と山側の農道が並行して走っており、それらをつなぐ道路沿いに建つ細長い平屋の住宅です。
クライアントは、現在進行中の別件のプロジェクトを通して知り合った方で、ご夫婦とお子さん2人のための住宅としてご依頼いただきました。お互いの考え方への理解や信頼関係がすでに築かれていたこともあり、設計の初期段階から、私たちの設計スタイルや思想まで含めて受け入れていただいていました。

有明海を一望する敷地。Photo: YASHIRO PHOTO OFFICE
佐々木:有明海を一望できる約570m²の敷地は、都市計画区域外にあり、法的な制約はほとんどありませんでした。むしろ、近年の物価高騰によるコスト面の制約を除けば自由度は非常に高く、その“自由さ”自体が設計の難しさでもあったように思います。
初期のスタディでは、いくつもの可能性を検討しました。有明海を望むテラスをもつ2階建ての案や、敷地へ至る斜面を建物内に引き込むようなスキップフロアの案、崖側と道路側で機能を明快に分ける案、広い敷地に複数のボリュームを点在させる案など、多様なスタディを重ねています。

スタディ過程の模型。Photo: INTERMEDIA

〈斜面と土〉配置図。

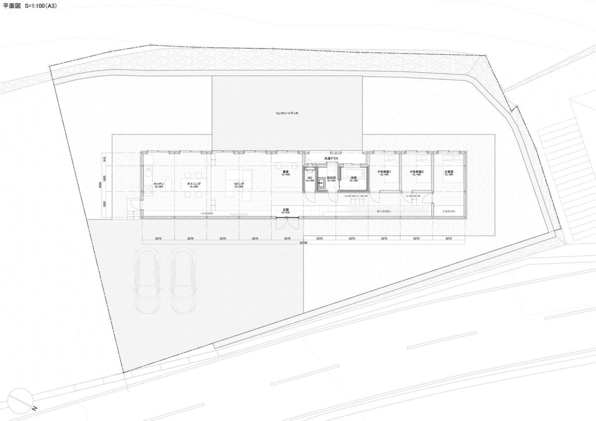
〈斜面と土〉平面図。
斜めの発想
── そうした自由度のなかで、「斜め」という発想はどのように生まれたのでしょうか。
佐々木:長崎で活動していると、もともとが平坦な敷地に出会うことはほとんどありません。私自身、この地を拠点として10年以上が経ちますが、傾斜地に対してどのように建築を応答させるかは、継続して考えてきたテーマでもあります。
今回の敷地も、今でこそ平坦ですが、周辺の地形から本来は傾斜地であったことは明らかです。履歴を辿ると、1980年代ごろまでは小山状の地形を活かした果樹の段々畑が広がっており、その後、1990年代以降に尾根に沿って道路が整備され、それに接するかたちで盛土が行われ、現在にいたったと考えられます。

〈斜面と土〉敷地の変遷(1974年-現在)。
佐々木:スタディを重ねるなかでも、その「もともとの地形」と「現在の状態」とのあいだのギャップが、常に頭の中にありました。
結果として、傾斜を取り込んだ細長い平屋建てという、一見するとシンプルな構成に落ち着きました。以前からこの土地で暮らしてきたクライアントとも共有できる納得感があり、今回の敷地に対する自然な応答になったと感じています。

〈斜面と土〉広域断面イメージ。

〈斜面と土〉断面図。
佐々木:敷地のリサーチを進めていく際、土地の履歴や広域の地形、周辺環境、敷地の条件や建物の配置、そして生活のスケールへと、徐々に視点を近づけていくように段階的に読み解いていくことがよくあります。とくに住宅の場合は、クライアントがまだ気づいていない広い視野で、そもそも私たちがどのような土地に家を建てようとしているのかを一緒に理解していくことが多いです。
改めて考えると、広域的な視点から敷地を捉えるという姿勢は、山や海が身近にあり、傾斜地が多いという長崎の土地柄にも影響を受けているのかもしれません。結果として、私たちの建築は「ランドスケープ的」と評価されることもありますが、その土地に根付くとはどういうことかを、より引いた視点から捉えることが設計の起点になっています。
断面を成立させる構造とディテール
── 建物内部の傾斜はどのように生まれているのですか。
佐々木:有明海側に向かって土地を掘り下げることで断面を構成しています。基礎は平坦な盛土の下にある、もともとの硬い地盤の傾きに沿って設けています。基礎から支持地盤までの距離が短くなり、地盤改良が必要な範囲も場所ごとに大きく変わらないため、コストの抑制にもつながっています。
半地下の構成になるため、基礎の段階では防水と断熱をどのように成立させるかが大きなポイントでした。土地に潜り込んでいくような体験にしたかったので、建物内では基礎が現しとなる外断熱を採用し、断熱材を防水のための保護層としても機能させています。

基礎打設後の施工風景。Photo: INTERMEDIA

水気がほかの空間に及ばないように、浴室の内壁は基礎を立ち上げている。Photo: INTERMEDIA
── 施工において、技術的に重要だった点は何でしょうか。
佐々木:建物の構造は長手方向は2,275mmスパン、屋根梁や壁・天井、スラスト止めは910mmスパンで構成しています。架構においては唯一、斜め同士に取り合う屋根と梁の納まりがプレカットでは対応できず、現場での手加工によって実現しています。
ほかにも、たとえば外装のガルバリウム鋼板については、役物を使わずに内側へ折り込む納まりとし、割付は200mm幅で統一しています。崖側の開口部の高さも同様に200mmずつ変化していて、住まい全体をとおして一定のリズムを与えることで、斜面に呼応する身体的な体験が際立つよう計画しました。

開口部の高さと外装の目地の位置が一致する。Photo: YASHIRO PHOTO OFFICE
佐々木:内装においても、たとえば内壁にはシナ合板を用いていますが、天井や梁と接する小口の切断面は斜めにカットし、ぴったりに納めています。さらに、梁下には屋根の広がりを抑えるためのタイバーには照明を仕込んでいますが、こうした配線のための孔なども、家具工事に近い精度で対応していただきました。
今回の施工会社とは3回目の協働で、お互いの信頼関係も築けてきていて、施工現場での議論も活発でした。本作はとくに、職人の高い技術と前向きな姿勢に支えられた部分も大きいと感じています。

内壁の施工風景。V字型のタイパーの上下の向きは梁ごとに異なり、その向きに合わせて、間接照明と直接証明が切り替わる。Photo: INTERMEDIA
土地に根差すことで立ち上がる建築のタイポロジー
── 他のプロジェクトと比較したときに、〈斜面と土〉はどのように位置づけられますか。
佐々木:傾斜地に対する応答の1つに位置づけられると考えています。というのも、これまでのプロジェクトでも地形との関係を起点に設計を組み立てることが多く、本作もその延長にあるからです。
たとえば〈基壇地形の改修〉では、既存建物の解体後に残る基壇が設計の手がかりとなりました。基壇は地形の高低差に沿って設けられていたもので、この基壇がつくる段差を人の居場所として読み替え建物内へ取り込むことで、ランドスケープの延長として建築を立ち上げています。

〈基壇地形の改修〉。Photo: INTERMEDIA

〈基壇地形の改修〉改修前。Photo: INTERMEDIA
佐々木:また〈HOGET〉では、建物に加えて前面の外構も改修しています。もとは城の石垣のように内外を断絶する構えでしたが、その一部を解体し、高低差をなだらかにつなぎ直すことで、内外が連続する関係へと転換しました。その結果、人の営みが外部へとにじみ出ていくような地域交流の場となりました。

〈HOGET〉。Photo: INTERMEDIA

〈HOGET〉改修前後のイメージ。
佐々木:地方に根差しているからこそ生まれる建築のタイポロジーがあると考えています。この島原には急な傾斜地もあれば、一見平坦に見えても、石垣の立ち上がりによってはじめて認識できるような、緩やかな土地の起伏もあります。
そうした微細な変化や身体的な感覚は、暮らしているからこそ気づけるものだと思います。そして、それらを起点に立ち上がった建築のあり方は、その土地だけの個別解ではなく、別の場所にも応用可能な”型”として共有できるのではないかと考えています。

島原半島の風景。遠方に雲仙普賢岳を望む。Photo: INTERMEDIA
次の世代へひらく
── 今後取り組みたいテーマがあれば教えてください。
佐々木:これまでと同様に、拠点を置く長崎に根差した設計を続けていきたいと考えています。
一方で、地方に暮らしているからこその実践が、その土地にとどまらず、より重要な意味をもっていくのではないかとも感じています。土地の環境や蓄積されてきた文化を反映した個別解が、より広い意味での「建築の一般解」に接続していく。そうであるならば、設計活動の拠点を絞り、その土地で実践を積み重ねていくこと自体が、建築文化への貢献になり得るのではないでしょうか。
もう1つは、建築家の視点を分野を問わず次の世代に広めていくことです。建築家という職能を高校生に紹介する企業説明会や探究活動のサポートのような活動も行っていて、現在のオフィスも地域の拠点施設のようなかたちで運営しており、イベントの場としても活用しています。

地元の高校生との探究活動の様子。毎月1回のペースで〈水脈〉で行っている。Photo: INTERMEDIA

〈水脈〉は地元の商店街に面しており、市民への公開イベントも定期的に開催している。Photo: INTERMEDIA
佐々木:長崎県の人口流出は多く、未来に対する強い危機感を共有しています。全国的に見られるこうした状況のなかで、分野にとどまらず、建築家の視点が地域の豊かさや想像力を支えることにつながるのではないかと考えています。
過疎地域では、1人ひとりの影響力が相対的に大きくなります。だからこそ、若い世代に対して建築的な視点を伝えていくことには、より大きな意味があります。たとえ進学や就職で一度その土地を離れたとしても、深く向き合った経験があれば、将来的に何らかのかたちで関わろうとする人が現れるかもしれません。分野を問わず、多様な立場から関わる人が少しずつ増えていくことを期待しています。
また、昨年10月より長崎大学の准教授に着任し、教育に関わる機会も広がってきました。学生たちの設計力を底上げしていくことも含め、地方だからこその取り組みとして、まだ途上ではありますが、今後も継続していきたいと考えています。

大学での講義風景。Photo: INTERMEDIA
なぜ、この建築は読まれたのか
── 月間PVランキングで1位となった理由を、設計者の視点でどのように分析されていますか。
佐々木:偶然かもしれませんが、ほかのメディアでの露出と時期が重なったこともあり、話題性につながった可能性はあると思います。
一方で、サムネイルとなった立面にも、どこか引っかかりがあったのではないかと感じています。一見するとシンプルなかたちですが、屋根は敷地ではなく前面道路に平行にかけられており、そのプロポーションのずれが印象に残ったのかもしれません。

Photo: YASHIRO PHOTO OFFICE
── 最後に、事務所でお気に入りの場所を教えてください。
佐々木:INTERMEDIAは、築178年の古民家を改修した、1階がカフェ、2階がコワーキングスペースの交流拠点にも事務所を置いています。
敷地の近くでは毎日約4,000トンの湧き水が出ており、その一部が建物前の側溝を流れていて、カフェの一角には、湧き水を炊事用に建物内へ引き込んでいた名残が見られる場所があります。そこがお気に入りです。
水がゆっくりと流れる音や気配が、島原の時間の流れを感じさせてくれるような居場所になっています。

INTERMEDIA 水脈オフィス。前面の側溝に湧き水が流れている。Photo: INTERMEDIA

INTERMEDIA 水脈オフィス1階のカフェにある、お気に入りの場所。Photo: INTERMEDIA
(2026.03.06 オンラインにて)
特記なき図版・画像提供:INTERMEDIA
Interview & text: Naomichi Suzuki
