施設DATA
- 設計
ナノメートルアーキテクチャー- 主用途
放送用スタジオ- エリア
エンパワーリングゾーン
〈サテライトスタジオ 東〉の見どころポイント!
建築の外側から素材を見直す
〈サテライトスタジオ 東〉は、テレビ局の放送スタジオを内包した木造平屋で、円盤状の屋根を支える柱は日本各地から集めた「困った木」を積層して構成されています。身近にありながら普段は選ばれない建材素材を採用することで、建築を取り巻く社会・環境・産業の課題を捉え直そうとする試みです。

Photo: ToLoLo studio
さまざまな人間の都合で不要となった「困った木」を日本全国から収集し、柱に用いたサテライトスタジオ東には、テレビ局の放送スタジオが3つ入っている。いろんな種類の木が縦に積み重ねられ、円盤状の屋根を支える。

「困った木」募集のチラシ。Image: ナノメートルアーキテクチャー

「困った木」取得の様子。Photo: ナノメートルアーキテクチャー

「困った木」取得の様子。Photo: ナノメートルアーキテクチャー
プロポーザル提案時から案は変わらず、実施設計期間から約1年かけて困った木を集めた。普段は製品化された木を扱うため、建材としての木という認識が根付いていた。紆余曲折を経て建築の世界に入った私たちは、建築を考えながらその外側から見て、また中に入り、行ったり来たりを繰り返して思考している節がある。しかしながら、建材素材ではなぜか決まったものから選ぶクセと言うか、コストやルールからそうなってしまう現状があり、それに疑うこともなくなっていたように感じる。すっかり建築の内側でしか考えられないようになってしまっていた、と言っても過言ではないかもしれない。

Photo: ToLoLo studio

Photo: ToLoLo studio
しかし木の取得では建材になる前の木や身近にある木の意味に触れた。木をきっかけに、その裏側にある社会問題や環境・産業問題、また良い面としての木から学ぶ活動に気付かされた。建築の外側に足を踏み出し、視野が広がったような感覚がある。

Photo: ToLoLo studio

Photo: ToLoLo studio
壁材には「苫編み」という技法で編んだ稲わらを取り付けた。外壁に求められるのは耐久性である。しかし苫は1年で更新されるような材料で、現代の材料とは真逆の特徴をもつ。半年という会期だからこそたどり着いた材料だ。また茅葺きの葦は取得が簡単にはできないが、稲わらは日本全国どこからでも毎年手に入るお手軽材料である。苫を今後も外壁として提案し続けるわけではないが、素材の寿命やサイクル、入手といった経路についても考えを改めるきっかけとなった。

Photo: ToLoLo studio

Photo: ToLoLo studio

Photo: ToLoLo studio
誰もが関わりやすい素朴なものをきっかけに、積み柱という木造の新しい工法の再編にアプローチすると同時に、自身と関係があるかもしれない背景にある社会課題を認識できるようにしする試みである。「困った木」を集めたその先にぼんやりと見えてくる未来について意識を向けることができるだろうか。見えなかった課題に出会うことで未来は明るくなると感じている。

Photo: ToLoLo studio

Photo: ToLoLo studio

Photo: ToLoLo studio

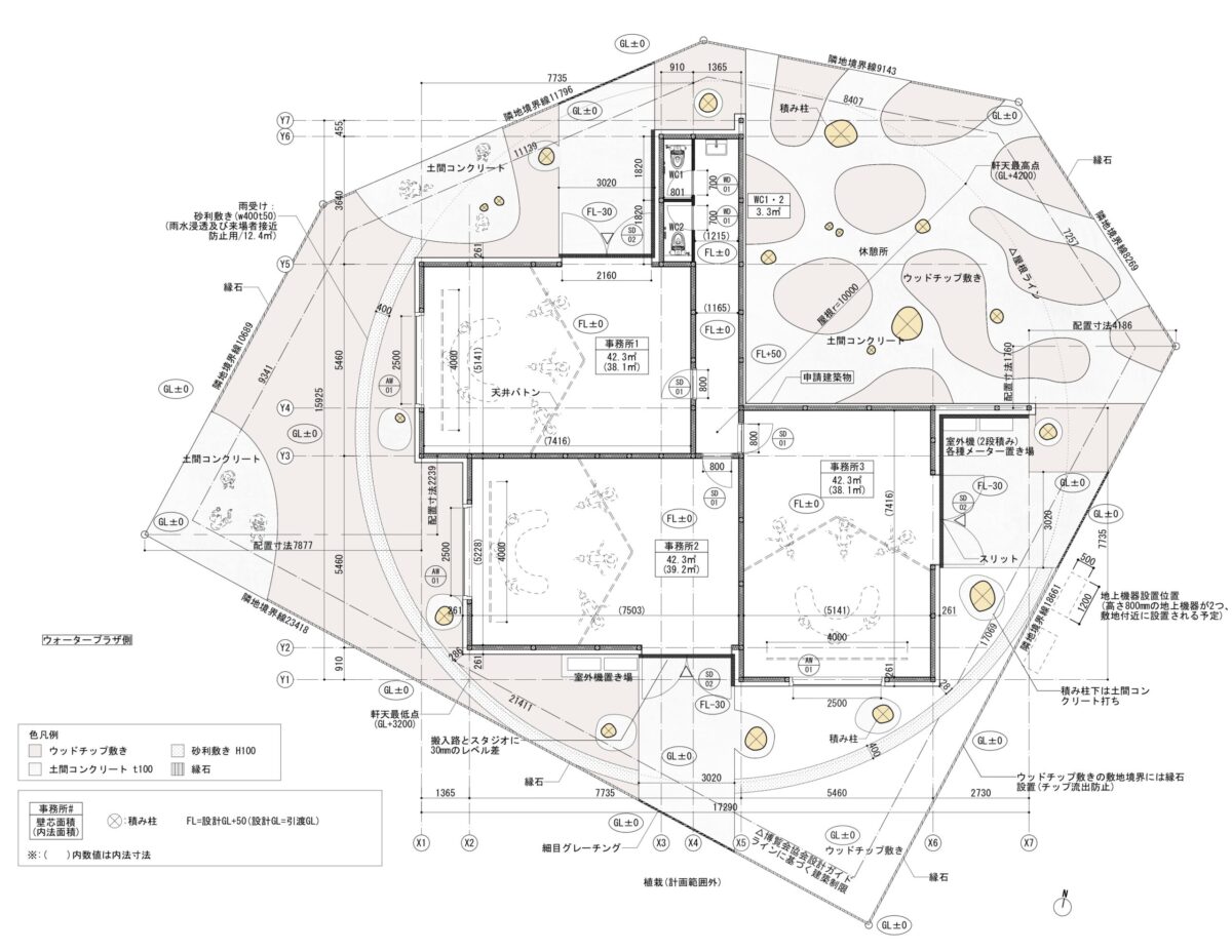
平面図。Image: ナノメートルアーキテクチャー

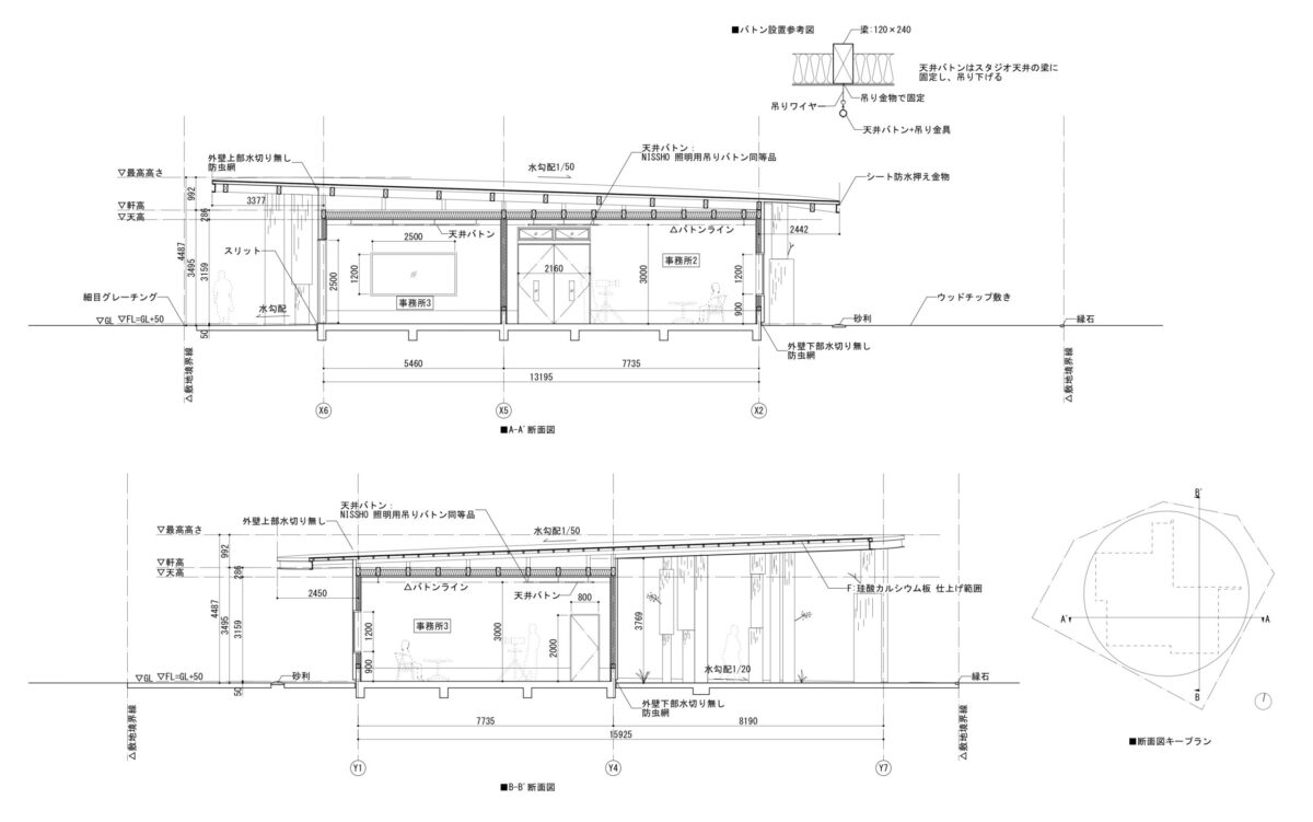
断面図。Image: ナノメートルアーキテクチャー
建築DATA
構造:木造
階数:地上1階
敷地面積:448.78m²
建築面積:259.75m²
延床面積:252.30m²設計:ナノメートルアーキテクチャー
担当:野中あつみ、三谷裕樹、原田祥吾
設計監理:野中あつみ、三谷裕樹、原田祥吾
構造設計:EQSD
設備設計:明和技術管理事務所
木材調達協力:SHARE WOODS
撮影:ToLoLo studio
WEB・コンテンツ制作:KIDZUKI
施工:宮崎工務店
木材提供(順不同):
UR都市機構
ノッティーハウスリビング
豊橋市役所都市計画部公園緑地課
ヤトミ製材
名古屋鉄道
藤寿産業
いふくまち保育園
ReBuilding Center JAPAN
SHARE WOODS
国土交通省中部地方整備局 豊橋河川事務所
熱田神宮
森庄銘木産業
玉川学園
木原木材
片桐銘木工業
テキスト提供:ナノメートルアーキテクチャー
万博特設サイト『SPECIAL FEATURE EXPO2025』は こちら▼