
© Aaron Kohler
スイスのムッテンツ市に位置する〈ムッテンツ浄水場(Muttenz Water Purification Plant)〉は、浄水機能だけでなく教育機能を備え、集会所としても利用可能な建築です。
アメリカ、スイス、アルバニアに拠点を置くオッペンハイム・アーキテクチャ(Oppenheim Architecture)が設計しました。
注目ポイント
- 「自然の上に建つ」ではなく「自然と共にある」という建築理念
- 処理工程を体感し、水を五感で称える場
- 保護林と工業団地の間の敷地という、自然と産業の対比文脈を反映
- 柔らかな形態と粗く硬い質感という対比表現
(以下、オッペンハイム・アーキテクチャから提供されたプレスキットのテキストの抄訳)

© Aaron Kohler
「自然災害時、安全な飲料水は最優先事項である。人間は食物なしでも長く生存できるが、清潔な水に関する情報伝達は、コレラ、赤痢、栄養失調、飢饉、さらには死のリスクを回避するために不可欠である。」
ユ・テオ(Tae Yoo)

© Aaron Kohler
スイス・ムッテンツ市は、新たな市営浄水場の設計をOAD Europeに委託した。本施設は持続可能性のモデルであり、ライン川河畔という対照的な環境に対して高度な配慮を行っている。
保護林と工業団地の間に位置する本プロジェクトは、厳しい環境下における複雑な浄化プロセスを教育的に示す要素を備えている。

© Aaron Kohler

© Aaron Kohler
本浄水場の重要な役割は、ムッテンツ市およびバーゼル地域における新たなランドマークの創出である。建築の役割は、自然生態系に配置された最先端技術を結びつけて表現し、浄化プロセスの重要性を強調する点にある。

© Aaron Kohler
建物はライン川沿いの森林に位置する。この「自然」と「産業」という対照的な文脈は、建築コンセプトの中で考察されている。技術的要件に基づく内部機能の配置が建物の形態と規模を決定する。
建物はまるでぴったりとしたドレスのように外皮に包まれ、内部の技術的機能を外部に抽象的に表現する。配管やフィルターがファサード越しに読み取れ、その結果、自然環境の中に「オブジェ・トゥルーヴ(偶然の芸術品)」のように佇む表現力豊かな建築が生み出されている。これは素材と形態に還元された存在である。

© Aaron Kohler
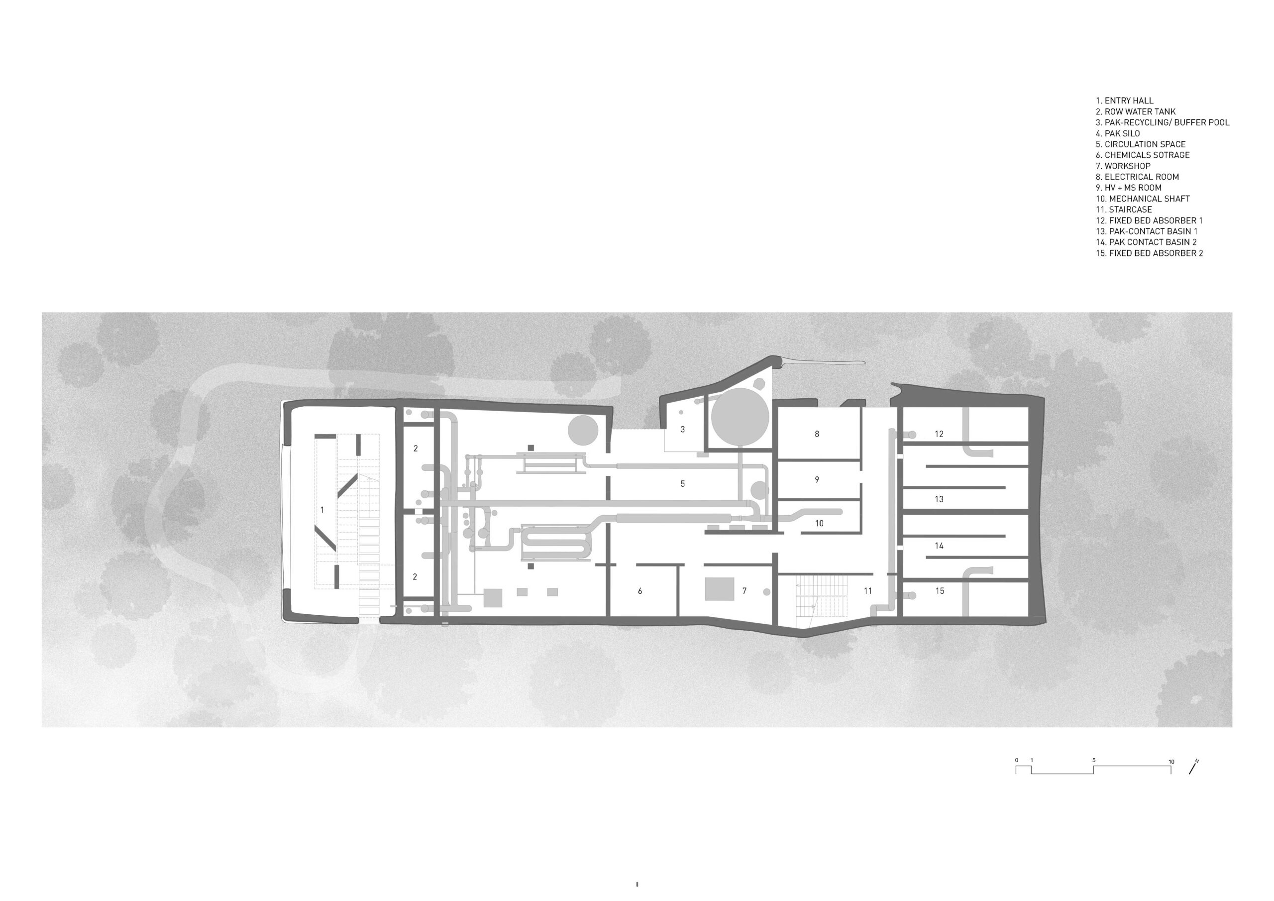
〈ムッテンツ浄水場〉は最先端の3段階処理プロセスを備え、ムッテンツ市民に最高品質の水を供給する。公共エリアでは、来訪者が複雑な処理工程を体感でき、水を五感で感じる場を提供する。
各施設エリアと工程段階を精密に案内することで教育的効果が得られる。開放的なプラットフォームは集会所として機能すると同時に、プレゼンテーションの舞台としても利用される。

© Aaron Kohler
アルコーブ状の空間は純粋で外部に開放され、水盤の上に浮かぶように配置されている。水盤は日光を反射し、屋根から流れ込む雨水を貯留する。時間帯や季節によって湿度や冷たさ、神秘的な雰囲気が変化し、訪れる人々に水を多感覚的に体験させる。

© Borje Müller Photography

© Borje Müller Photography
文脈の対比はファサードの素材にも反映されている。表現は柔らかでありながら、質感は粗く硬い。
吹付コンクリートが全側面と屋根に使用され、表現力豊かなファサードを形成する。特別な処理によって多孔質のテクスチャを実現し、雨水が流れ落ちることで緑青や苔の痕跡を残す。これにより建物は年月とともに特性を再定義し、植物的な表情を絶えず変化させる。

© Borje Müller Photography

© Borje Müller Photography
吹付コンクリートは持続可能な建材であり、乾燥状態で現場に搬入され、施工直前に水と混合される。建設地が飲料水保護区域内であることを踏まえた重要な選択である。
ファサードの維持管理コストは低く抑えられ、粗粒の吹付コンクリートには意図的に緑青が生じるよう設計されている。これにより建物は周囲の環境と調和し、自然と対話する存在となる。すなわち、建物は「自然の上に建つ」のではなく、「自然と共にある」のである。

© Borje Müller Photography

© Borje Müller Photography

© Borje Müller Photography

© Borje Müller Photography

© Borje Müller Photography

© Borje Müller Photography

© Borje Müller Photography

© Borje Müller Photography

© Borje Müller Photography

© Borje Müller Photography

© Borje Müller Photography

© Borje Müller Photography

© Borje Müller Photography

© Borje Müller Photography

© Borje Müller Photography

© Borje Müller Photography

© Borje Müller Photography

Diagram

Site Plan

Ground Floor Plan

First Floor Plan

East Elevation

North Elevation

West Elevation

South Elevation

Section A

Section B
以下、オッペンハイム・アーキテクチャのリリース(英文)です。
MUTTENZ WATER PURIFICATION PLANT
“After a natural disaster, safe drinking water is a priority. Humans can live longer without food than water, so communication about clean water is essential to help avoid the risk of risk of cholera, dysentery, malnutrition, famine, and death”
Tae YooThe City of Muttenz, Switzerland has commissioned OAD Europe to design the city’s new municipal water purification plant. The plant is a model of sustainability, extremely sensitive to its contrasting setting near the Rhine riverfront. Settled between the protected forest and the nearby industrial parks, the project will exhibit an educational factor to express the complex purification process in such a stressed environment.
The unique and important function of the drinking water treatment plant is to create a new landmark for the town of Muttenz and the Basel area. The role of the architecture is to link and express the unique and state-of-the-art technology, placed in a natural ecosystem and emphasizing the importance of the purification process.
The building is located inside a lush green forest settled next to the river Rhein. This contrasting context – the natural and the industrial – is discussed in the architectural concept. The engineering driven arrangement of the inner life defines the form and the size of the building. Like a tight dress, the skin presses against it and represents the technical inner life to the outside. Pipelines, filters and apparatuses can be read through the façade in an abstract manner. The result is an expressive building, acting like a ‘objet trouvé’ in its natural context. Reduced to its materiality and form.
The drinking water purification plant houses a state of the art, 3-phased process, which will ensure the highest quality of water for the citizen of Muttenz. A public area will invite the population to appreciate the complex process and will celebrate water with all senses. The desired pedagogical effectiveness is achieved through a precise guidance through the different building areas and process phases. The open platform serves as a collection area and as a stage for the presentations.
The alcove like room is pure, open to the outside and sits on a pool of water, reflecting the daylight and collecting the rainwater puring in from the roof. Depending on the time and season, it will be moist, cold and mystical. The water will be experienced in all senses.
The opposites of the context are playfully implemented in the façade material: Soft in expression, crude and hard in its texture. Shotcrete will enforce the expressive façade and used on all sides and the roof. The shotcrete is treated in a way to allow a porous texture. Rainwater flows from the roof over the façade, leaving a patina and moss stains. Re-characterizing the building over the years and constantly changing the appearance of the plant.
The theme of water is represented on the façade. Sprayed concrete is a very sustainable building material, which is delivered dry to the construction site and is mixed with water only before the application. An important aspect taking into account the fact that the construction site is in a drinking water protection zone. Maintenance work on the façade will be low. It is desired that the coarse-grained shotcrete is given a green patina. Thus, the façade will merge with its context. The building is in dialogue with nature. It is build with the nature, not on top of nature.
Location: Muttenz, Switzerland
Client: City of Muttenz
Scope: Architecture, Interior Design
Land Area : 3,000 sq.m
Built-up Area: 1,850 sq.m
Project Year: 2017CONSULTANTS
Architect: Oppenheim Architecture
Interior Designer: Oppenheim Architecture
General Contractor: ERNE AG
General Planner: CSD Engineers
Structure Consultant : WMM Engineers AG
Shotcrete Consultant: Greuter AGTEAM
Principals in charge: Chad Oppenheim, Beat Huesler
Project manager: Frederic Borruat
Project Contributers: Aleksandra Melion, Tom MckeoghIMAGE CREDITS
Photographers: Borje Müller, Aaron Kohler, Beat Huesler, Léon Huesler, Rasem Kamal
オッペンハイム・アーキテクチャ 公式サイト
https://www.oppenoffice.com/works/ayla-golf-clubhouse/