
© Zhu Yumeng
中国・武漢に位置する〈LuxeIsland Restaurant〉は、島の玄関口に建ち、来訪者を引きつける「島のショーケース」として設計された、子供向け遊具施設内に設けるレストランです。
北京に拠点を置く設計事務所 DL Atelierが設計しました。
注目ポイント
- 島の玄関口だからこそ目指した「ランドマーク性」と「遠景視認性」
- 「小さく、踊るような山」という建築コンセプト
- 浮遊感のある木質ボリュームによる「踊る山」
- 子供が駆け寄りたくなる造形と、親が休息できる半屋外の軒下空間
(以下、DL Atelierから提供されたプレスキットのテキストの抄訳)

© Zhu Yumeng
2023年初頭、LUXELAKESは武漢で新たなプロジェクトを立ち上げた。これまで多くのプロジェクトで協働してきた私たちは、すでに互いの思考や手法を熟知し、円滑に連携できる関係であった。この流れを受け、今回は子供向け遊具施設内にレストランを設計することとなった。

© Zhu Yumeng

© Zhu Yumeng
計画初期段階において、敷地が挑戦的なクライミング遊具に囲まれていたことから、この建物を「ブレイブキャビン(The Brave Cabin)」と名づけた。子供たちが困難を乗り越える勇気を獲得する場となることを願ったためである。
延床面積は200m²未満と比較的コンパクトな規模であり、私たちは訪問者が木陰でくつろげる十分な半屋外空間をつくることを目標とした。また島の玄関口という目立つ立地のため、到着した訪問者が遠くからでも建物を視認できるよう設計されている。

© Zhu Yumeng

© Zhu Yumeng
当時、私は南宋の詩人・江介(Jiang Jie)の詩をよく読み、その率直かつ鮮やかな表現に強く惹かれていた。言葉では言い表しがたい軽やかさと独自の魅力を備えており、この設計に取り組む際、私はその直接的な表現姿勢から影響を受けていた。深く考えすぎることなく、ただ「小さく、踊るような山」をつくりたいと感じていたのである。

© 朱雨蒙

© Zhu Yumeng
山をどう踊らせるか。この課題を考える過程で、2人の画家の作品を思い起こした。アンリ・マティス(Henri Matisse)が40歳で描いた「ダンス(Dance)」、そして王熙孟(Wang Ximeng)が18歳で描き上げた「千里山河図(A Thousand Li of Rivers and Mountains)」である。
これらの作品に宿る生命力と若々しい精神を、形式的模倣であれ直感的な本質の把握であれ、なんらかの形で建築空間へ変換したいと考えた。

© Zhu Yumeng

© Zhu Yumeng
その後、敷地計画・機能要件・スケール・工法・素材などの要素を統合して設計に落とし込んだ。特に重要であった視覚的なシンボル性と物理的知覚の関係性を調整し、2つの建築デザイン案を作成した。
第1案は酸化銅パネルを使用し、第2案は無垢材板材を用いる計画であったが、第1案は複雑な二重曲面が多用されているため、コストが非常に高くなることが判明し、全面平面で構成する第2案が採用された。

Two designs © DL Atelier
この建物はLuxeIslandで最初にオープンした独立した建物の1つであり、島のショーケースとしての役割を担う。そのためレイアウトは島の海岸線に沿って緩やかに曲線を描いて延び、建物の高さも川対岸の樹木の隙間から視認できるよう十分なボリュームで設計された。
訪問者が開けた芝生を歩き、森を縫うように進みながら建物に近づくと、「小さな山」が次第に際立ち、さらに探求するよう誘う。

© Zhu Yumeng
草地の斜面を登ると、地面から浮遊する巨大な無垢材のボリュームと、揺れ踊るようにつながる三角錐の群れが突然姿を現す。長さ10mを超える張り出し屋根に向かって駆け寄る子供たちの歓声が響き、宇宙船の離陸を思わせる造形は、再訪した者の情緒と感覚を最高潮へと導く。

© Zhu Yumeng
子供たちを追う親たちは、巨大な樹木のように張り出した軒下でくつろぎ、会話を楽しむ。子供が目の前を走り回るたびに呼び寄せ、休憩や飲み物を勧める。透明ガラス越しに、レストランとウォーターバーが活気に満ちた様子を見せる。

© Zhu Yumeng
山のような屋根を地面から跳び上がるように見せるため、建物の主要構造は4つの複合鋼柱群が支える構成とした。柱は黒石パネルで覆われ、一部外装が延長されて屋外席、テイクアウトカウンター、洗浄ステーションなどの機能要素を形成する。
屋根は鋼製空間フレーム構造を採用し、長スパンと片持ち梁を実現した。外装全体は無垢材板で覆われ、三角形の開口部が散りばめられている。これらの開口部には室内照明や空調ダクトが組み込まれている。また厨房設備や空調システムなどの大型設備は屋根内部に完全に隠蔽した。

© Zhu Yumeng
設計段階では当初、屋根構造を屋上テラスとして活用し、飲食席の増設と空間体験の向上を図る案が検討された。しかし運用上の理由から実現には至らなかった。それでも屋根の形態を維持したのは、機能性が物理的アクセスだけで定義されるものではないからである。視覚的体験や公園全体における空間的階層性も、空間の機能的価値に等しく重要なのである。

© Zhu Yumeng
人間は本質的に不完全であり、能力を補完するため第三者の道具に依存している。走るための靴、食べるための箸、移動のための車、思考を高めるためのコンピューターなど、これらの機能的な拡張が、私たちを「人間」たらしめる。
同様に、私たちの精神も自給自足することはできない。高潔さ、謙虚さ、尊厳、勇気が必要であり、それらは音楽や芸術といった外部からの支えに依存する。建築もまた、まさにこの目的「個人としてより完全になる手助け」を果たす。

© Zhu Yumeng
私にとって本設計の焦点は後者にあり、人々の「身体的直感」によって駆動されるものである。まず「小さな山」の形態を知覚した瞬間、その象徴は内在する記憶や感情を本能的に喚起し、自然や子供のような無垢な状態に意識を引き戻す。
さらに建物に近づくと、重厚なボリュームや躍動的な姿勢、異形の形状が身体感覚を刺激し、興奮と活動状態に没入させる。この状態では精神に内在する空虚感が増幅され、子供たちはより勇敢になり、遊具へ駆け寄って登り、遊びを通じて自らを探求し挑戦する。この体験こそが、「ブレイブキャビン」の真の意味であるといえる。

© Zhu Yumeng

© Zhu Yumeng

© Zhu Yumeng

© Zhu Yumeng

© Zhu Yumeng

© Zhu Yumeng

© Zhu Yumeng

© Zhu Yumeng

© Zhu Yumeng

© Zhu Yumeng

© Zhu Yumeng

Roof plan © DL Atelier

Ground floor plan © DL Atelier

East elevation © DL Atelier

Section © DL Atelier

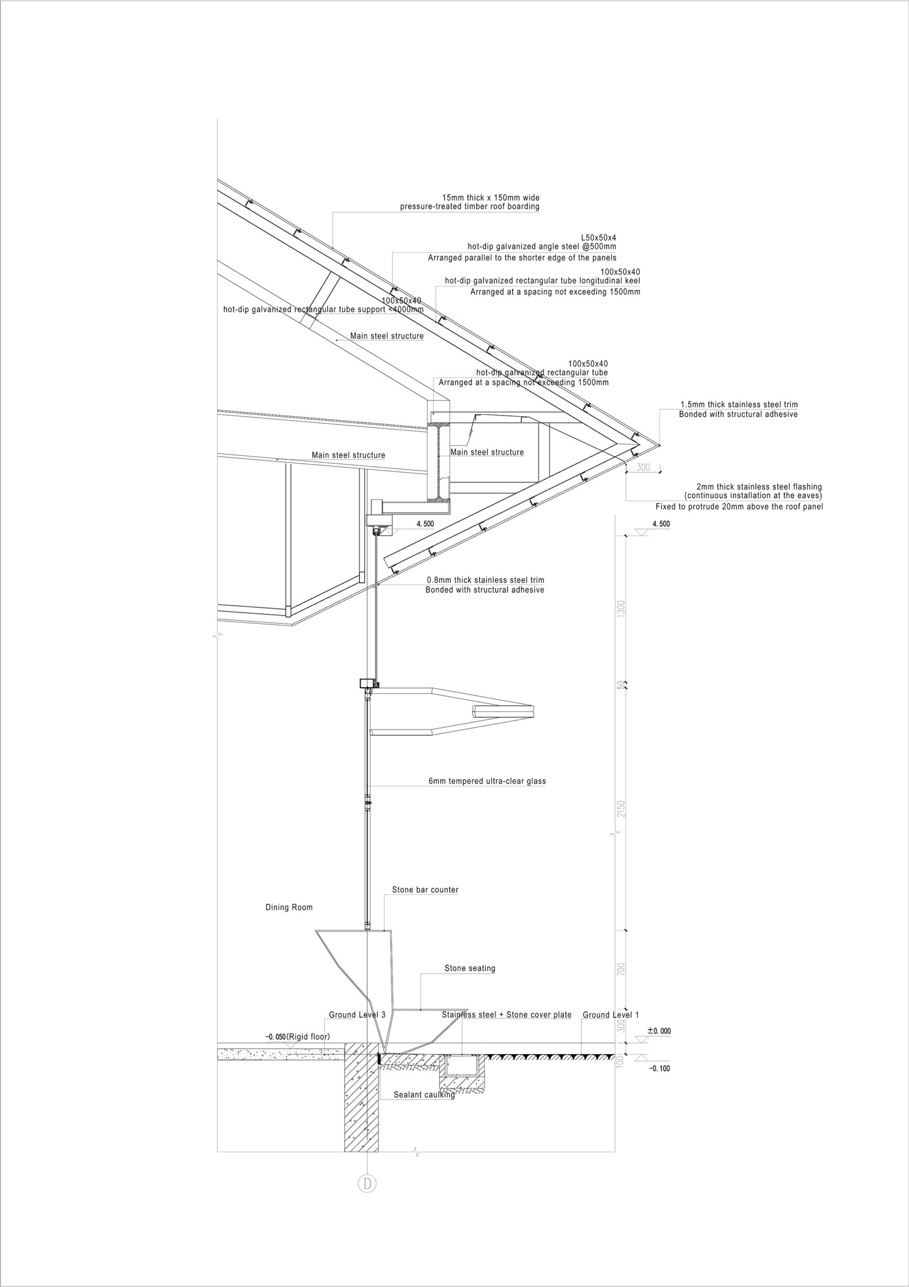
Wall detail © DL Atelier
以下、DL Atelierのリリース(英文)です。
The Dancing Mountain —— LuxeIsland Restaurant
In early 2023, LUXELAKES planned to launch a new project in Wuhan. Having collaborated on multiple previous projects—such as Dotsss Children’s Museum, Edenland Architectural, and CPI Planning in Chengdu, as well as The CAPE Commercial District and Qilou Historic Street Planning in Hainan—we were already familiar with each other and worked together seamlessly. As a result, we collaborated again to design a restaurant within a children’s playground.
During the preliminary planning phase, the restaurant was named “The Brave Cabin,” as it was surrounded by challenging recreational climbing equipment. We hoped the building would inspire children’s courage to overcome difficulties. With an indoor area of less than 200 square meters, the building has a relatively small footprint. Our goal was to create ample semi-outdoor spaces where visitors could relax in the shade. Additionally, thanks to its prominent location at the island’s gateway, the building is visible from a distance to arriving visitors.
At that time, I often read the poems of the Southern Song Dynasty poet Jiang Jie, and was particularly drawn to his straightforward yet vivid expressions. There’s an indescribable lightness and peculiar charm to them. While working on this design, I was more or less influenced by this direct way of expression. Without overthinking, I simply wanted to create a mountain—a small, dancing mountain.
How can a mountain be made to dance? I recalled two paintings: Henri Matisse’s “Dance,” created when he was 40, and Wang Ximeng’s “A Thousand Li of Rivers and Mountains,” painted when he was just 18. I sought to capture the vitality and youthful spirit embodied in these works—whether through formal imitation or an intuitive grasp of their essence—and ultimately translate it into architectural space.
We then integrated considerations of site layout, functional requirements, scale, construction methods, and materials into this design. More importantly, we adjusted the relationship between visual symbols and physical perception, ultimately leading to the realization of the architectural design—even two designs.
The first design planned to use oxidized copper panels, while the second used solid wood strips. However, the first design involved extensive double-curved surfaces, which made it very expensive. Therefore, the second design, which used entirely flat surfaces, was ultimately selected.
As one of the first standalone buildings to open on LuxeIsland, this building serves as a showcase for the LuxeIsland. Accordingly, the layout gently curves and extends along the island’s shoreline, while the building’s height was designed with so much mass that it remains visible from across the river through the gaps in the foliage. As visitors walk across the open lawn and weave through the woodland, gradually approaching the building, the “little mountain” stands out prominently, inviting them to explore further.
As visitors walk across a grassy slope, the structure suddenly unfolds before them—massive solid wood volumes floating above the ground, with triangular pyramids connecting hands, swaying and dancing. Children will be thrilled by the sight of this colossal form, dashing toward the cantilevered roof that spans over ten meters. The building, reminiscent of a spacecraft poised for takeoff, once again elevates both mood and sensation of visitors to a climax.
The parents who follow their children enjoy some leisure time, chatting beneath the eaves, which stretch out like a giant tree. With their children running and playing in front of them, the parents occasionally call them over to rest and get a drink. Behind the fully transparent glass, the restaurant and water bar are also bustling with activity.
To make the layered, mountain-like roof appear as though it is leaping up from the ground, the main structure of the building is supported by four clusters of composite steel columns. These columns are clad in black stone panels, with parts of the cladding extended to form functional features such as outdoor seating, takeout counters, and wash stations. The roof adopts a steel space frame structure to achieve long spans and cantilevers. Its entire exterior is clad in solid wood strips, which are interspersed with triangular openings that also house indoor lighting and air conditioning vents. Large equipment, such as kitchen and HVAC systems, is entirely concealed within the roof structure.
During the design phase, we initially envisioned the roof structure as a rooftop terrace to increase dining seating capacity and enrich spatial experiences. However, this concept was later abandoned due to operational considerations. Nevertheless, the roof’s form was preserved, as functionality is not solely defined by physical accessibility. Visual experience and the overall spatial hierarchy of the park are equally integral to a space’s functional value.
We humans are inherently incomplete, reliant on third-party tools to supplement our capabilities. For instance, we need shoes to run, chopsticks to eat, cars to travel faster, and computers to enhance our thinking—these seemingly functional extensions help us become “human.” Similarly, our minds are not self-sufficient; we require nobility, humility, dignity, and courage, which also depend on external support—such as music and art. In the same way, architecture serves this very purpose: to help us become more whole as individuals.
For me, the focus of this design leans more toward the latter and is driven by people’s “somatic intuition.” First, when we initially perceive the “little mountain” form, inherent memories and emotions are instinctively evoked by this symbol, drawing us into a context of nature and childlike innocence. Then, as we approach the building, its substantial volume, dynamic posture, and unusual shape engage our physical senses, immersing us in a state of excitement and activity. In such a state, the inner voids within the human psyche are magnified—children may become braver, dashing toward climbing structures to explore and challenge themselves through play. This, perhaps, is the true meaning of the Brave Cabin.Project Information:
Location: Hubei, Wuhan, LuxeIsland
Date:2023-2025
Function: Restaurant
Area: 200㎡
Client: Chengdu Luhu Cultural Tourism Development Co., Ltd.& Wuhan Luhua Real Estate Co., Ltd.
Architecture/Interior: DL Atelier (Yang Liu, Dan Xu, Yiwei Hu)
Construction Documents: UDG
Tenant Interior Design: Wuhan Shi Er Ping Fang Design Consulting Co., Ltd.
Landscape Design: WTD GROUP
Photography: Yumeng Zhu
DL Atelier 公式サイト
https://dl-atelier.com