
©︎ Trieu Chien
ベトナムのマンデン(Mang Den)の森の中に位置する〈MA.DEビストロ(MA.DE Bistro)〉は、浮遊する屋根が自然を取り込み、流動的な壁が各空間を緩やかにつなぐ複合施設です。
ベトナムの設計事務所 AN NAM Design and Buildが設計しました。
注目ポイント
- 事業性だけでなく、地域の文化的価値とアイデンティティをデザインの根幹に据えたプロジェクト
- ベトナム中部高地の象徴的な「ロン族の家」から着想を得つつ現代的に再解釈した建築形態
- 「浮遊する屋根」により自然光と風を効果的に浸透させる環境設計
- プレファブリケーションによる技術的精度と工期短縮の両立
(以下、AN NAM Design and Buildから提供されたプレスキットのテキストの抄訳)

©︎ Trieu Chien

©︎ Trieu Chien
〈MA.DEビストロ〉において、投資家は事業機能に加え、地域の文化的価値と地域アイデンティティをデザインに組み込んだ複合施設を望んだ。この志は、文化的整合性を設計の核に据え、土地とその遺産への敬意を強調するものである。

©︎ Trieu Chien

©︎ Trieu Chien
マンデンに佇む1,000m²の敷地は、三方を手つかずの松林に囲まれている。霧と雨、涼やかな高地の気候が、この場所に静謐で神秘的な雰囲気を醸し出している。
〈MA.DEビストロ〉は、ベトナム中部高地の文化的伝統に根ざした象徴的な共同建築「ロン族の家(Rông house)」から着想を得ている。伝統様式を模倣するのではなく、〈MA.DEビストロ〉の屋根は3つの連なる峰に分かれ、高低差を設けながらリズミカルな構成を形成し、高地のうねる山脈を想起させる。

©︎ Trieu Chien
この統一感のある屋根の下、壁は自由で流動的な感覚で配置され、屋根から切り離されている。これにより、意図的な隙間から日光と自然の風が浸透するようになっている。すべての機能領域は分散しつつも、全体を覆う屋根によって結びつけられ、一体感のある空間体験を生み出している。

Diagram
メインアプローチは開放的な円形中庭を貫き、外部と内部の間に穏やかな境界線を確立する。この地点から空間は松林へと緩やかに流れ落ち、微妙なレベル変化が親密さと交流を促している。
これらの層を移動する過程で、開放と閉塞、光と影が緻密に構成された連続性が明らかになる。これは、自然を一気に晒すのではなく、厳選された断片として枠内に収める手法である。

©︎ Trieu Chien
素材感は、この場所との対話を強化する要素である。漆喰仕上げのレンガ壁は、深紅のトーンで地域の玄武岩質土壌を想起させる。コンクリート天井には、松材型枠の痕跡が刻まれている。
床材は空間の階層性を表現している。テラコッタタイルは中央ホールから放射状に広がり、通路はテラゾーを採用し、副次的なエリアは不規則な天然石で覆われている。これらの触覚的な変化は視覚を超えた関与を促し、複数の感覚を活性化する。

©︎ Trieu Chien
屋根構造は主要な鋼製フレームに依存し、その下側は温かみと触覚性を求めて木材で裏打ちされている。外層は軽量でニュートラルな色調のビチューメン製屋根板で仕上げられており、この地域の気候に実用的である。
鋼材部品は工場で製造後、現場へ搬入され組み立てられた。これにより、技術的精度が確保され、工期短縮が実現している。
空間構成、素材選定、構造的解決策を慎重に練り上げたことにより、〈MA.DEビストロ〉は文化的アイデンティティと地域の美が共鳴し合い、互いを称え合う多次元的な体験空間を創出することに成功した。

©︎ Trieu Chien

©︎ Trieu Chien

©︎ Trieu Chien

©︎ Trieu Chien

©︎ Trieu Chien

©︎ Trieu Chien

©︎ Trieu Chien

©︎ Trieu Chien

©︎ Trieu Chien

©︎ Trieu Chien

©︎ Trieu Chien

©︎ Trieu Chien

©︎ Trieu Chien

©︎ Trieu Chien

©︎ Trieu Chien

©︎ Trieu Chien

©︎ Trieu Chien

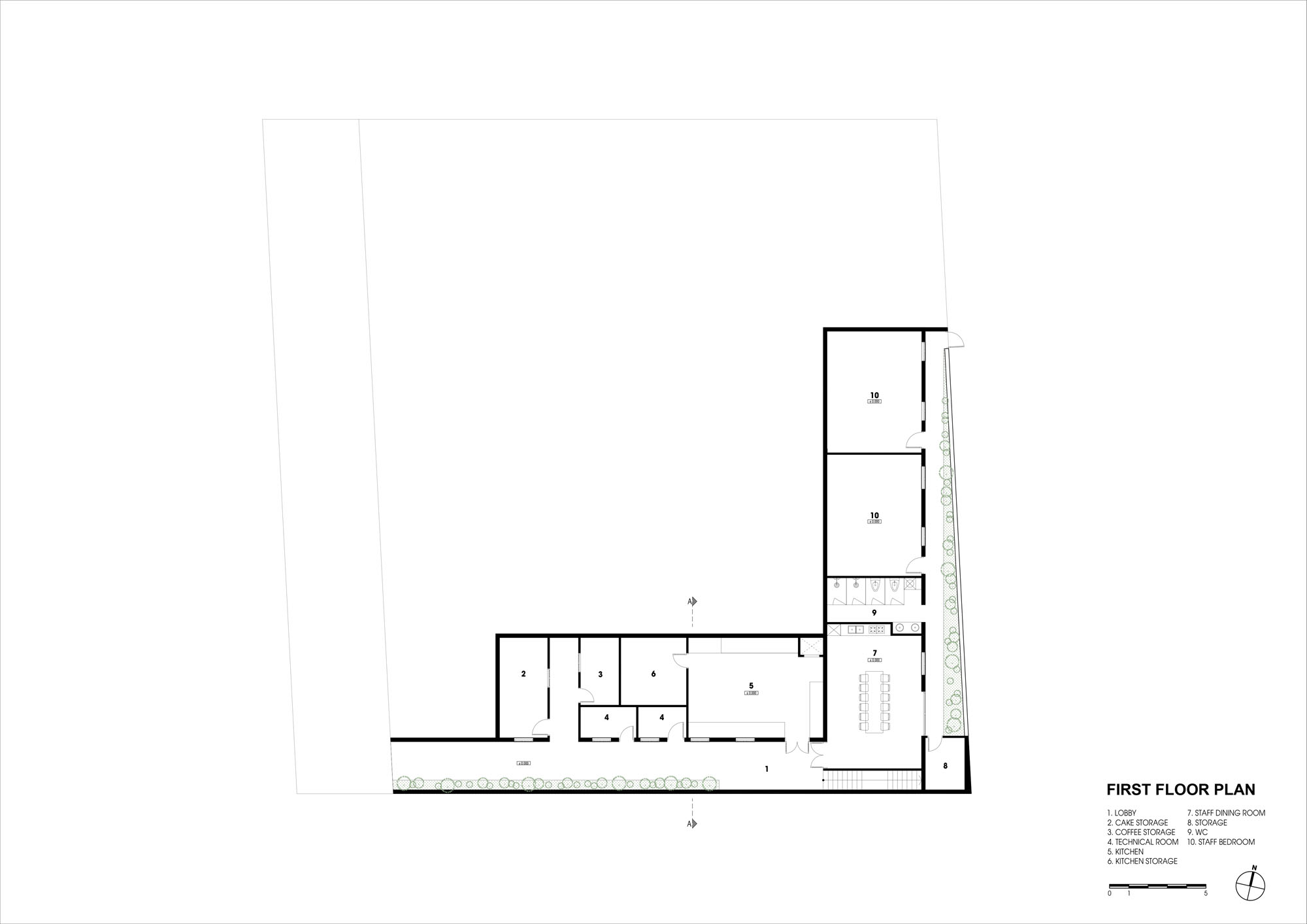
First Floor Plan

Mezzanine Floor Plan

Second Floor Plan

Roof Floor Plan

Front Elevation

Section A-A
以下、AN NAM Design and Buildのリリース(英文)です。
MA.DE BISTRO | AN NAM Design and Build
Project name: MA.DE Bistro
Office Name: AN NAM Design and Build
Office Website: https://annamdesignandbuild.com/
Social Media Accounts: https://www.facebook.com/thietkekientrucannam
Contact email: annam.thietkethicong@gmail.com
Firm Location: Da Nang, Viet Nam
———-
Completion Year: 2024
Gross Built Area (m²/ ft²): 1500m²
Site Area (m²/ ft²): 1000 m²
Project Location: Mang Đen, Kon Tum, Viet Nam
Program / Use / Building Function: Hospitality
Lead Architects: AN NAM Architect, Vo Quang
Lead Architects e-mail: annam.thietkethicong@gmail.com
Design team: Phan Thanh Nam, Tran Dinh Hung, Le Hong Phong, Nguyen Quang Hau
Photographs: Trieu Chien*Project Description
At MA.DE Bistro, the investor desired the project to be a service complex that, in addition to its business functions, would incorporate regional cultural values and a sense of local identity into its design. This ambition placed cultural integrity at the heart of the design narrative, emphasizing respect for the land and its heritage.
Nestled in Mang Den, the 1,000-square-meter site is embraced on three sides by untouched pine forest, a setting defined by mist, rain, and a cool highland climate that imbues the place with a serene, almost mystical atmosphere.
MA.DE Bistro draws inspiration from the Rông house – an iconic communal structure rooted in the cultural traditions of Vietnam’s Central Highlands. Rather than replicating the vernacular form, MA.DE Bistro’s roof splits into three interlinked peaks at staggered heights, forming a rhythmic composition that evokes the undulating mountain ranges of the highlands.
Beneath this unifying canopy, walls are arranged with a sense of freedom and fluidity, detached from the roof to allow shafts of daylight and natural breezes to permeate through deliberate gaps. All functional areas are dispersed yet bound together by the overarching roof, creating a cohesive spatial experience. The main approach cuts through an open-air circular courtyard, establishing a gentle threshold between exterior and interior. From this point, spaces cascade gradually toward the pine forest, their subtle level changes encouraging intimacy and interaction. Movement through these layers reveals a carefully choreographed sequence of openness and enclosure, light and shadow – framing nature in curated glimpses rather than exposing it all at once.
Materiality reinforces this dialogue with place. plastered masonry walls finished in a deep red tone evoke the basalt earth of the region, while concrete ceilings preserve the imprint of pinewood formwork. Floors articulate spatial hierarchy: terracotta tiles radiate from the central hall, connecting paths employ terrazzo, and secondary areas are clad in irregular natural stone. These tactile variations invite engagement beyond the visual, activating multiple senses.
The roof structure relies on a primary steel frame, its underside lined with timber for warmth and tactility, while the outer layer is finished in lightweight, neutral-toned bitumen shingles – practical for the region’s climate. Steel components were fabricated in the workshop and then transported to the site for erection, ensuring technical precision and shortening the construction schedule.
Through careful spatial arrangement, material selection, and structural solutions, MA.DE Bistro has successfully created a multi-dimensional experience where cultural identity and local beauty resonate and celebrate each other.
AN NAM Design and Build 公式Facebook
https://www.facebook.com/thietkekientrucannam