
©︎ Hu Siyuan

©︎ Hu Siyuan
中国・上海郊外に位置する〈The Catcher〉は、既存の農家をリノベーションした田園風景に溶け込むゲストハウスです。
上海と東京を拠点に活動する設計事務所 TEAM_BLDGが設計しました。
注目ポイント
- 自築農家2棟を保存しつつ再生したプロジェクト
- 風景を建築に取り込むコンセプト「キャッチ」
- 敷地の三隅に新築し、パブリック機能を集約した「コネクター」
(以下、TEAM_BLDGから提供されたプレスキットのテキストの抄訳)

©︎ Hu Siyuan

©︎ Hu Siyuan
椿鲤(Chunli)ゲストハウスプロジェクトは、上海郊外の古い都市・新昌のほど近くに位置する。設計チームが現地に到着した時、眼前に広がっていたのは、清々しく広大な水田の風景であった。この果てしない眺めと田園が醸し出す自然な空気感こそがデザインの源泉となり、プロジェクトは「自然との共生」を基本姿勢として進めることとなった。

©︎ Hu Siyuan

©︎ Hu Siyuan
ブランド化されたゲストハウスに多く見られる厳格な制約とは対照的に、本プロジェクトのオーナーは設計者への大幅な裁量を望んだ。初期の打ち合わせで提示されたのは、客室数とパブリックエリアの機能要件を満たすこと、そして屋外や屋上テラス空間を最大限に活用することのみであった。

©︎ Hu Siyuan

©︎ Hu Siyuan
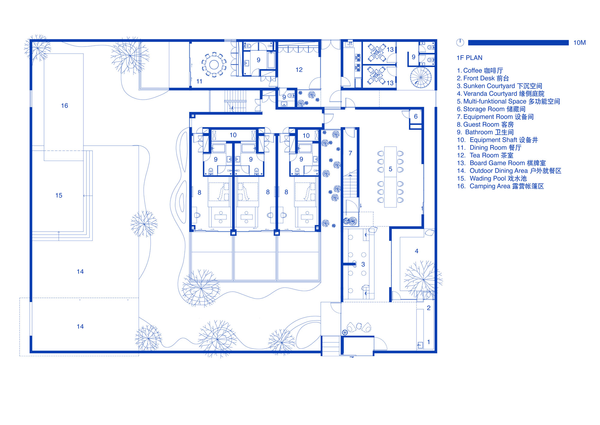
既存の建物は、セルフビルドされた2棟の独立した農家住宅であり、その形態と内部空間は現代的なゲストハウスの機能要求を満たすものではなかった。しかし、大規模な建て替えは避け、既存の構造を保存しながら現状に適応させる道を選んだ。結果として、11室の客室に加え、宴会場や麻雀室などの複合機能を備えた空間が創出された。
目指したのは自然体で無理のない、田園のゲストハウスである。認可手続きや施工上の課題など、リノベーション特有の不確定要素に対応しつつ、現実的な条件と理想的な構想のバランスが模索された。

Existing State © TEAM_BLDG

Existing State © TEAM_BLDG
設計の精神的な核となったのは「キャッチ」の概念であり、建築と周囲の田園景観との関係性を何よりも重視した。
コスト管理を前提に、敷地入口にある切妻屋根の木造平屋を含む既存構造は可能な限り保存した。その上で、接続、視線の枠組み、そして内外空間の相互作用を通じて、建物が自然環境と一体化するよう計画されている。「野原のキャッチャー(Catcher in the field)」のように、孤立しているようでいて、どこか安心感を与える存在となった。

©︎ Hu Siyuan

©︎ Hu Siyuan
空間構成においては動線を核に、建物内の移動そのものが魅力的な体験となるよう配慮した。まず、外壁によって2棟の建物と中庭を1つの敷地として統合した。次に、長方形の敷地の3つの隅に「コネクター」として3つの新たな建築ボリュームを配置し、ロビー、パビリオン、宴会場といったパブリック機能を集約した。この戦略により、パブリック空間とプライベート領域の論理的関係が明確化されるだけでなく、屋内と屋外空間が効果的に連結されている。
さらに、元の地形を活かしたロビーの沈み込み式の座席エリアは、小さな中庭との独特な視覚的対話を生み出し、自然光と庭園の景観を内部へと取り込むことで、半屋外空間のレイヤーを豊かにしている。

©︎ Hu Siyuan

©︎ Hu Siyuan
リノベーションにあたり、設計者は新旧の関係を慎重に扱った。例えば、入口の古い切妻屋根の家屋は、他の新築部分とは様式が若干異なるものの、安全上の理由から元の屋根をアルミニウム・マグネシウム・マンガン複合パネルに交換した以外は、ほぼ現状のまま維持された。
新たな介入においても「すべての介入に理由をもたせる」という原則を遵守している。例えば、客室の浴室エリアの窓外に設けられた景観スペースは、単なる装飾ではなく、壁面に沿う配管を巧みに隠蔽する役割も担っており、デザインの本質と整合性を追求する姿勢を反映している。

©︎ Hu Siyuan

©︎ Hu Siyuan
多くの古い建築の改修プロジェクトと同様に、〈The Catcher〉も予算の制約や現地の建築基準への適応といった課題に直面した。これに対し、造作家具システムを採用することで客室内の多様な機能ニーズを統合・解決し、総コストを効果的に削減した。同時に、設計プロセスでは現地の施工技術を十分に考慮し、ディテールを可能な限り簡素化するとともに、施工しやすく耐久性のある材料と工法を選択することで、設計コンセプトの高い完成度を確保した。
〈The Catcher〉は、TEAM_BLDGが自然、記憶、そして場所の精神に応えた作品である。機能的ニーズを満たすだけでなく、この建物が人と土地、過去と未来をつなぐ媒介となり、大地と時間そのものを見守る存在となることを願っている。

©︎ Hu Siyuan

©︎ Hu Siyuan

©︎ Hu Siyuan

©︎ Hu Siyuan

©︎ Hu Siyuan

©︎ Hu Siyuan

©︎ Hu Siyuan

©︎ Hu Siyuan

©︎ Hu Siyuan

©︎ Hu Siyuan


©︎ Hu Siyuan

©︎ Hu Siyuan

Site Plan © TEAM_BLDG

1F Plan © TEAM_BLDG

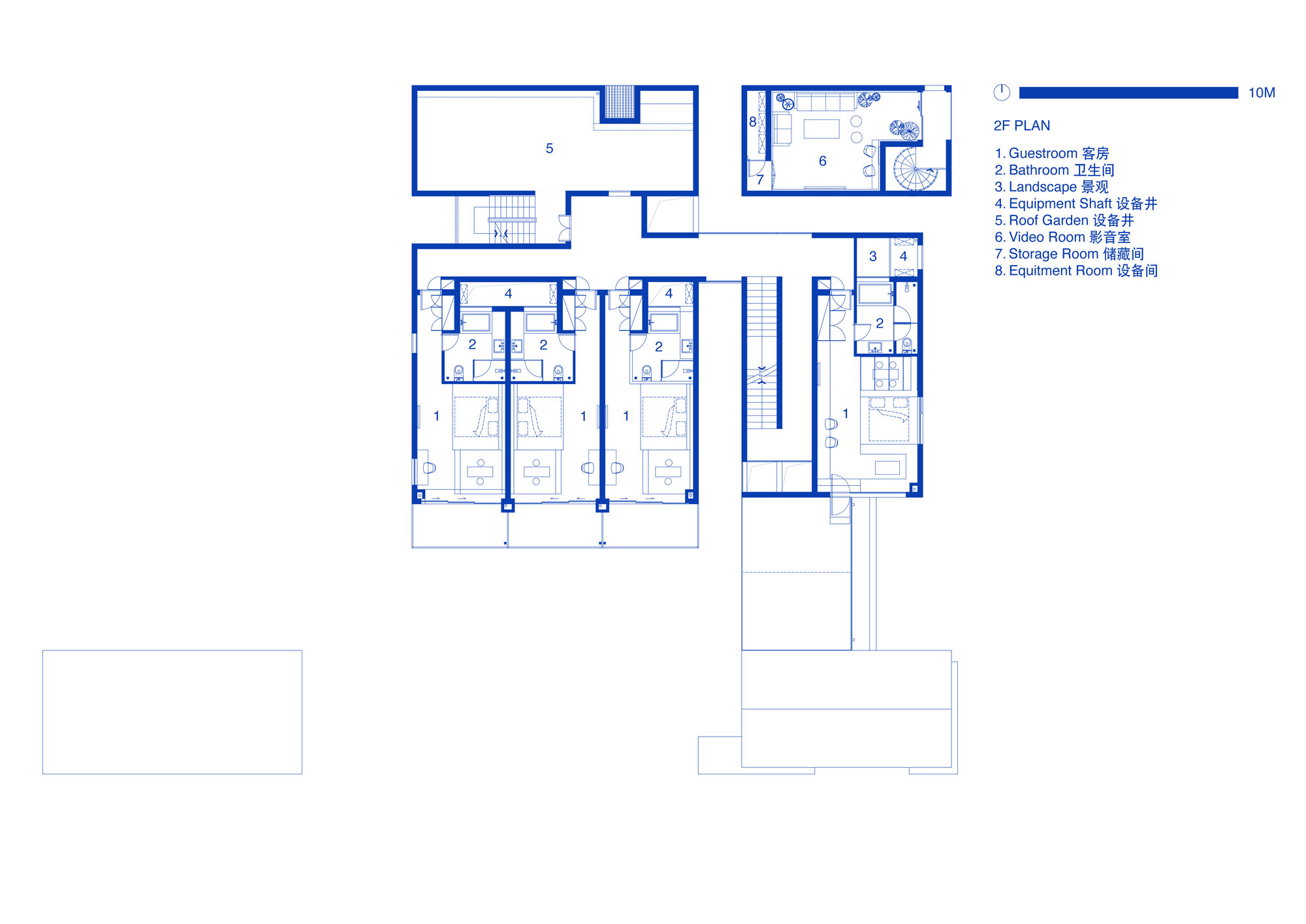
2F Plan © TEAM_BLDG

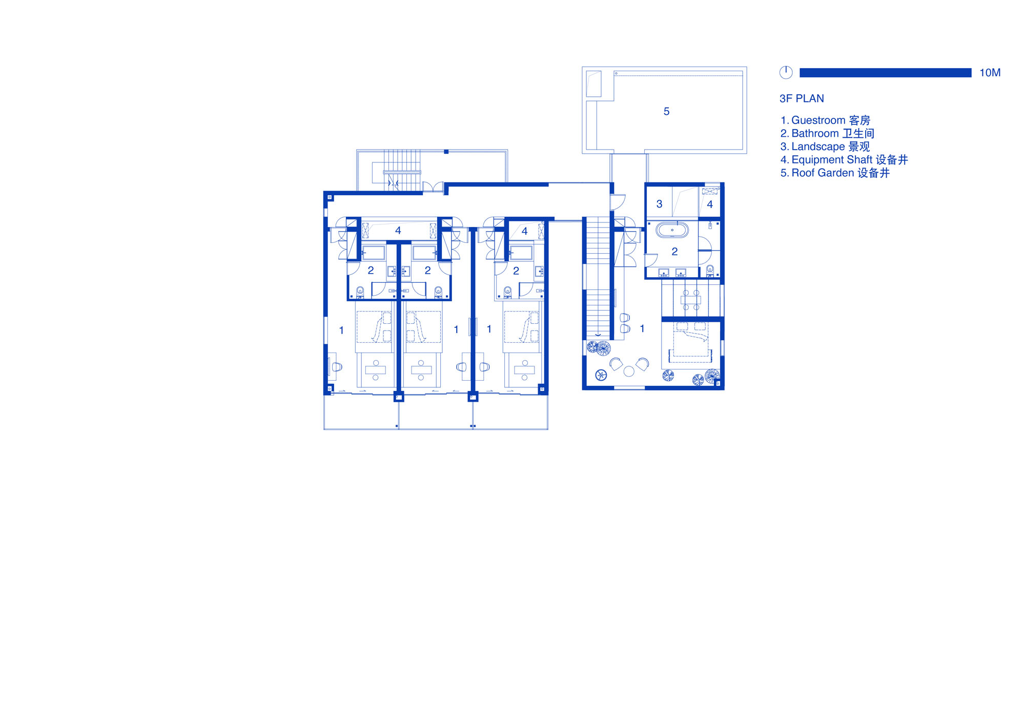
3F Plan © TEAM_BLDG

4F&RF Plan © TEAM_BLDG

East Elevation © TEAM_BLDG

South Elevation © TEAM_BLDG

West Elevation © TEAM_BLDG

North Elevation © TEAM_BLDG
以下、TEAM_BLDGのリリース(英文)です。
The Catcher
— Guesthouse in Shanghai Xinchang Ancient TownBy TEAM_BLDG
Function: Guesthouse, Café
Design Period: 2023.05 – 2024.04
Construction Period: 2024.02 – 2024.08
Location: Pudong, Shanghai, China
Building Area: 897 SQM
Landscape Area: 773 SQM
Architects: Xiao Lei, Deng Zhaojing, Deng Caiyi, Shigeno Yuji, Shen Ruijie
Type: Architecture, Interior and Landscape
Status: Completed
Photographs: Hu SiyuanThe Chunli Guesthouse project is located near the ancient town of Xinchang in the suburbs of Shanghai. Upon first arriving at the site, the vast expanse of rice fields was refreshing and delightful. The boundless scenery and natural ambiance of the fields became the inspiration for the design, setting the tone for the project’s symbiotic relationship with nature.
Unlike the many predetermined constraints of branded guesthouses, the owner of Chunli Guesthouse preferred to grant greater freedom to the designers. During the initial discussion, the owner only verbally outlined basic requirements: meeting the number of rooms and functional needs of public areas while making full use of outdoor and rooftop terrace spaces.
The original structures consisted of two independent self-built rural houses, whose forms and interior spaces could not meet the functional demands of a modern guesthouse. While preserving the original structures, we aimed to avoid extensive modifications, instead adapting to the existing conditions to create a guesthouse with 11 guest rooms and composite functions such as a banquet hall and mahjong room. Moreover, as a natural, “unforced” rice field guesthouse, the corresponding design needed to be flexible enough to accommodate the uncertainties often encountered in renovation projects, such as approval processes and construction challenges, striving to balance practical conditions with ideal aspirations.
Catcher, Connected with Nature
The design takes “Catching” as its spiritual core, emphasizing the relationship between the architecture and the surrounding rice field landscape. Under the premise of controllable costs, the design retained as much of the original structure as possible, including the gable-roofed bungalow with a wooden structure at the entrance. At the same time, through connections, framed views, and the interplay of indoor and outdoor spaces, the building becomes an integral part of the natural environment. Like a “Catcher in the field,” it stands unique yet reassuring.
The design uses circulation as the core organizing principle for the spaces, making movement through the building an engaging experience in itself. First, a perimeter wall integrates the two buildings and courtyards into a unified site. Then, three architectural volumes are inserted into three corners of the rectangular site as “connectors,” housing public functions such as the lobby, pavilion, and banquet hall. This strategy not only clarifies the logical relationship between public and private areas but also effectively links indoor and outdoor spaces.
Additionally, following the original terrain, a sunken seating area was created in the lobby, forming a unique visual dialogue with the small courtyard while introducing natural light and garden views into the interior, thereby enriching the layers of the semi-outdoor space.
Old and New, Balancing Preservation and Intervention
In the renovation, the designers carefully handled the relationship between old and new. For example, the old gable-roofed house at the entrance, though slightly different in style from the other new volumes, was largely left unchanged, with only the original roof replaced with aluminum-magnesium-manganese panels for safety reasons.
New interventions also adhered to the principle that “every intervention has a reason.” For instance, the landscaped view outside the window of the guest room soaking area was not merely decorative but also served to cleverly conceal unsightly pipes running along the wall, reflecting the design’s pursuit of authenticity and integrity.
Like most old building renovation projects, Chunli Guesthouse faced challenges such as tight budgets and the need to adapt to local construction standards. By adopting a fixed furniture system, multiple functional needs in the guest rooms were integrated and addressed, effectively reducing overall costs. At the same time, the design process fully considered local construction techniques, simplifying construction details as much as possible and selecting materials and methods that are easy to implement and durable, ensuring a high level of completion for the design concept.
“Catcher in the Field” is TEAM_BLDG’s response to nature, memory, and the spirit of place. We hope that, beyond meeting functional needs, this building can become a medium connecting people with the land, the past with the future, watching over both the soil and time itself.
TEAM_BLDG 公式サイト
http://www.team-bldg.com/index