
©︎ Willem Pab

©︎ Willem Pab
スイスのロモンに位置する〈インバーテッド・ファーム(The Inverted Farm)〉は、ロモンに拠点を置くバード・イェルサン・アーキテクツ(Bard Yersin Architectes)による19世紀の農家住宅の改修プロジェクトです。
法的に維持が困難となっていた歴史的な建物をアダプティブリユースし、「居住とパーマカルチャー(持続可能な農業)」という複合プログラムを組み込んだ建築となっています。
注目ポイント
- かつての住空間と農業用空間を逆転するプログラム編成
- 巨大な納屋のなかに新たな住居を挿入し、中間領域を生み出す入れ子構造
- 荷重の効率的な伝達しつつ異質性を抑える、新旧の構造を統合する木造グリッド
(以下、バード・イェルサン・アーキテクツから提供されたプレスキットのテキストの抄訳)

©︎ Willem Pab
本プロジェクトは、居住機能と農業機能を単一の屋根の下に統合した、この地域の典型的な19世紀の農家住宅を改修・変容させるものである。農業としての用途を失い、かつ建築区域外に位置するこの特大のボリュームは、法的に許可される居住可能床面積が限られているため、維持が困難な状態にあった。
こうした状況下において、クライアントが掲げる「居住とパーマカルチャー(持続可能な農業)」の複合プログラムは、建物全体を整合性をもって再活性化させるための、稀有な機会となった。

©︎ Willem Pab

©︎ Willem Pab
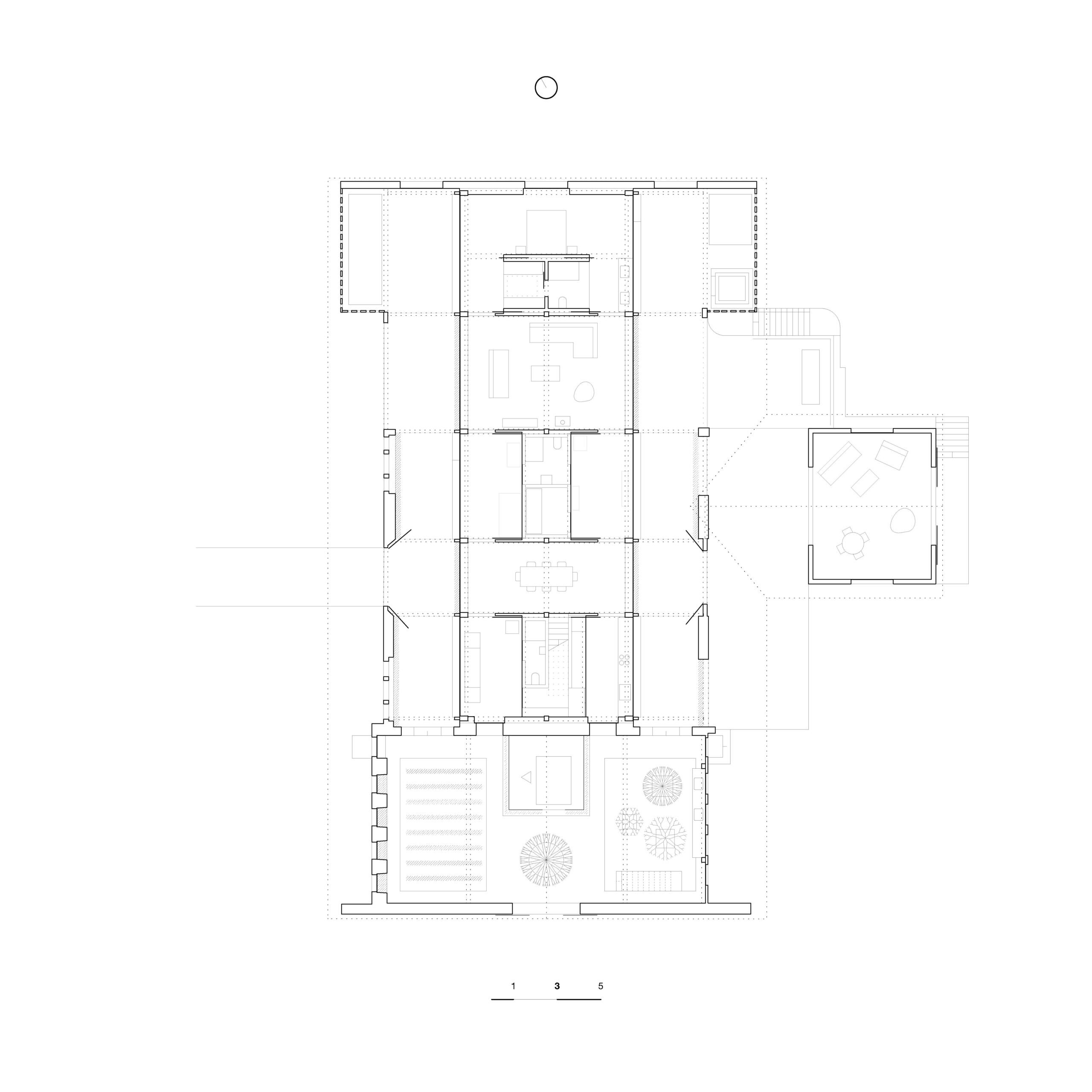
既存住居の平屋構造だけでは所有者のニーズを満たすには不十分であったため、本計画では本来の空間用途を完全に逆転させるアプローチをとっている。すなわち、かつての農業用空間に新たな住居を配置し、南向きの旧住居部分は内部を完全に撤去して、パーマカルチャー専用の温室へと転換したのである。
しかし、巨大な納屋のスペースは居住用途とするには依然として過剰であった。そこで設計戦略として、既存の外郭から後退させた「独立したボリューム(生活空間)」を内部に導入した。こうして既存外郭と新たな居住ボリュームとの間に生まれた中間領域は、植栽ゾーンや、住宅のための屋根付き屋外空間としての役割を交互に担うこととなる。

©︎ Willem Pab

©︎ Willem Pab
新たな住居空間を既存建物の構造的論理にしっかりと定着させるため、既存の屋根構造のモジュールに基づいて配置された木造の構造グリッドを骨格とし、それを木とガラスの壁面で補完する構成を採用している。
この構造システムは、屋根の荷重を効率的に下部へ伝達すると同時に、古い農家のなかに新たに挿入されたボリュームが放つ異質性を抑制する効果をもたらしている。

©︎ Willem Pab

©︎ Willem Pab
平面構成もまた、既存構造のリズムに忠実に従うものである。かつての干し草置き場に対応する区画には主要な生活空間を配置し、吹き抜けとなる二重層の高さや、視線と空間が抜ける貫通空間の利点を最大限に享受させている。
一方、かつての厩舎や貯蔵区域に並行する区画は、水回りなどのサービス空間を収容するテラコッタレンガのコアによって分割されている。そして、横方向に連なる連続空間(アンフィラード)が各部屋を結びつけることで、この建物が持つ特異で雄大なスケール感をより一層強化している。

©︎ Willem Pab

©︎ Willem Pab

©︎ Willem Pab

©︎ Willem Pab

©︎ Willem Pab

©︎ Willem Pab

©︎ Willem Pab

©︎ Willem Pab

©︎ Willem Pab

©︎ Willem Pab

©︎ Willem Pab

©︎ Willem Pab

©︎ Willem Pab

©︎ Willem Pab

©︎ Willem Pab

©︎ Bard Yersin Architectes

©︎ Bard Yersin Architectes

©︎ Bard Yersin Architectes

©︎ Bard Yersin Architectes

©︎ Bard Yersin Architectes

©︎ Bard Yersin Architectes
以下、バード・イェルサン・アーキテクツのリリース(英文)です。
The Inverted Farm
Conversion of a farmhouse in La Bruyère, Vuisternens-devant-RomontThe project transforms a 19th-century farmhouse typical of the region, which brings together dwelling and agricultural functions beneath a single roof. Deprived of its farming use and located outside the building zone, this exceptionally large volume has become difficult to maintain given the limited habitable floor area permitted. In this context, the client’s mixed housing/permaculture program represents a rare opportunity for a coherent requalification of the whole.
As the single-storey surface of the existing dwelling is insufficient for the owner’s needs, the project reverses the original uses: the former agricultural volume accommodates the new home, while the south-facing dwelling is completely emptied and converted into a greenhouse dedicated to permaculture. Since the barn space remains oversized for domestic requirements, the design strategy introduces a self-contained volume set back from the existing envelope. The resulting intermediate areas alternately serve planting zones and covered outdoor spaces for the house.
To anchor the new dwelling in the building’s constructive logic, it is conceived as a timber structural grid, set out on the module of the existing roof structure and complemented by timber and glass walls. This system efficiently transfers the roof loads while limiting the exogenous character of the inserted volume.
The plan organization follows the rhythm of the original structure: the bays corresponding to former haylofts accommodate the main spaces, benefiting from double-height volumes and through spaces, while the segments aligned with the former stables and storage areas are subdivided by terracotta brick cores housing the service spaces. Lateral enfilades connect the different rooms, reinforcing the perception of the building’s exceptional dimensions.
バード・イェルサン・アーキテクツ 公式サイト
https://bardyersin.ch