
©︎ DEL RIO BANI

©︎ DEL RIO BANI
スペイン・クエンカに位置する〈アグロセミージャス・オフィス(Agrosemillas Offices)〉は、コンテナを再利用した屋根が特徴的な、農業用の植物種子の開発・販売を手がける企業のオフィスビルです。
マドリードを拠点に活動する設計事務所 インペピナブル・スタジオ(Impepinable Studio)が設計しました。
注目ポイント
- 周囲に広がる農業・産業風景に適応するオフィス建築
- 産業的な外観と作業に適した内部環境を両立する「コンテナ屋根」
- 機能が交差する平面計画とインフラとしての建築
(以下、インペピナブル・スタジオから提供されたプレスキットのテキストの抄訳)

©︎ DEL RIO BANI

©︎ DEL RIO BANI

©︎ DEL RIO BANI
〈アグロセミージャス・オフィス〉は、ヒューマンスケールではなく、大型車両や物流インフラ、生産プロセスのスケールによって形づくられる農業・産業の景観の中に位置している。この建物は、人口660人の小さな町エル・ペラルとを隔てる国道沿いに建ち、周囲を広大な農地に囲まれており、目印となるものはほとんどない。
この場所の特性は、こうした地理的条件に加え、季節ごとの激しい気候変動や度重なる豪雨によって定義される気候からも浮かび上がってくる。ここでの仕事のリズムは収穫のサイクルに左右され、静かな時期と絶え間ない活動期が交互に訪れる。

©︎ DEL RIO BANI

©︎ DEL RIO BANI

©︎ DEL RIO BANI
本プロジェクトは、騒音や粉塵、そして物流の激しさに支配された環境のなかで、集中作業、会議、技術開発を支えることのできるワークスペースを導入するという課題に応えるものである。
この建物は、倉庫作業員から研究・イノベーションに携わるエンジニアに至るまで、年間を通じて業務内容やスケジュールが変化する多様な利用者を受け入れる。そのため、オフィスには明確な空間構成を維持しつつ、様々な働き方に対応できる柔軟性が求められた。同時に、周囲の倉庫群との直接的な関係を保ち、産業複合体としての形態的な連続性を確立することも必要とされたのである。

©︎ DEL RIO BANI

©︎ DEL RIO BANI
この新棟は、同社が進行している変革を後押しする戦略的機会として構想された。歴史的に種子生産と結びついてきたアグロセミージャスは、技術革新と環境責任に焦点を当てた新たな段階へと移行しつつある。
建築は、この過渡期に明確に呼応し、既存の遺産との連続性を保ちつつ、より開放的で若々しく、カジュアルなアイデンティティを導入している。この姿勢は、建物の全面に大胆に施された企業のコーポレートカラーである緑と黄色によって表現されている。
ファサードには、限られた数の大きな円形の開口部が配置され、手動式の円形シャッターによって保護されている。これらのシャッターはまるでスイッチのように機能し、建物が周囲に対して開閉することを可能にしている。

©︎ DEL RIO BANI

©︎ DEL RIO BANI
オフィス棟は、4,500m²を超える新規の生産・保管施設と同時に建設され、施工システム、資材、そして建設職人を共有した。このプロジェクトは、村の鍛冶屋や配管工といった地元職人から、近隣の町から来た型枠大工、そしてこの地域で通常活動している産業建設チームに至るまで、近隣地域で入手可能な技能を意図的に活用している。
こうした地元の専門知識への依存は、プロジェクトの技術的決定を形作る上で決定的な役割を果たし、意図的に簡素化された建築的アプローチを強化している。

©︎ DEL RIO BANI

©︎ DEL RIO BANI
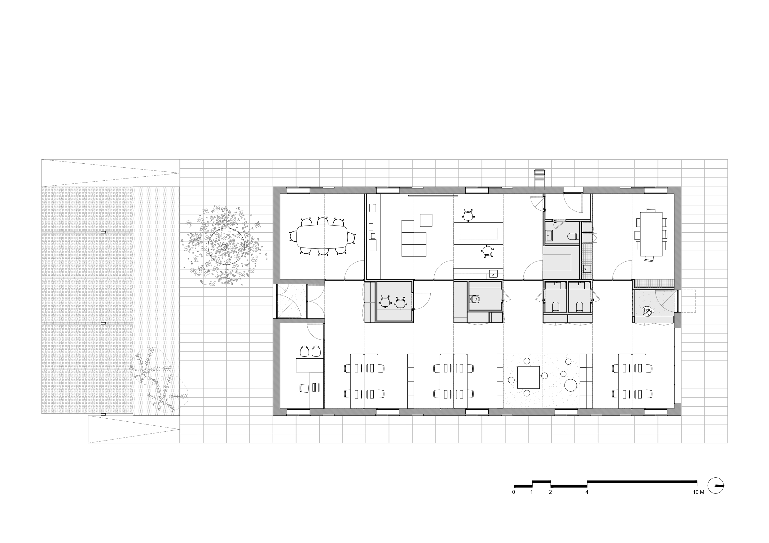
空間的に見ると、建物は明確で反復可能なシステムによって構成されている。2つの側面が開放された4つの再利用された輸送用コンテナが、隣接する工業用倉庫と共有するコンクリートの基壇の上に設置されている。
この配置により、一連の天窓として機能するノコギリ歯状の屋根が形成され、柔らかく均一な自然光を建物の奥深くまで導き込み、驚くほど豊かな空間的雰囲気を生み出している。開放面が北向きに配置されていることで、自然光が常に制御された形で取り込まれることが保証されている。

©︎ DEL RIO BANI

©︎ DEL RIO BANI
この配列に直交するように、3つの帯状のスペースがグリッド状の秩序で平面を構成している。1つはオープンな作業スペース、もう1つはサービスエリア、そして3つ目は会議室と実験施設に割り当てられている。入口は物流や作業の流れに応じて分離されており、中間部の屋根面には実験用作物を栽培するための帯状スペースが設けられ、研究、生産、そして建築を単一の枠組みの中で物理的に結びつけている。
この建物は、最終的に、精密かつ抑制の効いた機能的なインフラとして機能する。システム、用途、そしてその知識と労働によってこれを可能にする人々から生まれる建築である。

©︎ DEL RIO BANI

©︎ DEL RIO BANI

©︎ DEL RIO BANI

©︎ DEL RIO BANI

©︎ DEL RIO BANI

©︎ DEL RIO BANI

©︎ DEL RIO BANI

©︎ DEL RIO BANI

©︎ DEL RIO BANI

Plan

Elevations

Sections
以下、インペピナブル・スタジオのリリース(英文)です。
Project name
Agrosemillas OfficesBasic description
Agrosemillas’ offices are set within an agro-industrial landscape shaped by logistical infrastructures and the rhythms of agricultural production. The project creates a bright and flexible workplace using reused shipping containers and simple construction systems rooted in local craftsmanship. The architecture thus supports the company’s transition toward a new phase centered on technological innovation and sustainability.Studio: Impepinable Studio
Author: Gabriela Barrera
Contact E-mail: gabriela@impepinable.studio
Website: www.impepinable.studio
Social media: www.instagram.com/impepinable.studio
Studio address: C/Don Ramón de la Cruz 69, 28001 Madrid, Spain
Co-author: César Plata
Design team: Laura Currais, Matej SevelaProject location: El Peral, Cuenca
Project country: SpainProject year: 2023
Completion year: 2025
Gross floor area: 280 m²
Usable floor area: 245 m²
Plot size: 27 772 m²
Cost: 410 000 €Client: Agrosemillas
Client’s website: www.agrosemillas.netPhotographer: DEL RIO BANI, www.delriobani.com, delriobani@gmail.com
Collaborators and suppliers
Services engineering: Norta, www.nortap.es
Structural engineering: gv408, www.gv408.com
Technical architect: Miguel Ruiperez
Metalwork: Oscar Remolino
Contractor: Cresver80, www.cresver80.esDescription
Agrosemillas’ offices are set within an agro-industrial landscape shaped by the scale of large vehicles, logistical infrastructures, and production processes rather than by the scale of people. The complex stands beside a national road that separates it from the small town of El Peral — a municipality of 660 inhabitants — and is surrounded by vast agricultural fields with few immediate references. The character of the place emerges both from this territorial condition and from a climate defined by strong seasonal contrasts and recurrent episodes of torrential rain. Work rhythms follow the cycles of the harvest, alternating quieter periods with phases of continuous activity.Within this context, the project addresses the need to introduce workspaces capable of supporting concentration, meetings, and technical development in an environment otherwise dominated by noise, dust, and logistical intensity. The building accommodates a wide range of users — from warehouse workers to engineers involved in research and innovation — whose tasks and schedules shift throughout the year. The offices, therefore, had to be flexible enough to host different forms of work while maintaining a clear spatial organization. At the same time, they were required to retain a direct relationship with the surrounding warehouses, establishing a certain formal continuity with the industrial complex.
The new building is conceived as a strategic opportunity to accompany the company’s ongoing transformation. Agrosemillas, historically linked to seed production, is entering a new stage focused on technological innovation and environmental responsibility. The architecture explicitly engages with this moment of transition, balancing continuity with the company’s existing legacy while introducing a more open, youthful, and informal identity. This attitude is expressed through the unapologetic use of the company’s corporate colors — green and yellow — applied directly across the building. The façades are punctuated by a limited number of large circular openings, protected by manually operated circular shutters that act almost like switches, allowing the building to open to or close itself off from its surroundings.
The offices were constructed simultaneously with more than 4,500 m² of new production and storage facilities, sharing construction systems, materials, and building trades. The project deliberately relies on the skills available in the immediate context: local craftsmen from the village — such as the blacksmith and the plumber — alongside formwork carpenters from the neighboring town and the industrial construction teams typically working in the region. This reliance on local expertise proved decisive in shaping the project’s technical decisions and reinforces a deliberately austere architectural approach.
Spatially, the building is organized through a clear and repeatable system. Four reused shipping containers, opened along two of their sides, rest on a concrete plinth shared with the adjacent industrial warehouses. Their arrangement generates a saw-tooth roof profile that functions as a sequence of skylights, bringing soft, even daylight deep into the interior and producing a surprisingly rich spatial atmosphere. The north-facing orientation of the open planes ensures a constant and controlled entry of natural light.
Perpendicular to this sequence, three bands structure the plan in a grid-like order: one dedicated to open workspaces, another to service areas, and a third to meeting rooms and laboratory facilities. Entrances are separated according to logistical and working flows, while the intermediate roof surfaces incorporate strips for experimental crops, physically linking research, production, and architecture within a single framework.
The building ultimately operates as a precise and restrained piece of working infrastructure — an architecture that emerges from systems, from use, and from the people whose knowledge and labor make it possible.
Materials
reused shipping containers — saw-tooth roof
composite metal deck — flat roof
concrete — plinth / façade
steel — interior and exterior frames
oak — interior wood cladding and furniture
polished concrete slab — flooringProducts and Brands
storage dividers and tables — USM\www.usm.com
chairs, high table, and stools — Vitra\www.vitra.com
Unfold pendant lamps — Muuto\www.muuto.com
Tolomeo table lamps — Artemide\www.artemide.com
Rollsound acoustic elements — Notson\www.notson-acustica.com
laboratory and dining furniture — Lebrel\www.lebrel.orgAbout studio / author
Impepinable is a Madrid-based spatial design studio led by architect Gabriela Barrera. The practice develops thoughtful and refreshing responses to architectural challenges across contexts of living, working, and production. With a balanced mix of rigor and humor, the studio creates expressive spaces that help people move towards a better future.Gabriela Barrera studied architecture in Madrid and Vienna, graduating with honors from the Escuela Técnica Superior de Arquitectura de Madrid.
She has been a research member at Tsukamoto Lab at the Tokyo Institute of Technology and an associate professor at Technische Universität Berlin. Since 2013, she has collaborated with internationally renowned firms, including Kengo Kuma & Associates in Tokyo, MVRDV in Rotterdam, and Estudio Herreros in Madrid. Gabriela has been leading Impepinable Studio since 2020.
インペピナブル・スタジオ 公式サイト
https://www.impepinable.studio