
©︎ Seok-gyu Hong
韓国・江原特別自治道に誕生したカフェ〈Monologue _ 時を歩む者の独⽩(Monologue _ The Monologue of a Timewalker)〉は、「地球が⼀度リセットされた後の世界に残る古代修道院」という架空の物語から構想された建築です。
単なる消費の場というカフェの枠組みを越え、訪れる者に思索を促す静謐な文化的空間として、ソウルを拠点とする設計事務所 SOSOKKI ANACが設計しました。
注目ポイント
- ドラマ「ゲーム・オブ・スローンズ」から着想したボリューム
- 架空の物語を物理的空間へと翻訳する設計アプローチ
- 視点と時間帯で絶えず変容する有機的な形態
- 建築からインテリア、ブランディング、彫刻に至るまで、領域を横断したトータルディレクション
(以下、SOSOKKI ANACから提供されたプレスキットのテキストの抄訳)

©︎ Seok-gyu Hong

©︎ Seok-gyu Hong
〈Monologue〉は、地球が⼀度リセットされたという架空の前提から始まる。そのリセット以前には古代⽂明が存在し、そこには修道院が建っていた。本プロジェクトは、「その修道院はいかなる建築であったのか」という問いから出発している。

©︎ Seok-gyu Hong

©︎ Seok-gyu Hong
この思考実験的な物語は、単なる背景設定にとどまらず、建築の形態や空間構成、さらには場の雰囲気に⾄るまでを規定する基盤として機能している。建築のボリュームは、ドラマ「ゲーム・オブ・スローンズ」に登場する”北の壁”のイメージから着想を得ており、⽂明の境界であると同時に時間の断絶を象徴する存在として再解釈されている。それは、層のように積み重なった記憶と、蓄積された時間を内包する建築的表現である。
空間のトーンは、修道院に⾒られる抑制的で内省的な性質から導き出されている。装飾的あるいは商業的な演出に依存するのではなく、素材の質感や量塊としての存在感、そして時間とともに変化する光の在り⽅によって、静かで思索的な体験を⽣み出すことを⽬指している。

©︎ Seok-gyu Hong

©︎ Seok-gyu Hong
〈Monologue〉は単なるカフェにとどまらず、建築、インテリア、ブランド、彫刻、絵画といった要素が有機的に結びついた⽂化的・芸術的空間として構想されている。これらすべての要素は、建築家でありアーティストでもあるチョン・ギテ(Gi-Tae Chung)のディレクションのもとに統合されており、空間全体に⼀貫したトーンと感性を与えている。

©︎ Seok-gyu Hong

©︎ Seok-gyu Hong
また本建築は、⾒る⽅向によって異なる表情を⾒せるよう計画されている。時間帯や⾃然光の変化に応じてその形態は絶えず変容し、固定されたイメージにとどまることなく、あたかも⽣きているかのような建築的存在として⽴ち現れる。
〈Monologue〉は消費のための場所ではない。建築、芸術、物語、そして時間が交差する場として、訪れる者に滞在し、観察し、思索することを促している。それは、カフェという枠組みを超え、建築を⽂化的かつ思索的な⾏為として提⽰する試みである。

©︎ Seok-gyu Hong

©︎ Seok-gyu Hong

©︎ Seok-gyu Hong

©︎ Seok-gyu Hong

©︎ Seok-gyu Hong

©︎ Seok-gyu Hong

©︎ Seok-gyu Hong

©︎ Seok-gyu Hong

©︎ Seok-gyu Hong

©︎ Seok-gyu Hong

©︎ Seok-gyu Hong

©︎ Seok-gyu Hong

©︎ Seok-gyu Hong

©︎ Seok-gyu Hong

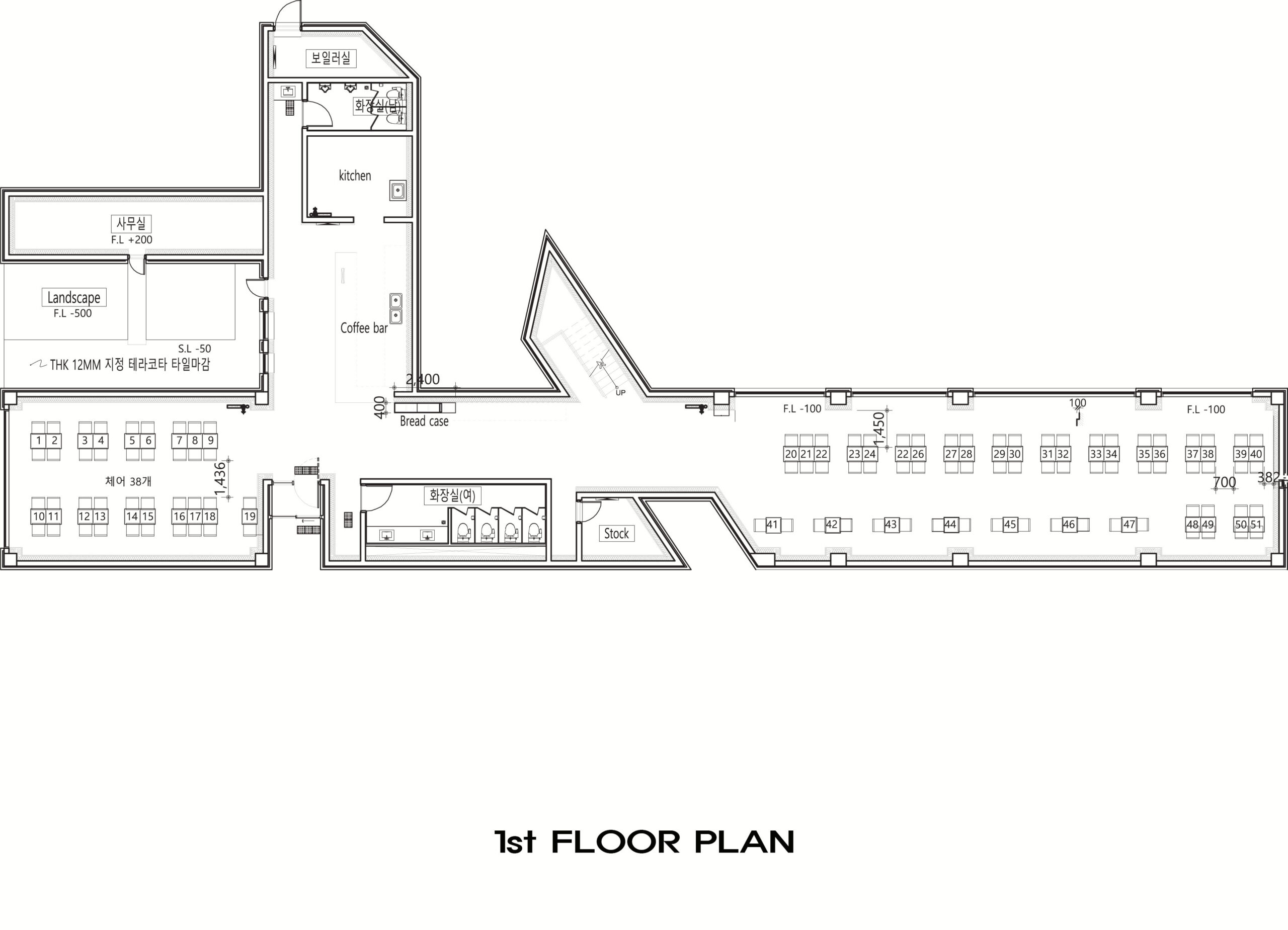
建築概要
プロジェクト名:Monologue _ 時を歩む者の独⽩
所在地:⼤韓民国 江原特別⾃治道 洪川郡 西⾯ オドチギル7
⽤途:カフェ
⼯期:2024年8⽉ 2025年10⽉
建築設計:SOSOKKI ANAC / チョン・ギテ
実施設計・施⼯図:WA20 Architects / イ・ビョングク⼟⽊設計事務所 / Deoksu ENG
施⼯:Stasis Construction
内装施⼯:Stasis Construction
ランドスケープ施⼯:Nature Space
敷地⾯積:3,463㎡
建築⾯積:455.6㎡
延床⾯積:434.7㎡
階数:地上1階
構造:鉄筋コンクリート造(RC)
外装仕上げ:⾚レンガ / ヘアライン仕上げステンレス
内装仕上げ:ティエラプラスター / クランチスタッコ / サビストーンタイル
写真:Seok-gyu Hong以下、SOSOKKI ANACのリリース(英文)です。
Design Overview
Monologue _ The Monologue of a Timewalker
Monologue _ The Monologue of a Timewalker begins with a fictional premise: that the Earth has once undergone a reset. Before this moment, an ancient civilization existed, within which stood a monastery. The project originates from a question—what architectural form such a monastery might have taken.
This speculative narrative serves not merely as a conceptual backdrop, but as a fundamental framework shaping the building’s form, spatial composition, and atmosphere. The massing is inspired by the image of the Northern Wall from Game of Thrones, reinterpreted here as a symbolic boundary between civilizations and a rupture in time—an architectural embodiment of layered memory and accumulated history.
The spatial atmosphere draws from the restrained and contemplative qualities of a monastery. Rather than relying on decorative or commercial gestures, the project emphasizes materiality, mass, and the movement of light to create a calm and introspective experience.
Beyond its function as a café, Monologue is conceived as a cultural and artistic environment, where architecture, interior design, brand identity, sculpture, and painting are integrated into a single narrative. All elements are unified under the direction of artist and architect Gi-Tae Chung, establishing a consistent tone and sensibility throughout.
The building is designed to present a distinct expression from each direction. As natural light shifts throughout the day, the form continuously transforms, allowing the architecture to resist a fixed image and instead exist as a living, evolving presence.
Monologue is not defined by consumption, but by experience. It is a space where architecture, art, narrative, and time intersect— inviting visitors to linger, observe, and reflect, and proposing architecture as a cultural and contemplative act.
Architectural Overview
Project Name: Monologue _ The Monologue of a Timewalker
Location: 7, Odochigil, Seomyeon, Hongcheon-gun, Gangwon Special Self-Governing Province, Republic of Korea
Building Use: Café
Construction Period: August 2024 October 2025
Architectural Design: SOSOKKI ANAC / Gi-Tae Chung
Design Development & Construction Documents: WA20 Architects / Lee Byung-Guk Civil Engineering Office / Deoksu ENG
General Contractor: Stasis Construction
Landscape Construction: Nature Space
Site Area: 3,463 m²
Building Area: 455.6 m²
Gross Floor Area: 434.7 m²
Stories: 1 (Above Ground)
Structure: Reinforced Concrete (RC)
Exterior Finishes: Red Brick / Hairline-finished Stainless Steel
Interior Finishes: Tierra Plaster / Crunch Stucco / Sabi Stone Tile
Photographer: Seok-gyu Hong
SOSOKKI ANAC 公式サイト
https://www.anacsite.com