
©︎ Anna Sigge
スウェーデンの都市ボロースの工業団地内に誕生した〈ヴィアレッド・センター(Viared Center)〉は、同国の設計事務所 Wingårdhsが設計を手がけた、企業と従業員のための新たな複合型ワークプレイスです。
空間全体に自然を取り込むバイオフィリックデザインを採用した、オフィス機能からカフェやレストラン、ジムといった多様な生活必需サービスを内包する施設です。
注目ポイント
- 最もカーボン効率の高い木材を多く採用した木造構造
- 建築に自然の要素を融合したバイオフィリックデザイン
- 生物多様性を育む屋上ランドスケープ
- 利用者のウェルビーイングを促す立体的なプログラム
(以下、Wingårdhsから提供されたプレスキットのテキストの抄訳)

©︎ William Gustavsson / Wingårdhs
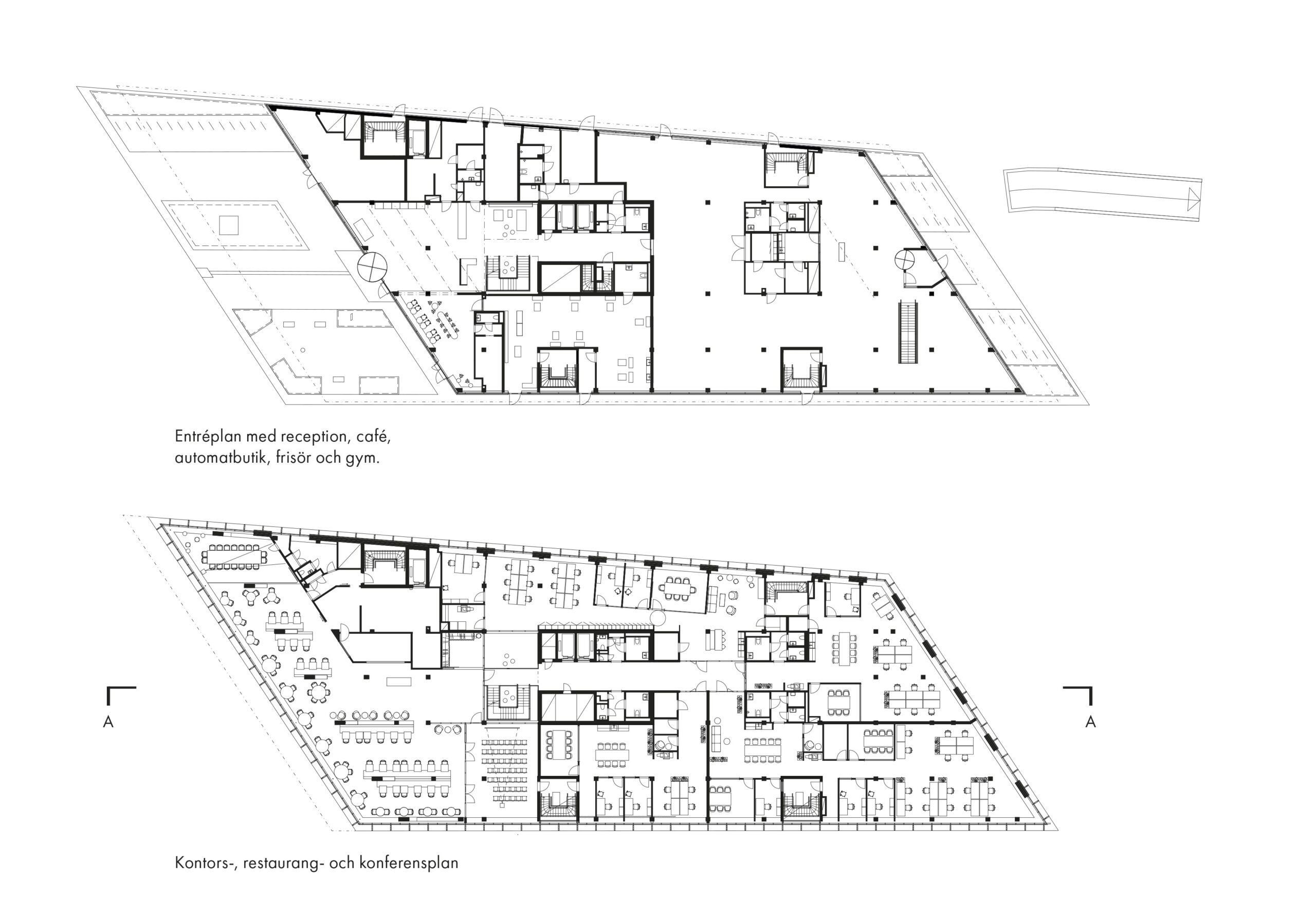
〈ヴィアレッド・センター〉は、ボロースの西側に広がる工業団地内に位置する、企業と従業員のための活気あふれる新しい拠点である。この居心地の良いセンターには、カフェ、レストラン、ジム、24時間営業のセルフサービスストアをはじめ、さまざまな生活必需サービスが揃っている。

©︎ Wingårdhs
建物は3つの主要フロアに加え、地下階と、広々としたテラスを備えセットバックした屋上階で構成されている。2階から4階は主にオフィススペースとなっており、3階にはレストラン、会議施設、コワーキングスペース、および小規模な賃貸ユニットが統合されている。
セットバックした屋上階には、さまざまなニーズに合わせて活用できる多目的テラススペースが広がっている。

©︎ Wingårdhs
最もカーボン効率の高い建築材料である木材を用いて建設された〈ヴィアレッド・センター〉は、未来の建築を体現している。持続可能性は構造そのものに織り込まれており、日常の体験に自然を取り入れるバイオフィリックデザインの要素が随所に散りばめられている。
メイン階段を核とする中央アトリウムには、垂直のグリーンウォールが設けられ、各階にわたって植物のつるが流れ落ちるように配置されている。

©︎ Wingårdhs
受付エリアは緑の天井と海水水槽で彩られ、自然に包まれているような感覚を高めている。屋上テラスもこの理念を継承しており、レストランでは自家栽培の食材が提供されている。
テラスは大小さまざまな集まりに対応できる柔軟な空間を提供し、ビオトープ屋根、低木、つる植物からなる生物多様性に富んだ生態系によって、その魅力がさらに引き立てられている。これらの緑の要素は、建物利用者に豊かな環境をもたらし、生物多様性を育んでいる。

©︎ Wingårdhs

©︎ Viared Center
〈ヴィアレッド・センター〉は持続可能なイノベーションの証であり、木造建築とバイオフィリックデザインが融合し、現代のワークプレイスを再定義している。機能性、自然、コミュニティが調和したこの施設は、ウェルビーイングと生態系のレジリエンス(回復力)を支える建築的メッセージとなっている。

©︎ Anna Sigge

©︎ Wingårdhs

©︎ Wingårdhs

©︎ Viared Center

以下、Wingårdhsのリリース(英文)です。
Viared Center
Viared Center is a vibrant new hub for businesses and employees within the expanding industrial park west of Borås. This welcoming center offers a café, restaurant, gym, a 24-hour self-service store, and a wide range of essential services.
The building rises over three main floors, with a basement and a recessed rooftop level featuring a spacious terrace. Floors 2 through 4 primarily house offices, while the third floor integrates a restaurant, conference facilities, coworking spaces, and smaller rental units. The recessed rooftop floor allows for a versatile terrace space adaptable to various needs.
Constructed with timber – the most carbon-efficient building material – Viared Center embraces the architecture of tomorrow. Sustainability is interwoven in the structure and biophilic design elements that bring nature into the everyday experience. The central atrium, anchored by the main staircase, features a vertical green wall and cascading plant vines across all levels.
The reception area is crowned with a green ceiling and a saltwater aquarium, heightening the sensation of being enveloped in nature. The rooftop terrace extends this philosophy, with the restaurant cultivating its produce. The terrace provides flexible spaces for gatherings large and small, enhanced by a biodiverse ecosystem of biotope roofs, shrubs, and climbing plants. These green elements create a lush environment for the building’s occupants and foster biodiversity.
Viared Center is a testament to sustainable innovation, where timber construction and biophilic design converge to redefine the modern workplace. It offers a harmonious blend of functionality, nature, and community – an architectural statement that supports well-being and ecological resilience.Project information
Completed: 2023
Location: Viared, Borås, Sweden
Gross area: 6640 sqm
Client: Åke och Gustav Björsell
Wingårdhs 公式サイト
https://www.wingardhs.se