
© Guowei Liu
中国の河北省、唐山市に位置する〈The Rock〉は、中国の伝統的な景観概念「飛来石」から着想を得た、巨岩のような外観のホテルです。
上海を拠点に活動する建築事務所 ウートピア・ラボ(Wutopia Lab)が設計しました。
注目ポイント
- 「建築性を排除」しつつランドマーク性を確保
- コストを下げつつ粗い質感を生み出す、外壁を構成する2次元パネル
- 建築の中央に据えられた洞窟のようなプール
- 建築の力を引き出す未知の形態への挑戦
(以下、ウートピア・ラボから提供されたプレスキットのテキストの抄訳)

© Guowei Liu
金融街(遵化)不動産開発株式会社の依頼によりウートピア・ラボが設計した〈The Rock〉は、2024年に竣工した。唐山遵化金融街の古泉町の山頂にそびえ、まるで空から舞い降りたかのような姿をしている。
プロジェクトは2020年に始動し、ウートピア・ラボは建築とインテリアデザイン、ランドスケープのコンセプトデザインを担当した。

© Guowei Liu

© Guowei Liu
古泉町の精神的ランドマークとして機能するこの建物は、ホテルとして利用され、プール、ジム、屋外温泉プールを備えるとともに、周辺別荘への温泉水供給も担っている。
敷地はまちの中心部の最高地点に位置し、メインホテル入口から20m上空にある。クライアントは、古泉町のあらゆる場所から視認できる構造物を求めていた。

© Guowei Liu

© Guowei Liu
多様な建築形態を検討したが、最終的に「建築性を排除する」というアプローチを採用した。
敷地北端は断崖となっており、万里の長城を望む絶景が広がっている。そこで、中国の伝統的な風景概念である「飛来石」から着想を得た。「飛」は周囲からの解放と超越的な、異世界的な性質を暗示しており、記憶に残り、独自の存在感を放つものである。そこで中央部を「飛来石」の形とし、断崖から外へ伸びる飛行の姿を淡く表現した。

© Guowei Liu

© Guowei Liu
石の形状が定まると、内部空間は洞窟の論理に従って構成し、中央にはプールを含む洞窟システムを設けた。
私たちは長年、リオネル(Lionel)の「ザ・ビーチ(The Beach)」に登場する海水で満たされた洞窟に魅了されており、その記憶を反映し頂部に天窓を開けた。光が差し込み水面に波紋を描く瞬間は、儚い聖域が動き出す瞬間である。

© Guowei Liu

© Guowei Liu
この天窓は訪問者を山頂へ導く。ナスカの地上絵にならい、岩を貫く螺旋状の動線を構築し、穏やかな飛行感覚を喚起した。雪に覆われた山頂では、蒸気を上げる池と淡く螺旋を描く曲線だけが現れる。
自然は真のアーティストとなり、中心部を山から生まれた石へと変貌させる。ヴィラとクラブハウスを結ぶジグザグの道は地中に埋め込まれ、現れては消え、最初の一歩から体験が始まる。

© Guowei Liu

© Guowei Liu
石と洞窟は避難所であり囲いであり、ゆえに光は不可欠である。26m²の天窓と北側カーテンウォールから光が注ぎ、洞窟を照らす。
天井と壁は柔らかなグレーホワイトで統一され、曲線的に融合することで抽象的な洞窟を形成している。反射した水面の光は表面をきらめかせ、固いものさえ波打つように見せ、感情の揺らぎを映し出す。

© Guowei Liu
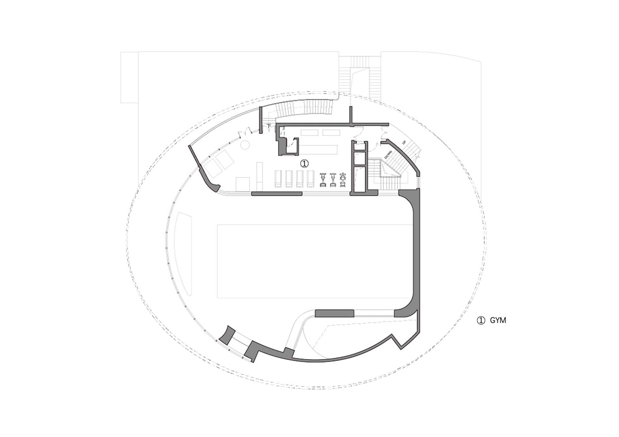
2階のジムからはプールを望め、小さな洞窟から大きな洞窟をのぞき込む視点が得られる。
屋外温泉プールは地形と植生で囲まれ、遠方の万里の長城を眺められる。夜には光が水面に反射し、洞窟は星空へと変貌する。ウートピア・ラボは自然光と人工光で、既存のパターンを少しだけ崩そうと試みた。

© Guowei Liu
3階建ての〈The Rock〉は、巨岩のようにそびえ立っている。1階にはホテルロビーとバックヤード、2階には各種プールと更衣室、3階にはジムを配置した。
形状は比較的規則的な小石状に整え、必要な曲面金属パネルの種類を減らしてコストを抑制した。垂直線より水平線を強調し、滑らかな卵形ではなく粗いエッジをもつテクスチャを採用した。2次元パネルの接合が生む角張りは、高価な3次元パネルを減らす利点となった。

© Guowei Liu
建物の延床面積を制御するため、外側の金属ファサードは防水・断熱コアを包むオープンシェル構造として設計した。シェルとコア間の空洞は屋上スロープを可能にし、一般公開されている。
最大の課題は防水であり、多数の大断面図を作成して連続性と排水効率を確保したが、現場での調整も不可欠であった。

© Guowei Liu
そこで建物と断崖の視覚的バランスを保つため、サービススペースは山中に埋設することで、「石」の建築を視覚的に軽快に保っている。
敷地が震度8の地震帯に位置するため、小さなキャンチレバーでも極めて困難であったため、最終形状を実現するため、カーテンウォールのフレームワークの一部を構造補強として使用した。
プールホールは高さ9m、排煙開口部42m²を必要とし、換気口を北側カーテンウォールと南側洞窟開口部に設置した。放射状ユーティリティベルト内の設備調整もBIMで詳細に解決した。現代の計算技術なくしては、膨大な時間と予算が必要だったであろう。

© Guowei Liu

© Guowei Liu
クライアントは私たちに、自信のない形態表現にも挑戦するよう促した。これはキャリアを振り返る契機となった。
過去の成功パターンをなぞり安全策を選ぶ機会はあったが、あえてそうはしなかった。建築は驚かせ、感動させ、時に失望させる力をもつ。意味あるものを創造できなければ人生は退屈になる。
4年を費やしたこのプロジェクトは、数多くの転機を経て、クライアントと建築家の努力により真の偉業となったのである。

© Guowei Liu

© Guowei Liu

© Guowei Liu

© Guowei Liu

First floor plan © Wutopia Lab

Second floor plan © Wutopia Lab

Third floor plan © Wutopia Lab
以下、ウートピア・ラボのリリース(英文)です。
The Rock by Wutopia Lab
“A lofty goal, if pursued with unwavering resolve, becomes a feat of greatness.”
— William Wordsworth
Commissioned by Financial Street (Zunhua) Real Estate Development Co., Ltd., Wutopia Lab designed The Rock — Cloud Center, which was completed in 2024. Perched atop a mountain in the Ancient Spring Town of Financial Street Zunhua, Tangshan, it appears as if it descended from the sky.
The project began in 2020, with Wutopia Lab responsible for the architecture and interior design of The Rock, as well as the conceptual design of the landscape. Serving as the spiritual landmark of Ancient Spring Town, the building also functions as a hotel, featuring a swimming pool, gym, and outdoor hot spring pools, and supplying hot spring water to the surrounding villas. The site is located at the highest point in the core area of the town, 20 meters above the main hotel entrance. The client envisioned it as a structure visible from every corner of Ancient Spring Town.
Place is Percept
From this vantage point, we explored various architectural forms, but none felt right. In the end, we chose to “de-architecturalize.” The northern edge of the site drops off like a cliff, offering the best view of the ancient Great Wall. I drew inspiration from the traditional Chinese landscape concept of the “flying rock”—there are over 30 scenic sites across China named flying rock. The term “flying” suggests both a break from the surroundings and a transcendent, otherworldly nature—memorable and distinct. Thus, we shaped the center into a “flying rock,” extending outward from the cliff with a faint posture of flight.
Once the form of the stone was established, all interior spaces naturally followed a caving logic—creating a cavernous system that accommodates a central swimming pool among other functions. I have long been captivated by the scene of sea-filled caves in Lionel’s The Beach, and requested a skylight to be opened at the top of The Rock. Daylight pours through, striking the water into shimmering ripples—an ephemeral sanctity, and the very moment the place becomes moving.
With this skylight, I wanted visitors to ascend to the summit. Drawing analogy from the Nazca Lines, I constructed a spiraling ramp that penetrates and emerges from the rock, evoking a gentle sense of flight. Zunhua and the Great Wall then unfold quietly before your eyes.
When snow blankets the mountaintop, all that’s visible are steaming pools and faintly spiraling curves. Nature becomes the true artist, transforming the center into a stone born of the mountain. The zigzagging landscape path connecting villas to the clubhouse is embedded in the earth—disappearing, reappearing, leading visitors into the experience from the very first step.
Light is Liberation
Stone and cave are both shelter and enclosure. Thus, light is essential. Sunlight enters through a 26-square-meter skylight and the northern curtain wall, illuminating the cavern. The ceiling and walls are finished in a unified soft grey-white, blended through curved transitions—an abstracted cave. Reflected water light shimmers on the surfaces, making even the solid seem to ripple, just like one’s emotions.
The gym on the second floor offers a superb view of the pool—as if peering from a small cave into a grander one, while also gazing beyond the rock into the surrounding nature. The outdoor hot spring pools are enclosed by terrain and vegetation for privacy, yet still offer a distant view of the Great Wall. At night, as lights twinkle above the pool, the cave transforms into a starry sky.
Life is full of expected combinations. Wutopia Lab hopes to break these patterns just a little—with daylight and electric light.
Tech is Trendsetting
The Rock rises like a boulder across three levels. The ground floor includes a hotel-facing lobby and back-of-house utilities. The second floor hosts the main pool, wading pool, children’s pool, outdoor pools, and changing rooms. The third floor houses the gym.
We spent a long time adjusting the form of the rock into a relatively regular pebble, minimizing the types of curved metal panels required, thereby controlling cost. Emphasizing horizontal over vertical lines, we chose a texture with some rugged edges—unlike a smooth egg. The angularity produced by two-dimensional panel fitting became an advantage, reducing the need for expensive three-dimensional metal cladding.
To control the building’s gross floor area, the outer metal façade is designed as an open shell encasing a waterproof, insulated core. Only the core is counted in floor area calculations. The cavity between shell and core allows a rooftop ramp to traverse the structure without affecting interior spaces—open to public access. The greatest challenge was waterproofing. We drafted numerous large-scale sectional drawings to ensure continuity and efficient drainage of waterproof layers. Even so, on-site coordination between client and architect was necessary to resolve unexpected construction issues.
The utility rooms of The Rock span nearly 900 square meters—over half the total area. To preserve the visual proportion between building and cliff, the service space was buried into the mountain, treated as part of the landscape, keeping the main “stone” structure visually light. However, given that the site lies in Tangshan’s Grade-8 seismic zone, even a small cantilever was extremely difficult. We used parts of the curtain wall framework as structural reinforcement to ensure the final form could be realized.
The pool hall rises 9 meters high and required 42 square meters of smoke exhaust openings. Besides the operable vents on the north curtain wall, others were hidden within the second-floor cave openings on the south side. Another challenge was coordinating MEP points within a radial utility belt. As the mechanical floor follows the elliptical pool, relationships between pool dehumidification, HVAC, and curtain wall structure had to be resolved detail by detail in BIM.
Without modern computational technology, these challenges would have demanded far more time and budget to resolve by hand.
Architecture is Affects
It was the client who encouraged me to pursue a formal expression I was not yet confident in. That pushed me to reflect on my career. I had many chances to replicate successful past patterns, to tread safely—but I chose not to. Architecture is an underestimated weapon—it can surprise, move, or even disappoint. If one cannot create something meaningful, life becomes dull. You see, the project took four years and witnessed many pivotal moments. Yet through the efforts of both client and architect, it became a true feat.
“Stone upon stone, but man—where was he?
The stones swallowed time’s rainstorm.”
— Pablo NerudaProject Name: Cloud Center, Financial Street Ancient Spring Town
Design Firm: Wutopia Lab
Chief Architect: YU Ting
Project Architect: Liran SUN
Design Team: PAN Dali, KUANG Zhou, MU Zhilin, XIONG Jiaxing, ZENG Rui (Intern), ZHANG Naiyue (Intern)
Acknowledgment: CHEN Xi
Architectural Construction Drawings: China IPPR International Engineering Co., Ltd.Construction Drawing Team: WANG Chunyu, LI Shijie, LIU Yao, WANG Yu, WANG Jianning, PAN Xuezhong, WANG Yi, ZHANG Song
Interior Construction Drawings Consultant: Shanghai Sunyat Architecture Design Co., Ltd.
Landscape Design: Ecoland
Client: Financial Street (Zunhua) Real Estate Development Co., Ltd.
Client Management Team: WANG Ying (Design Director), GUAN Xueqiang (Project Manager)
General Contractor: China State Construction Urban Development Co., Ltd.
Structural Consultant: AND
Structural Team: ZHANG Zhun, CAI Yanming
Geometry Optimization: bespoke. Sur-Mesure Engineering Studio
Lighting Consultant: Chloe ZHANG, WEI Shiyu
Design Advisor: WEI Minfei
Photography: Daily Architectural Photography | LIU Guowei
Location: Zunhua, Hebei, China
Time: May 2020 – December 2024
Area: 1,690 square meters
Materials: Aluminum panels, GRG, stucco
Video: https://youtu.be/EaCCbfePFKs
ウートピア・ラボ 公式サイト
https://www.wutopialab.com/index.aspx