
©︎ Hiroyuki Oki
ベトナムのビエンホア市に建つ〈Wall house〉は、焼成時に発生する欠陥レンガを使用した「呼吸する壁」により、常に新鮮な空気と光を取り入れる住宅です。
ベトナムを拠点に活動する建築家集団 CTA(Creative Architects)が設計しました。
注目ポイント
- 研究により明らかとなった室内空気の汚染
- レンガの壁と庭園空間による空気の循環と浄化
- 日中は空調・照明・ファンをほとんど不要とするパッシブクーリング
- 廃材である欠陥レンガを再利用した、独自の美観と環境負荷軽減の両立
(以下、CTAから提供されたプレスキットのテキストの抄訳)

©︎ Hiroyuki Oki

©︎ Hiroyuki Oki
近年発表された科学的研究により、室内の空気は屋外の空気よりも汚染されていることが明らかとなった。そのため、クライアントとの議論は、24時間365日自ら「呼吸」できる住宅というアイデアに集約された。
〈Wall house〉は従来の壁で囲まれた8つの独立した空間で構成されており、これらのブロックは共通の空間で交差している。この中心となる空間を形成しているのが「呼吸する壁」である。

Diagram

Diagram
「呼吸する壁」は2層構造で構成されている。
この2層の保護は通常の壁と同等の機能を果たしつつ、空気と光の循環を確保することで、より健康的な居住環境を実現している。

Diagram

Diagram
敷地はビエンホア市に残る数少ない庭園の1つであり、ドンナイ川に隣接している。住宅の計画に際しては、この庭を可能な限りオリジナルの状態で維持することが重視された。

Plans

Diagram
「呼吸する壁」と交互に配置された天窓により、自然光と新鮮な空気が常に循環し、庭の樹木と調和して住宅内部を快適に保つ。日中のほとんどはエアコンや照明だけでなくファンも必要としない。
また、壁面に仕上げ材を施さないため、通気性が高く熱を吸収しにくい。雨の後も早く乾燥するため、熱帯気候のベトナムに適した設計となっている。

©︎ Hiroyuki Oki
焼成時に欠陥品として生じたレンガは、その不規則な色や形を活かし、新たな素材として再生されている。これにより、環境負荷を軽減すると同時に独自の美観を生み出している。
「呼吸する壁」は建設コストや材料の削減にも寄与し、将来的なメンテナンスの容易さも確保する。

©︎ Hiroyuki Oki
住宅内部の空気は常に交換され、外気のように軽やかで新鮮な状態を保つ。これにより、健康的な居住空間が持続的に創出される。
さらに、中央の共有スペースや庭、松材の床が縦横に連結された独立空間と組み合わさり、換気・採光・家族間のつながりを同時に実現している。ソリッドとヴォイド、内と外の境界が曖昧になることで、自然に近い新しい住まいの形が生まれている。

©︎ Hiroyuki Oki
この住宅は家族の伝統的な生活様式を尊重しつつ、より多くの共有スペースを設けることで、家族同士が互いに見やすく、交流やつながりが自然に深まるよう設計されている。
上階の共有学習スペースは吹き抜けを介して下階の庭とつながっており、祖父はハンモックで休み、祖母は台所で料理をし、子供たちはテレビを見る、といった日常の営みが樹木の陰のもとで展開される。

©︎ Hiroyuki Oki

©︎ Hiroyuki Oki

©︎ Hiroyuki Oki

©︎ Hiroyuki Oki

©︎ Hiroyuki Oki

©︎ Hiroyuki Oki

©︎ Hiroyuki Oki

©︎ Hiroyuki Oki

©︎ Hiroyuki Oki

©︎ Hiroyuki Oki

©︎ Hiroyuki Oki

©︎ Hiroyuki Oki

©︎ Hiroyuki Oki

©︎ Hiroyuki Oki

©︎ Hiroyuki Oki

©︎ Hiroyuki Oki

©︎ Hiroyuki Oki

©︎ Hiroyuki Oki

Site plan

Ground floor plan

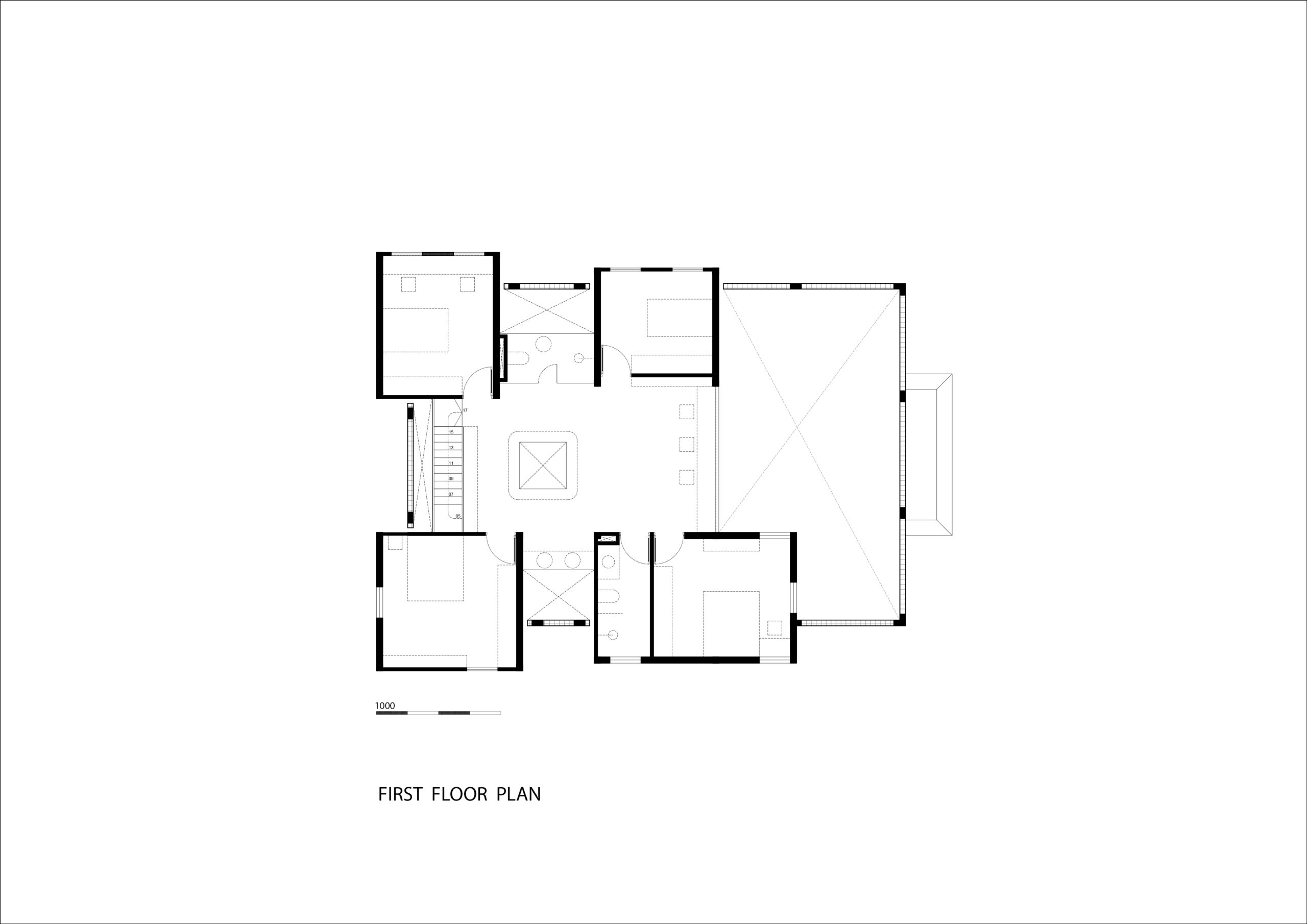
First floor plan

Elevation

Section
以下、CTAのリリース(英文)です。
Wall houseYear : 2019
Location : Bien Hoa, Dong Nai, Viet Nam
Site area : 1013.4 m²
Ground floor area : 207.7 m²
Levels : 2
Construction : Viet Tin Phuc Co., Ltd
Photographs : Hiroyuki Oki
Youtube video : https://www.youtube.com/watch?v=NwyZKGIAvkk
Design : Bui The Long – CTA | Creative Architects
Web : ctacta.com.vnAccording to recently published scientific researches, indoor air quality is more polluted than the air outside. Therefore, most of our discussions with the client point to the idea of a house which is able to ‘breathe’ 24/7 by itself. Through the design process, the Wall house was shaped gradually: A house is made up of eight separate spaces surrounded by ordinary walls. These eight blocks are interspersed and intersect at a common space, which is formed by the ‘breathing walls’.The ‘breathing wall’ was consists of 2 elements:The open wall system with Burnt-defective bricks is the first layer to prevent pollution entering from the outside environment. This protection shell is made of hollow bricks that are lined up in the opposite direction of the conventional method of construction. With such arrangement, these hollow bricks afford a circulation of fresh air and natural light into the house.The garden space is a second layer to prevent the negative impact of the external environment on the living space inside. The abundance of greenery helps to clean the air and creates an effective buffer zone.Together, these two protection layers are equivalent to a normal wall but the important difference being they ensure the circulation of air and light, resulting in a healthier living space.1. LocationThe land is one of the gardens which is remaining in Bien Hoa city. It is located next to Dong Nai river.When commenced to study about the concept of the house, we considered how to keep the garden almost the same condition as before.2. EnergyBecause of “the breathing walls” and the alternate skylights, the natural light and fresh air are ventilated constantly, combining with the trees in the garden make the atmosphere in the house always cool and the lighting is harmonious. The house virtually does not need any fans, air conditioners or lighting during the day.The wall surfaces do not use layers of finishing materials, that helps the wall surfaces be airy, not absorb heat and dry quickly after rain, suitable for tropical climates like Vietnam.3. EnvironmentWith features and color randomness, burnt bricks – defective products in the production process once again come to life under a new, more harmonious and environmentally friendly shape. Besides, the ‘breathing wall’ helps to reduce costs, materials during construction, also for future maintenance.Indoor air is always exchanged 24/24, ensuring indoor air is always fresh, light like natural outside, creating a healthy living environment.In the home, common spaces, gardens, pine floors located in central and connected separate spaces vertically and horizontally. That helps is both for ventilation, light, and connection of family members.When the boundaries between solid and hollow, between inside and outside are blurred, a new living space is created, where people are living closer to nature.4. SocietyThe house remains the old lifestyle of the family but it creates more common space, so that family members can see each other easier, the interaction and connection between everyone are also increased.The house still maintains the old lifestyle of family members, but creating more common spaces, making it easier for people to see each other, increasing interaction and connection.The shared study area on the upper floor is opened to the void, connected with the “garden” below, where grandfather is lying in hammock, grandmother is cooking in the kitchen, the children are watching TV. All daily activities take place under the tree shade.
CTA 公式サイト
https://ctacta.com.vn/en/project/wall-house/