
©︎ live out studio
ベトナム中部の都市ダナンに建つ〈テラコッタ・ブレス(Terracotta Breath)〉は、プライバシーの確保と開放感を両立するレンガスクリーンによるファサードが特徴的な2世帯住宅です。
ベトナムの建築ランドスケープ設計事務所 ライブアウトスタジオ(live out studio)が設計しました。
注目ポイント
- 狭小地にありながら、世帯間の程よい距離感を生み出す植栽中庭
- 地元のレンガや竹といった「地産地消」な素材の採用
- プライバシーを守りつつ通風と採光を確保する、熱帯気候に対応したパッシブデザイン
(以下、ライブアウトスタジオから提供されたプレスキットのテキストの抄訳)
©︎ live out studio
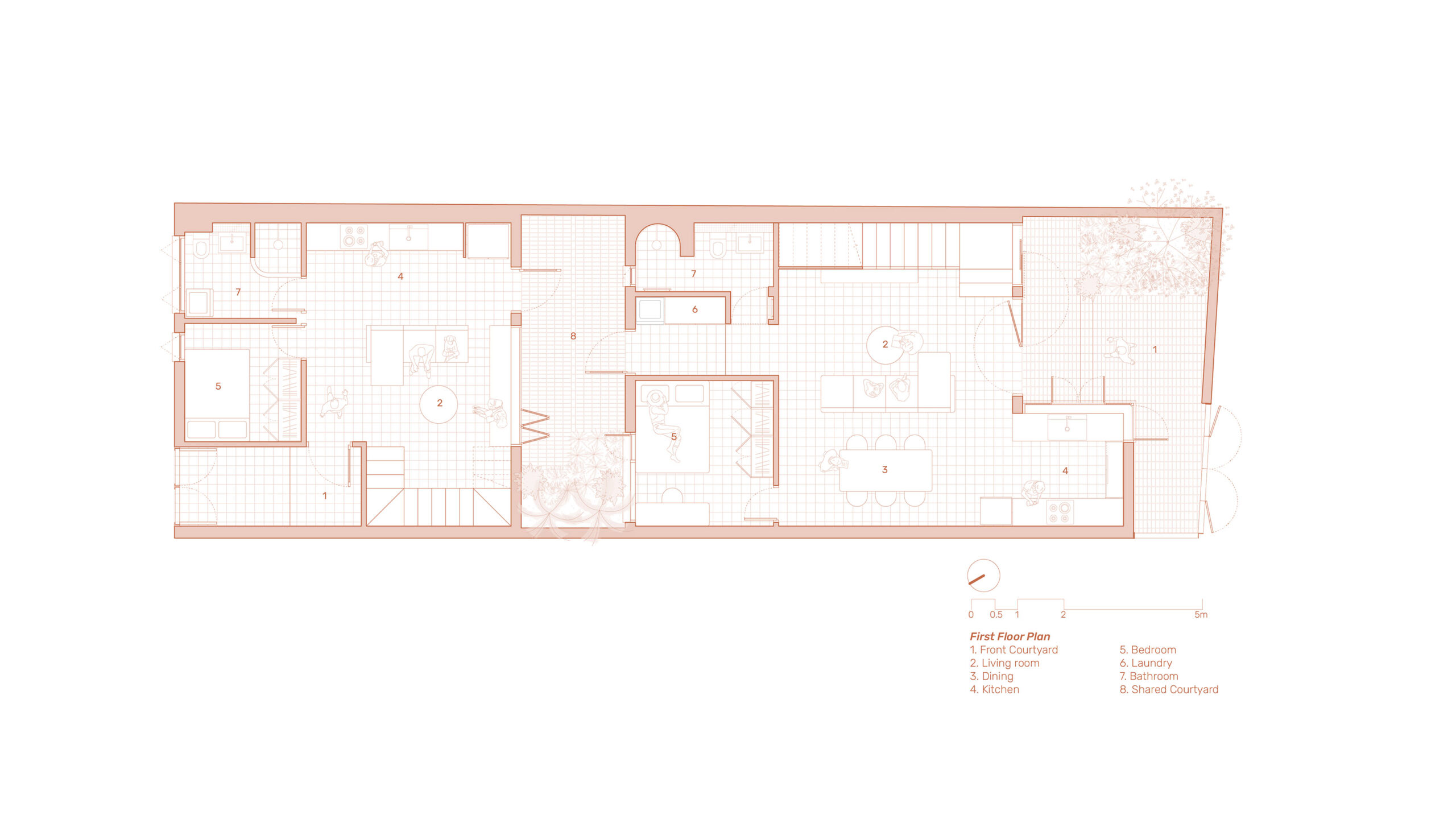
ライブアウトスタジオが手掛けた〈テラコッタ・ブレス〉は、ベトナム・ダナンの狭い路地にひっそりと佇む、優雅さと慎ましさを兼ね備えた2世帯住宅である。前面に親世帯、奥に娘世帯を配置した構成で、7×22mの都市型狭小地に建つ。
両世帯の間には植栽が施された小さな中庭が設けられ、分離と連結という2つの役割を果たす。ここは、日常に生命と光、そして穏やかなコミュニティの息吹をもたらす共有空間となっている。

©︎ live out studio
ベトナムの風水原理を取り入れ、限られた予算内で実現されたこの建築は、熱帯気候に適した地元の職人技とパッシブな気候戦略を称賛するものである。レンガ、竹、木材、土色の漆喰、波板屋根といったアースカラーのパレットが調和し、ファサードから庭の小道までを自然に包み込む。これらは密集した都市環境にシームレスに溶け込む、熱応答性の高い外皮を形成している。
操作可能な煉瓦スクリーン、手編みのロープ手すり、繊細なレンガ積みなど、1つひとつ吟味されたディテールは、謙虚さと洗練さを同時に表現する。〈テラコッタ・ブレス〉は単なる住居を超え、静謐な美、継続性、そして家族の絆が宿る場所となった。それは地域の伝統と意識的な生活に深く根ざしているのである。

©︎ live out studio

©︎ live out studio
通りに面した親の家は、日差しが降り注ぐ前庭で来訪者を迎える。そこは玄関へ至る前の、穏やかな一呼吸となる空間である。角度をつけたレンガ積みと回転窓を備えた質感豊かなファサードは、プライバシーの確保と開放感を両立させている。竹のシェードと土色の波板屋根は、時を経るごとに優雅に風合いを増していくことだろう。

©︎ live out studio

©︎ live out studio
内部空間は、1階のリビングからダイニング、キッチンへと流れるようにつながり、庭に直接開くことでシームレスな屋内・屋外生活を実現した。
彫刻的な階段は、2階の礼拝室へと続く。この静謐な儀式空間は、コミュニティの集いの場としても機能する。中央の中庭を見渡す読書コーナーは、そよ風と日光を取り込む場所である。全体を通してレンガ、竹、木材が温かみと触感、そして時代を超えた背景を形成し、キッチンと浴室のテラコッタ壁タイルはベージュの床タイルと組み合わさり、快適さを高めている。

©︎ live out studio

©︎ live out studio

©︎ live out studio
敷地の奥に位置する娘の家は、妥協のないコンパクトな暮らしの原則を反映している。若い家族向けに設計されたこの住居には、1m²単位で最大限に活用できる適応性の高いオープンプランを採用した。
大型の折り畳み式窓が生活空間と共有中庭の境界を溶かし、新鮮な空気、自然光、緑を室内に取り込むことで、視覚的な空間の広がりを生み出している。

©︎ live out studio

©︎ live out studio

©︎ live out studio
1階にはリビング兼キッチン、コンパクトな寝室、バスルームが配置され、造り付け収納と多目的家具により、家族のニーズの変化に応じて空間の再構成が可能となっている。手編みのロープ手すりで仕上げられた細身の鋼製階段は、祈りや遊びの場となる小さな共用踊り場へと続く。
上階にある明るい2つの寝室は、細い開口部と天窓を通じて通風が確保され、年間を通じて涼しく風通しの良い状態が保たれる。戦略的な窓の配置は、開放感を維持しつつプライバシーを確保し、実際の面積よりも広く感じさせる効果をもたらす。この設計は、入念な計画と屋外空間とのつながりさえあれば、小さな住まいも快適かつ解放的なものになり得ることを示している。

©︎ live out studio

©︎ live out studio

©︎ live out studio
両住宅を通じて、地元のレンガ、竹、木材、土色の漆喰といった素朴な美が一貫して現れている。建築は不必要な装飾を避け、レンガスクリーンを通る移ろいゆく影、竹のシェードが落とす木漏れ日、質感のある壁に触れる緑といった繊細なディテールが、静かな喜びの瞬間をもたらすのである。
最小限の造園でありながら感覚的な細部に富んだ中庭は、2つの世帯を効果的に結びつけ、境界を和らげ、穏やかな時間の経過を刻む。〈テラコッタ・ブレス〉は、謙虚な素材、地元の職人技、そして意識的なデザインがいかにして日常を静かに豊かにする洗練された建築を生み出すか、その可能性を思慮深く示している。
この住まいは、家族がどのように密接に、持続可能に、そして美しく生きられるかについての、ライブアウトスタジオによる静かな宣言といえる。開放的な空間と記憶が染み込んだ壁を通して呼吸する、そんな暮らしの在り方がここにある。

©︎ live out studio


©︎ live out studio

©︎ live out studio

©︎ live out studio

©︎ live out studio

©︎ live out studio

©︎ live out studio

©︎ live out studio

©︎ live out studio

©︎ live out studio

©︎ live out studio

©︎ live out studio

以下、ライブアウトスタジオのリリース(英文)です。
Project Title: Terracotta Breath
Location: Da Nang, Vietnam
Architect & Design: live out studio
Landscape Architect: live out studio
Structural Engineer: Truong Phu Khanh
Contractor: Sigma Construction
Photography: live out studio
Website: https://www.liveoutstudio.com/terracotta-breath
Instagram: @_liveoutstudio_
https://www.instagram.com/_liveoutstudio_/Terracotta Breath by live out studio is an elegant yet humble multigenerational home quietly nestled in a narrow laneway of Da Nang, Vietnam. Designed for two households – the parents’ home at the front and their daughter’s home at the rear – the project occupies a modest 7×22-meter urban plot. Between the two, a small planted courtyard serves as both separator and connector: a shared space that breathes life, daylight, and gentle community into daily routines.
Design Approach
Embracing Vietnamese feng shui principles and delivered on a restrained budget, the architecture celebrates local craftsmanship and passive climatic strategies suited to the tropical climate. A harmonious, earthy palette of brick, bamboo, timber, clay-coloured render, and corrugated roofing naturally envelops the building from façade to garden paths, forming a thermally responsive skin that integrates seamlessly with its dense urban surroundings.
Every carefully considered detail – operable brick screens, handwoven rope balustrades, and delicate brickwork – expresses humility and sophistication simultaneously. Terracotta Breath becomes more than mere shelter; it is a place of quiet beauty, continuity, and familial bonds, deeply rooted in local tradition and mindful living.
The Parents’ House – Tradition and Ritual
Fronting the street, the parents’ house welcomes visitors with a sunlit front garden – a gentle pause before entry. The textured brick façade, with angled bonding and pivoting windows, balances privacy and openness, while bamboo shade and a clay-hued corrugated roof age gracefully over time.
Inside, the first-floor flows from living to dining to kitchen, opening directly to the garden for effortless indoor-outdoor living. A sculpted staircase leads to the second-floor prayer room, a peaceful ceremonial hall that also functions as a community gathering space. A reading nook, overlooking the central courtyard, captures breezes and daylight. Throughout, brick, bamboo, and timber form a warm, tactile, and timeless backdrop, with terracotta wall tiles in the kitchen and bathrooms paired with beige floor tiles to heighten the sense of comfort.
The Daughter’s House – Flexible and Joyful
At the rear, the daughter’s home reflects the principles of compact living without compromise. Designed for a young family, it features an adaptable, open-plan layout that makes the most of every square metre. Large folding windows dissolve the division between living spaces and the shared courtyard, drawing in fresh air, natural light, and greenery to visually expand the interior.
The ground floor accommodates a combined living/kitchen space, a compact bedroom, and a bathroom, with built-in storage and multipurpose furniture allowing the family to reconfigure spaces as their needs evolve. A slender steel staircase, finished with a handwoven rope balustrade, rises to a small communal landing – a space for prayer or play.
Two light-filled bedrooms on the upper floor, ventilated through narrow openings and skylights, remain cool and airy year-round. Strategic window placement ensures privacy while maintaining openness, allowing the home to feel larger than its footprint. The design demonstrates how thoughtful planning and connection to outdoor space can make tiny living both comfortable and liberating.
Meaningful Landscape, Gentle Architecture
Throughout both homes, the simple beauty of local brick, bamboo, timber, and clay render reappears consistently. The architecture avoids unnecessary embellishment, allowing subtle details – the shifting shadows through brick screens, dappled shade from bamboo shade, and greenery brushing against textured walls – to provide moments of quiet delight.
The courtyard, minimally landscaped yet rich in sensory detail, effectively knits the two households together, softening edges and marking the gentle passage of time. Terracotta Breath thoughtfully demonstrates how humble materials, local craftsmanship, and mindful design can generate sophisticated architecture that quietly enhances everyday life.
This home is live out studio’s quiet manifesto on how families might live closely, sustainably, and beautifully, breathing through open spaces and walls infused with memories.
ライブアウトスタジオ 公式サイト
https://www.liveoutstudio.com/terracotta-breath