
©︎ Marcos Zegers
チリのビニャ・デル・マール高地に位置する〈LOS PINOS HOUSE〉は、サンティアゴを拠点とするESPIRAL ARQUITECTOSが設計を手掛けた住宅です。
連続する1220mmピッチの「26の木造フレーム」が、建築の骨格から空間体験、周辺環境への応答までを統合しています。
注目ポイント
- 市販寸法を最大化する1220mmグリッドの木造架構
- フレームを活かした南側(プライバシー)と北側(採光・通風)ファサード
- 施工を合理化・迅速化するフレームの事前組み立て
(以下、ESPIRAL ARQUITECTOSから提供されたプレスキットのテキストの抄訳)

©︎ Marcos Zegers
本プロジェクトは、ビニャ・デル・マール高地の環境と調和し、家族に安らぎの場を提供する住宅として構想されている。この地域は温暖な気候に恵まれ、海岸沿いの水路が松林や数多くの渓谷の間を縫うように流れている。

©︎ Marcos Zegers
設計は構造の観点から構想されており、互いに極めて類似した26のフレーム(軸A~Z)が整然と連なり、最初から最後まで1220mmの等間隔で配置されている。
これらのフレームは、接合部がほのかに浮かび上がる軽やかな構成をもち、住宅の耐力構造を形づくるとともに、そこから建築空間そのものを形成している。
この構造的言語を表現する上で、最も適した素材として木材が選ばれた。1220mm×1220mmのグリッドを定義することで、市販の木材の寸法を最大限に活用している。同時に、相欠きやロック接合といった接合部を用いることで、プロジェクトの計画的要件に応じた空間構成を確実なものとしている。

©︎ Marcos Zegers
フレームのグリッドは荷重を地盤へと伝達するが、各フレームが杭の上に軽く載る形で設置されるため、住宅が景観に与える影響は最小限に抑えられている。フレームは建物の骨格であるにとどまらず、屋内・屋外を問わず常に露わにされ、建築の真摯な表現そのものとなっている。
また、フレームは地形や景観にも適応しており、東西方向に向かって高さを低くしていくことで、寝室エリア(プライベート空間)とリビング・ダイニング・キッチンエリア(パブリック空間)の間に異なる空間性を生み出している。
フレームの事前組立は現場で行われた。これにより組み立て工程が加速し、湿気の影響が低減され、建設プロセス全体の迅速化が図られている。さらに、使用されたすべての資材は国内産であり、建設現場の近くで製造されたものであるため、他の建築資材と比較してカーボンフットプリントの削減を実現している。

©︎ Marcos Zegers

©︎ Marcos Zegers
光に満ちたこれらのメインフレームは、建物の境界部分を戦略的に構成している。南側には近隣とのプライバシーを確保するための不透明な壁が設けられる一方、北側は光と通風を取り入れるための透明な壁となっている。
全体を貫くグリッドに基づき、住宅を取り囲む動線は建物の外側へと張り出して計画され、構造フレームの延長によって支えられている。南側のスロープは、光に満ちた中庭や、内部の景色の一部、そして植栽のアクセントに寄り添うように伸びている。一方、北側の回廊は、敷地の景観と地形に沿って進み、やがて庭へと続く階段や段差へと変化していくのである。

©︎ Marcos Zegers

©︎ Marcos Zegers

©︎ Marcos Zegers

©︎ Marcos Zegers

©︎ Marcos Zegers

©︎ Marcos Zegers

©︎ Marcos Zegers

©︎ Marcos Zegers

GENERAL ISOMETRIC

SITE PLAN

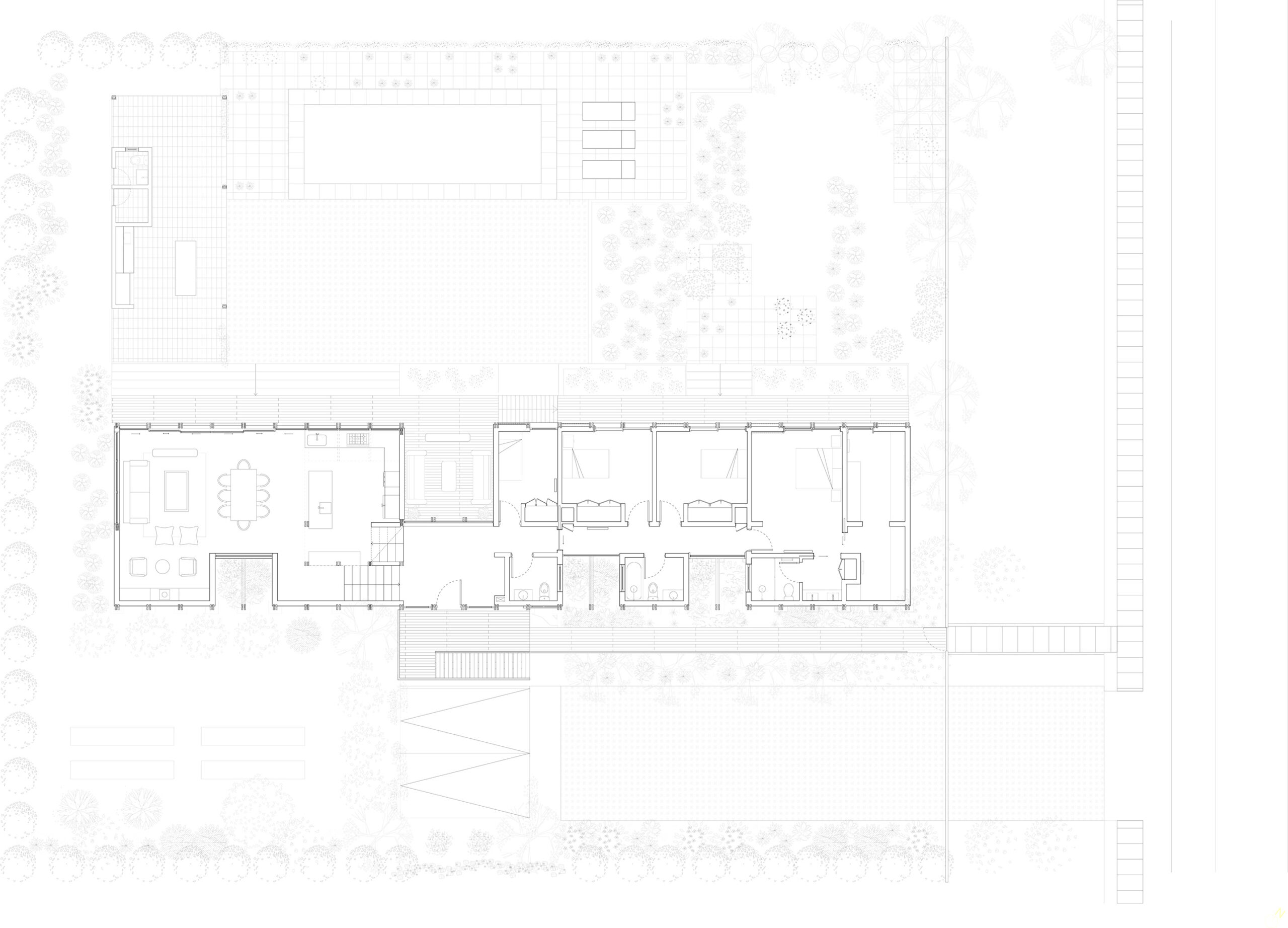
GENERAL PLAN

NORTH ELEVATION

SOUTH ELEVATION

LONGITUDINAL SECTION

PERSPECTIVE SECTION

ISOMETRIC SECTION DETAIL
以下、ESPIRAL ARQUITECTOSのリリース(英文)です。
LOS PINOS HOUSE
Architect: Espiral Arquitectos
Location: Viña del Mar, Región de Valparaíso, Chile.
Built area: 227 m2
Contractor: Ingebo
Structural Engineer: Sebastián Cárcamo
Construction Year: 2024
Photos: Marcos ZegersThe project is conceived as a house to provide shelter for a family, in harmony with the environment of the upper area of Viña del Mar. Its temperate climate and its coastal watercourse infiltrates between pine forests and numerous ravines.
The design is conceived from its structure, in an organized succession of 26 frames (axes A – Z), very similar to each other, and that are spaced 122 cm. from one to another, from beginning to end.
These frames, with a very light, veiled composition of knots and joints, give body to the load-bearing structure of this house, from which the architectural space is configured.
Wood emerges as the most suitable material to work the tectonic language. A grid of 122 cm by 122 cm is defined, to optimize the commercial lengths of the wood and work with “half-wood” joints or locks, to ensure the spatial configuration according to the programmatic needs of the project.
The frame grid transmits its loads to the ground, each resting lightly on piles, minimizing the impact of the house on the landscape. In addition to being its bones, they are the sincere expression that is always shown, both inside and outside the house.
The frames also adapt to the topography and the landscape, decreasing in height, in the east/west direction, generating a different spatiality between the sleeping area (private) and the living/dining/kitchen area (public).
The pre-assembly of the frames were done on site, accelerating the assembly and assembly process, reducing the amount of humidity and speeding up the construction process. Likewise, all the materials used were manufactured domestically and close to the construction site, reducing the carbon footprint compared to other construction materials.
These primary bones, full of light, fill their edges strategically, with opaque walls to the south to generate privacy with the neighbors, and become transparent to the north to allow light and ventilation to enter.
In the same grid, the circulations that surround the house are projected towards the exterior of the house, supported by the projection of the same structuring frames, the ramp to the south accompanies the courtyards of light, partial interior views and accents in the vegetation. The corridor to the north accompanies the landscape and the topography of the terrain, transforming itself into stairs and steps leading to the garden.
ESPIRAL ARQUITECTOS 公式サイト
https://espiralarquitectos.com