
© Chen Hao

© Chen Hao
中国・杭州市に建つ〈西渓・ゴールドマイ・ブックストア(Xixi Goldmye Bookstore)〉は、市民の憩いの場として人気の西渓湿地公園に20年前に建てられたオフィスビルを改修した書店です。
中国の建築事務所 アトリエ・ウェン・アーキ(Atelier Wen’Arch)が設計しました。
注目ポイント
- 本と自然体験の同時提供する透明で開放的な書店
- 空間に浮かぶリング状の中2階「ブックタワー」
- 床から沈み込み湿地と一体化する「水辺のパビリオン」
- 柱の間に寄生する本棚「ブックビーム」
(以下、アトリエ・ウェン・アーキから提供されたプレスキットのテキストの抄訳)

© Chen Hao

© Chen Hao
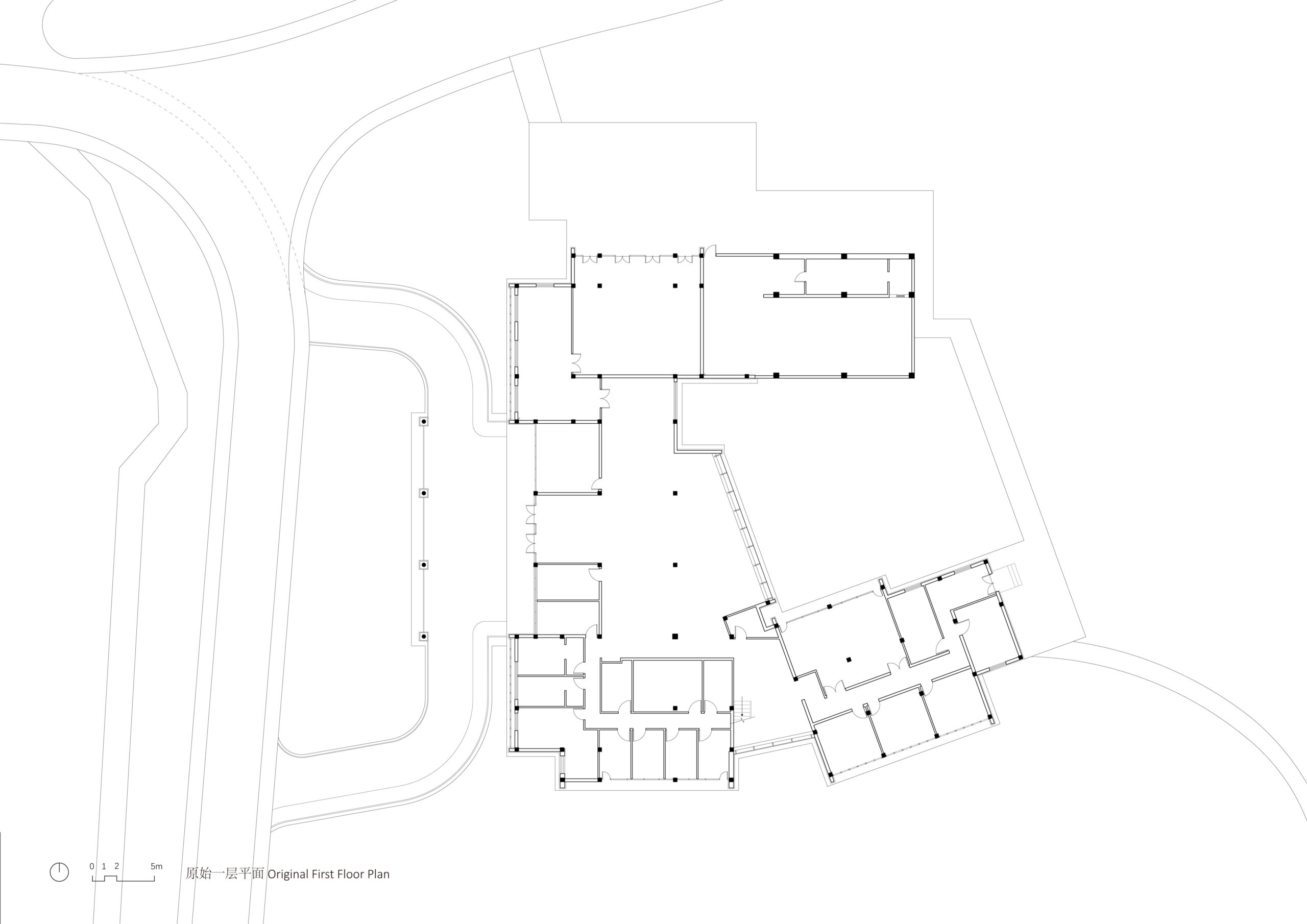
本プロジェクトは、中国・杭州の西溪湿地に位置するフディ地区北端に立地する。既存建物は20年前に建設されたオフィスビルであり、U字型の対称レイアウトに複雑な機能空間が組み込まれていた。
建物は湿地上に高架で建ち、3つの棟が閉鎖的なウォーターコートヤードを囲む構成であった。今回の計画は、この建物を書店に転用するためのファサード改修とインテリアデザインを目的としている。

© Chen Hao

© Chen Hao
1階は水庭を囲む水平につながった空間として構成されている。西側の縦長メインスペースには書籍展示・販売エリア、北棟にはカフェを併設した読書スペース、南棟には読書サロンを配置し、外部階段で2階のランドスケープテラスへと接続している。
すべての囲壁を撤去した後、残ったのは無秩序なコンクリートフレームの集合体であった。新たに導入した一連の構造的介入によって秩序を与え、自然と深く結びついた空間へと変貌させた。

© Chen Hao
複雑な既存屋根梁やスラブに対応するため、設備配管を収める天井システムを導入し再編成した。
元の構造は段差のあるボリュームを支える立柱群へと分解され、西側屋根ボリュームの簡素化と、凹んだファサードコロネードの採用により、中央軸の対称構成は水平に浮遊するボリュームへと変化し、公共性を高めている。

© Chen Hao
また、曲線状の車寄せをもつエントランスプラットフォームには、コンクリートストリップによる角度の異なる歩行者通路を設置し、車道中心の構成から、多様なスケールと方向性をもつ入口空間へと転換した。

© Chen Hao
既存の6×6mの構造グリッドに合わせ、木製の二重梁システムを導入した。各二重梁はコンクリート柱列を挟み込み、水庭に直交する水平秩序を形成し、内外をつなぐ。
構造用集成パイン材の梁は隠しプレートで柱に固定され、一部は外部へキャンチレバー状に突き出している。二重梁間の隙間は空調の戻りダクトや照明のチャネルとして機能する。

Axonometric – Original Structural Frame

Axonometric – “Structures”
木材梁によって形成された水平に広がる空間には、垂直方向の空間要素として「ブックタワー」と「水辺のパビリオン」を挿入し、自然景観と書店空間の立体的な融合を実現している。

© Chen Hao

© Chen Hao
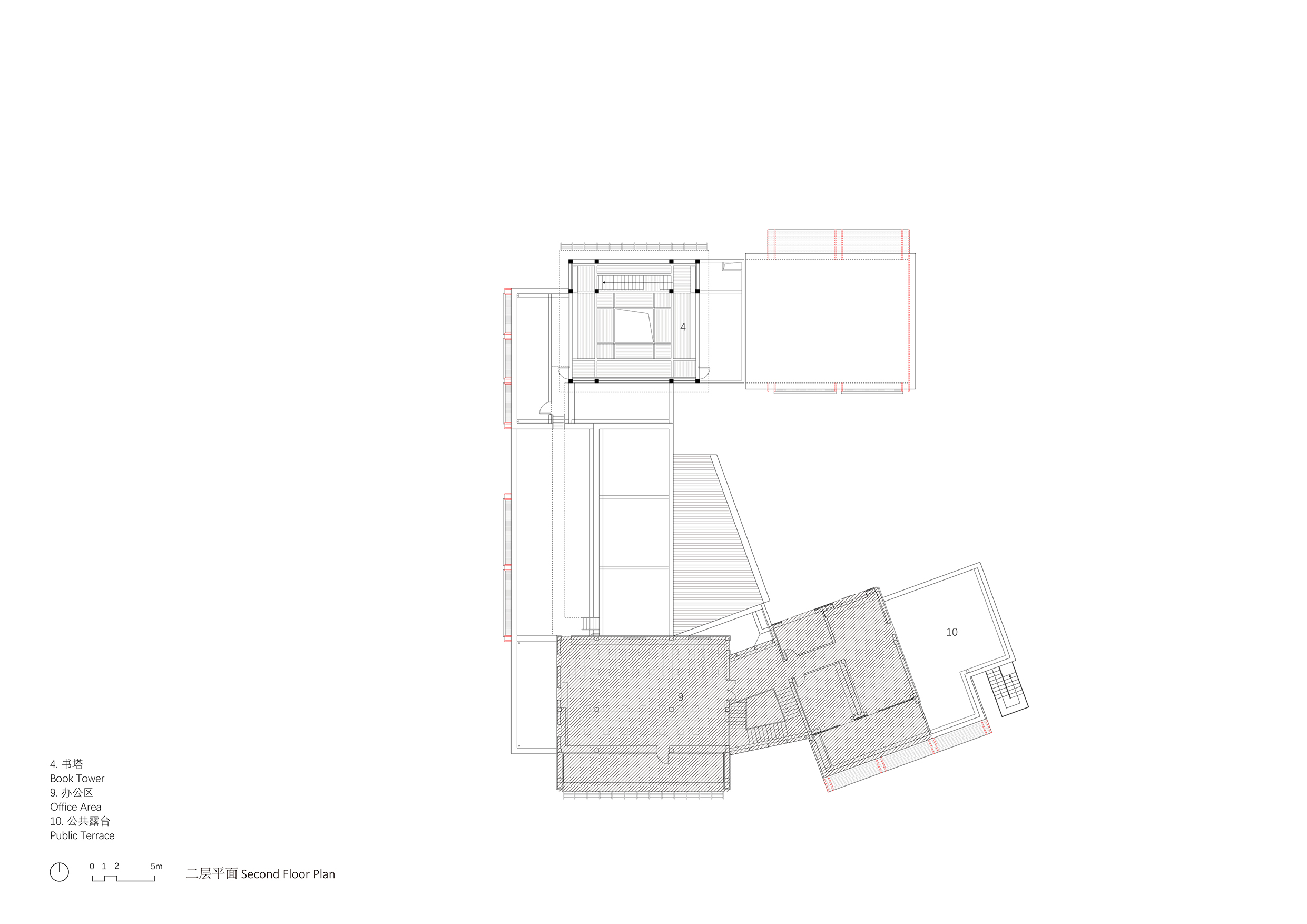
南西角の大きなボリュームには、二重リング状に積層された中2階をもつ「ブックタワー」を設けた。断面では劇場のような形態をもち、段差のあるレベルが異なる高さの読書スペースを生み出し、東向きの窓は湿地の緑景を切り取るフレームとなる。

© Chen Hao

© Chen Hao
中2階構造はコンクリート柱間に交差配置した鋼梁グリッドで構成されている。梁の上面は木製床と面を揃えており、木梁と統一感をもつ水平要素として視覚的に認識される。
層状に連なる梁は、空間に自然光を導入しつつ、人々のシルエットを捉え、浮遊する風景として表現している。

© Chen Hao

© Chen Hao
水庭に面した既存の不規則なガラスボリュームは、単勾配屋根のパビリオンに置き換えられた。平面的な対角線による力学を利用し、徐々に高さが低くなる傾斜屋根を形成した。
床スラブの一部を撤去し、水際に近づくことのできる沈床エリアを設け、屋根と床の段差によって湿地と一体化する空間を創出した。

© Chen Hao

© Chen Hao
凹んだ段差のある座席は湿地に向いた読書スペースを提供し、3方向から座ることができる。U字型平面の転換点に位置する「水辺のパビリオン」の空間は庭に「譲渡」され、湿地が内部空間に与える空間的インパクトを強化している。
水辺のパビリオンの屋根はグレーのチタン亜鉛パネル、天井は銀色塗装で仕上げられ、水面のきらめきを内部に映し出す。毎朝、水辺のパビリオンの広大なキャノピーはきらめく水面の波紋を反射し、湿地が繊細で詩的な方法で内部に「入り込む」ような効果を生み出す。

© Chen Hao

© Chen Hao
宋時代の水辺の軒の装飾建築要素である「張日棚」(日除けスクリーン)を「二次軒」として現代的に再解釈した。木製の梁が建築の境界を突破し、外側に突き出している。

© Chen Hao

© Chen Hao
水辺に配置された中間的な建築要素として、二次軒は2つの機能を果たす。
まず、強い直射日光を遮りつつ、銀色のキャノピーが柔らかい拡散光を反射し、快適な室内読書環境を生み出す。次に、低い軒は外を歩く観光客や水庭の両側の建物からの視覚的な妨害を遮断し、内部の視線を湿地の水面へと下向きに誘導し、建物が水面上を浮遊する空間的認識を強化する。

© Chen Hao

Process Sketch by Shen Wen
木材の梁から吊り下げられた二次軒、柱の間にある高床式のテーブルとベンチ、段差のある三次元なガラスファサード、完全に開閉可能な折りたたみ窓が、建築と自然の間に複数の中間領域を創造する。

© Chen Hao

© Chen Hao
本棚として、柱の間に寄生する構造要素として「ブックビーム」を設置した。これにより、来館者は本と周囲の風景の両方を見ることができる。構造には水平の木製梁に垂直のステンレス鋼板を層状に重ねた複合構造を採用し、最大6mのスパンを実現した。
6つのブックビームのグループが柱の間で段差を付けて配置され、木製梁システムと組み合わさることで豊かな視覚効果を生み出している。これらは白い空間に浮遊し、曖昧な境界をもつフィールド群を定義し、自然へと開かれた空間を形成している。

Axonometric – Book-Beams
西溪湿地は市民の散策やサイクリングの場として機能している。本計画はそこに透明で開放的な書店を挿入することで、本と自然を同時に楽しむ都市の公共空間を創出した。
湿地内の透明で開放的な書店は、人々が本と自然を同時に楽しむことができる公共空間として、都市の自然生活に埋め込まれた場所を実現した。

© Chen Hao

© Chen Hao

© Chen Hao

© Chen Hao

© Chen Hao

© Chen Hao

© Chen Hao

© Chen Hao

© Chen Hao

© Chen Hao

© Chen Hao

© Chen Hao

Site Plan

Original First Floor Plan

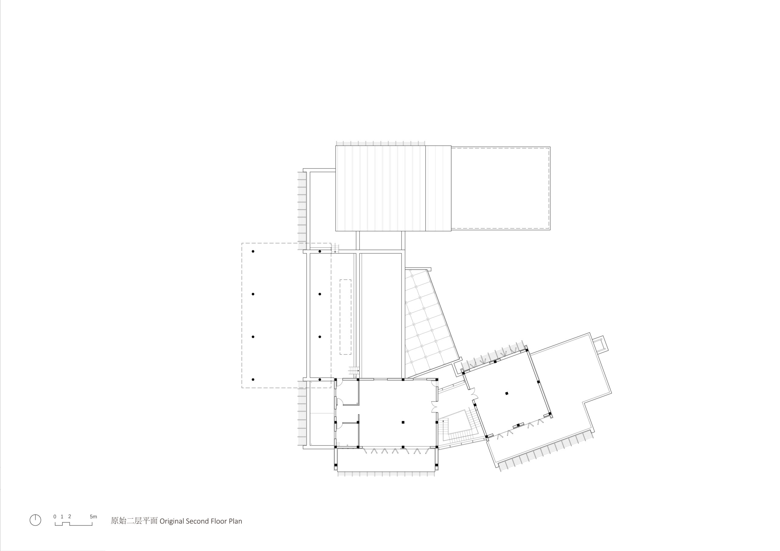
Original Second Floor Plan

First Floor Plan

Second Floor Plan

West Elevation

Section of the Water Courtyard

Section

Section

Section
以下、アトリエ・ウェン・アーキのリリース(英文)です。
Atelier Wen’Arch: Xixi Goldmye Bookstore
The project is located at the northern starting point of Fudi, Xixi Wetland. The original building was an office building twenty years ago – a U-shaped symmetrical layout with a combination of functional spaces in an intricate volume. The building is elevated above the wetland, with a closed and negative water courtyard surrounded by three wings. The design required a façade renovation and interior design to transform it into a bookstore.
The first floor is planned as a horizontally connected space that embraces the water courtyard. The longitudinal main space on the west side houses the book display and sale area, while the north wing serves as a coffee reading area. The south wing accommodates a reading salon, which connects to the landscaped terrace on the second floor via an external staircase.
Stripped of all enclosing walls, what remains is a set of disordered and meaningless concrete frame structures. The intervention of a series of new “structures” imposes a new order to the originally chaotic structure, transforming it into spatial fields which are deeply connected to nature.
Disintegration of the Original Framework
In response to the original complex roof beams and slabs, a ceiling system accommodating MEP equipment was introduced to reorganize them. The original framework was disintegrated into a forest of standing columns supporting the staggered volumes. The simplified adjustment of the roof volume on the west side, along with the recessed colonnade on the façade, transforms the originally symmetrical central-axis composition into a horizontally floating volume, thereby enhancing the building’s sense of publicness. On the existing curved driveway of the main entrance platform, a staggered-angle pedestrian walkway made of concrete strips has been laid, transforming the original vehicular platform into an entrance space with varied scales and shifting orientations.Reconstruction of the Timber Beams
In response to the original 6×6 meter structural grid, a timber double-beam system was introduced. Each timber double-beam continuously clamps the rows of concrete columns, establishing a horizontal spatial order that is perpendicular to the water courtyard and connects the inside and outside of the U-shape.The structural glued laminated pine beams are structurally anchored to the concrete columns via concealed plate joints, while cantilevering outward at various points. The gaps between the double beams also serve as integrated channels for air-conditioning return and column-aligned lighting.
In the horizontal spatial fields formed by the timber beams, the design further introduces two vertical spatial disturbances: one is the book tower leading to the skylight, and the other is the waterside pavilion leading to the wetland, enabling the natural landscape to engage with the bookstore space in a more three-dimensional way.
The Elevated Book Tower
A “Book Tower” is inserted into the tall volume at the southwest corner. The two rings of stacked and nested mezzanines form a theater-like pattern in section. The staggered levels create sit-and-read spaces at varying heights, while the window facing east frames distant views of greenery from the wetland.The mezzanine within the book tower breaks the conventional treatment of floor slabs. A grid of steel beams in a crisscross layout is suspended between the concrete columns to form the mezzanine structure. The top surfaces of the I-beams are flush with the wooden flooring, allowing them to visually read as horizontal elements that share the same material quality as the timber beams. At the end of the longitudinal space, the beams cascade downward in layered sequences, channeling natural light. Within the book tower, the silhouettes of people are captured by the horizontal timber beams and become a floating scenery.
The Sunken Waterside Pavilion
The original irregular glass volume facing the water courtyard was replaced with a single-sloped roof. The geometric power generated by the diagonal line of the floor plan was fully utilized, naturally forming a sloped roof that gradually lowers in section. At the same time, part of the original floor slab was removed to create a sunken area close to the water. The lowered roof and sunken floor work together to form a “waterside pavilion” that integrates seamlessly with the wetland. The recessed stepped seating offers a reading field facing the wetland, allowing people to sit on three sides. At the turning point of the U-shaped plan, the pavilion is “ceded” to the water courtyard, which not only produces a horizontal directional twist in the interior space but also introduces a vertical force guiding toward the wetland’s water surface, thereby enhancing the spatial impact of the wetland on the interior.The roof of the waterside pavilion is clad in grey titanium-zinc panels, while the ceiling is uniformly sprayed with silver metallic paint. This design both emphasizes the spatial power of the sloping roof as an object pressing down on the water and highlights the subtle response of the silver material to the reflection of ambient light, which is suitable for use as a backdrop for mapping and presenting the shimmering textures of natural water ripples. Each morning, the vast canopy of the waterside pavilion reflects shimmering water ripples, allowing the wetland to “enter” the interior in this subtle and poetic way.
Suspended Secondary Eaves
The 《Yingzao Fashi》records a type of Song-style waterfront eave decorative architectural component – “zhangri ta” (sun-shading screen). The design is a contemporary reinterpretation of this traditional prototype. The timber beams break through the architectural boundary, cantilevering outward. On both sides, the secondary eaves are hung from the timber beams by upward tension rods, while a downward slanted rod in the center provides additional support, thus forming a unique waterfront architectural interface. The secondary eaves adopt a material construction similar to that of the waterside pavilion.As intermediary architectural elements situated at the water’s edge, the secondary eaves have two functions. First, they regulate interior lighting: while blocking harsh direct sunlight, the silver-toned canopy reflects soft diffused light, creating a more comfortable indoor reading environment. Second, they adjust the spatial scale of the interior: the lowered eaves block out visual disturbances from the passing tourist along the Fudi and the buildings on both sides of the water courtyard, guiding the interior gaze downward toward the wetland water and reinforcing the spatial perception of the building floating above water.
The secondary eaves suspended by timber beams, the elevated tables and benches between the columns, the staggered three-dimensional glass façades, and the fully openable folding windows together create multiple in-between fields between architecture and nature.
Interlaced Book-Beams
The bookshelves are designed as specific structural elements that parasitize between the columns—transparent “book-beams” that allow readers to see both the books and the surrounding landscape. In collaboration with structural engineer Zhang Zhun, we created the “book-beams” structural installation. Horizontal timber beams are layered with vertical stainless steel plates to form a composite structure. The glued-laminated timber and oriented strand board are combined into an I-shaped cross-section, which carries a structural span of up to 6 meters. The vertical stainless steel plates link the timber beams into an integrated structural unit, thus realizing torsion resistance in-plane. The book beams are suspended by structural rods on either side and fixed to the columns, thereby realizing a “beam” typology load-bearing behavior.Six groups of book-beams are staggered between the columns, forming a rich interlacing effect together with the system of timber beams. They float in the white space, defining a cluster of fields with ambiguous boundaries that open towards nature.
As a secondary urban wetland in Hangzhou, Xixi Wetland serves as a daily place for walking and cycling among local residents. We have built a transparent and open bookstore within the wetland for people to read books and nature at the same time, becoming a public place embedded in the natural life of the city.
Project Name: Xixi Goldmye Bookstore
Project Type: Architectural Renovation / Interior Design
Design Firm: Atelier Wen’Arch
Lead Architect: Shen Wen
Design Team: Shen Wen, Wang Weishi, Yi Shihao (on-site), Sun Huizhong
Structural Consultant: Zhang Zhun (AND Office)
Lighting Design: DLX Lighting Design
MEP & Structural Design: Shanghai Zunbang Architectural Design Co., Ltd.
Clients: Hangzhou Xixi Wetland Operation and Management Co., Ltd.; Goldmye Culture&Media Co.,Ltd.Design Period: 09. 2024 – 11. 2024
Construction Period: 02. 2025 – 04. 2025
Project Location: North Gate of Xixi National Wetland Park, Hangzhou
Building Area: 880 m²