Photography by Laurian Ghinitoiu
アメリカのカリフォルニア州に位置する〈ロバート・デイ・サイエンスセンター(Robert Day Sciences Center)〉は、クレアモント・マケナ大学に建てられた、コラボレーションと交流を促進する拠点です。
ビャルケ・インゲルス(Bjarke Ingels)率いるビャルケ・インゲルス・グループ(Bjarke Ingels Group、以下BIGと表記)による、ロサンゼルスで初めて実現したプロジェクトです。
注目ポイント
- 各階を45度回転させて積層し、中央の吹き抜けとテラスを創出
- 全階層を視覚的につなぎ、学際的交流を促す社交空間「アトリウム」
- トラス構造が生み出す力学的リズムと内外の連続性
- キャンパスのマスタープラン第1号プロジェクトとして、既存モールの拡張や動線戦略に寄与
(以下、BIGから提供されたプレスキットのテキストの抄訳)
Photography by Laurian Ghinitoiu
Photography by Laurian Ghinitoiu
クレアモント・マケナ大学に新たに建てられた〈ロバート・デイ・サイエンスセンター〉は、学際的な統合と交流を最大限に高める建築である。
延床面積135,000ft²(約12,540m²)の建物は、各階が異なる方向に回転し、研究室、教室、キャンパス全体を結びつけ、人とアイデアの流れを生み出す。
Photography by Laurian Ghinitoiu
Photography by Laurian Ghinitoiu
このセンターは2020年に開所し、1,400人の学生コミュニティに貢献している。設計はBIGによるもので、同事務所がロサンゼルスで初めて実現させたプロジェクトである。同時に、クレアモント・マケナ大学のロバーツ・キャンパスのためにBIGが策定したマスタープランの最初の成果でもある。
この計画は、中央モールと隣接するスポーツボウルを拡張し、統一感あるキャンパスを形成することを目指している。協力者には構造エンジニアのSaiful Bouquet、ゼネコンのKPRS Construction、建設管理者のIDS Real Estate Groupが名を連ねる。
Photography by Laurian Ghinitoiu
Photography by Laurian Ghinitoiu
クレアモント・マケナ大学学長のヒラム・E・チョドシュ(Hiram E. Chodosh)は次のように語る。
「この壮麗な建築は、人類、私たちの脳、そして地球の幸福において重要な局面を迎える高等教育の未来を示すものである。科学分野の内部や、人文・社会科学といった他分野との間で学問を分断したままでは、現代の課題に応えることはできない。」
「〈ロバート・デイ・サイエンスセンター〉とクラヴィス統合科学部は、施設とプログラムを融合させ、多分野の専門性、問題解決型学習、応用倫理学、そしてAI時代における人間知性を結集している。回転するスタック構造は学問分野の交差点で学ぶ機会を生み出し、木材は社会的温もりを育み、ガラスは障壁を打ち破る。仕上げと公共アートは人間性を鼓舞する。これはクレアモント・マケナ大学のための彫刻された宝石であり、時代を超える象徴である。」
Photography by Laurian Ghinitoiu
Photography by Laurian Ghinitoiu
バルディ山を望む〈ロバート・デイ・サイエンスセンター〉は、キャンパスの東端、ナインスストリートとクレアモント大通りの角に位置し、新たな校門として機能すると同時に、他の学術部門との強固な連携を戦略的に促進する。
15フィート(約4.6m)もの高さに浮かぶ印象的なキャノピーが学生、教授、職員、訪問者を迎え入れ、生命と動きに満ちた天窓付き多層アトリウムへと誘う。
Photography by Laurian Ghinitoiu
Photography by Laurian Ghinitoiu
BIG創設者兼クリエイティブディレクターであるビャルケ・インゲルスは次のように語る。
「〈ロバート・デイ・サイエンスセンター〉は、コンピュータサイエンス、データサイエンス、ライフサイエンスを統合環境で結集させる。クレアモント・マケナ大学のマスタープランで最初に完成したこの建物は、ノースモールをジグザグ状のモール群へと拡張し、キャンパス全体の動線分配機能を果たす。」
「私たちはこの科学センターを、モールと同じ方向に回転させた一連の平行な建築ボリュームが並んだものと構想し、その間に公共空間を配置した。個々の建築ボリュームは合理的で柔軟性があり、コンピューターラボやウェットラボとして機能するが、その間の開放的なアトリウムはピラネージ的な社交空間となり、あらゆる階層の学生、教員、同僚、教授の姿を見渡すことができる。」
「したがって、ウェットラボやコンピュータラボ、教室で多くの時間を過ごしていても、学生同士の間で火花が散る機会は数多く存在し、従来の知識のサイロを越えたアイデアの交換が促進される。その意味で、〈ロバート・デイ・サイエンスセンター〉は、あらゆる種類の知識とあらゆる種類の学生・教師が1つの複合的な三次元学習環境で融合する『るつぼ』となるのである。」
Photography by Laurian Ghinitoiu
Photography by Laurian Ghinitoiu

Diagram
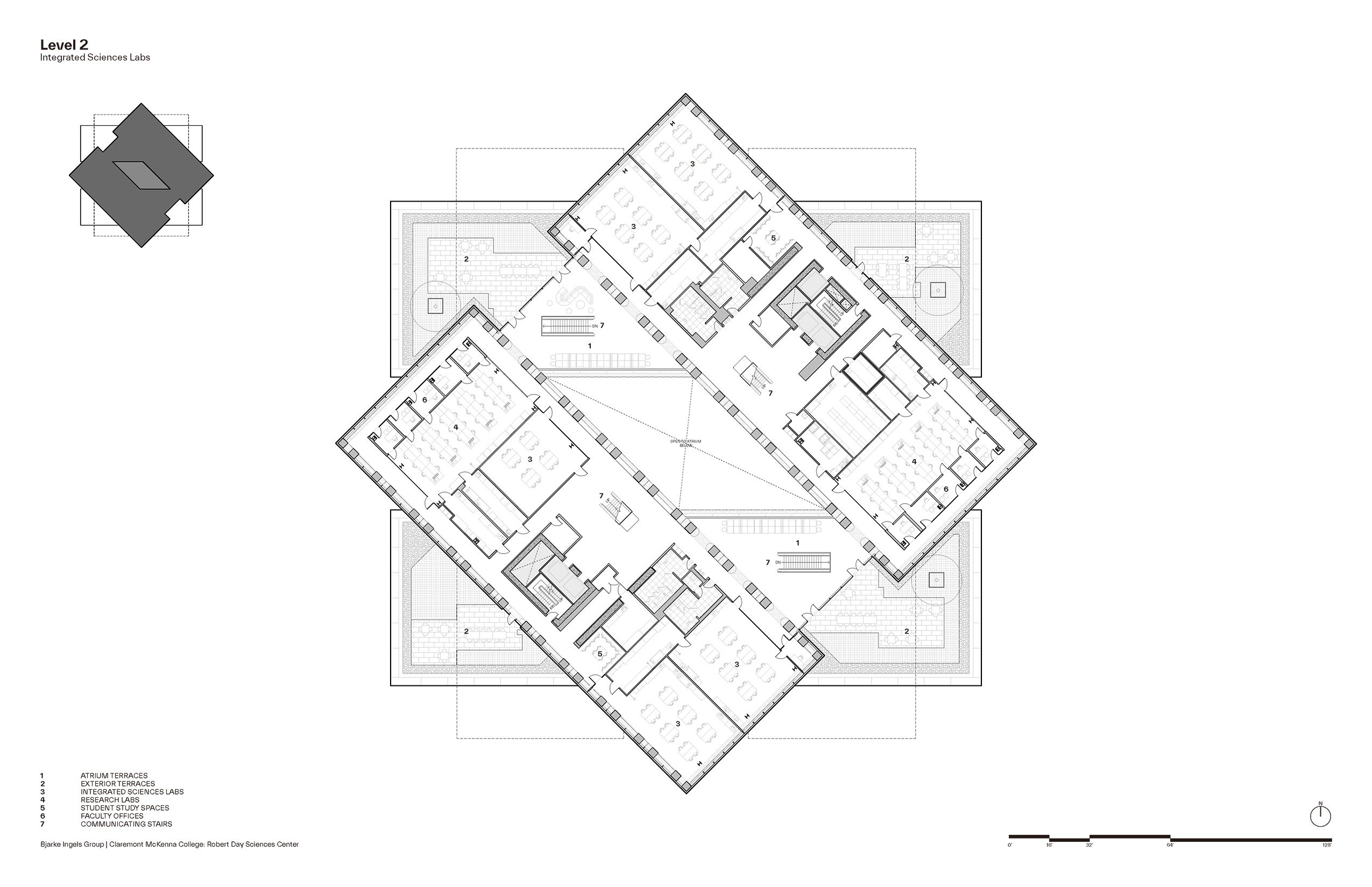
建物の構造は2つのボリュームを3層に積み重ねた設計となっており、それぞれのボリュームは下層階から45度回転している。回転したブロックの隙間が建物中心部に全層吹き抜けのアトリウムを形成し、全階層から教室や研究スペースを直接見渡すことが可能となる。
アトリウム内の開放空間はコラボレーションを促し、センターの建築的・教育的アプローチを体現している。ファサードにはガラス繊維強化コンクリート製の型枠仕上げパネルを採用した。木材のような質感をもちながら、現代的な研究所に必要な耐久性と耐火性を備えている。屋根に設置された11,000ft²(約1,020m²)の太陽光パネルは年間約342MWhの発電量を提供する。
Photography by Laurian Ghinitoiu
Photography by Laurian Ghinitoiu
内部では各階が下層階と連結され、ダグラスファーで覆われた三角鋼製トラスで支えられている。トラスの質感、リズム、幾何学模様は外部にも連続し、内外のシームレスな移行を実現する。アトリウムには社交と憩いのための大型階段が設けられ、1階と2階、カフェを結び、建物中心部に活気あるハブを形成している。
地上約9mに浮かぶ造形作家ダミアン・オルテガ(Damien Ortega)の作品「磁場」は、地球の磁気圏を精巧に表現した彫刻である。18個の金属リングと1,476個の鮮やかなガラス球で構成され、軌道上を浮遊する。
Photography by Laurian Ghinitoiu
Photography by Laurian Ghinitoiu
1階には大規模なセミナースペース「マケルウィー・フォーラム(McElwee Forum)」などが配置され、上層階には教室、研究スペース、ドライラボとウェットラボ、量子ライブラリー、メイカースペースが設けられている。
教室は建物の外周に沿って配置され、絵のように美しい景色を望みながら、下層のアトリウムや社交スペースとは分離されている。
Photography by Laurian Ghinitoiu
Photography by Laurian Ghinitoiu
建物全体では、温かみのある木製の仕上げとコンクリート床が、大学の象徴色である赤と金色でアクセントを添えられている。BIGが設計した内部空間は、再構成可能な教室やモジュラー式座席などの要素を取り入れ、将来の科学的革新に対応できるよう設計されている。
各角部に設けられた屋上テラスからは、北側の山々、西側のキャンパス、東側のスポーツ施設まで360度のパノラマビューが広がる。在来植物で緑化されたこれらの多目的スペースは、屋外教室・自習室・交流の場として活用される。〈ロバート・デイ・サイエンス・センター〉はLEEDゴールド認証取得を目指している。
Photography by Laurian Ghinitoiu
Photography by Laurian Ghinitoiu
BIGのパートナーであるレオン・ロスト(Leon Rost)は次のように語る。
「チェス盤上のクイーンのように、〈ロバート・デイ・サイエンス・センター〉はキャンパスに新たな可能性を開く。ノースモールを延伸し、斜めモールの起点となり、東側スポーツキャンパスへのアクセスを開放する。ロサンゼルス事務所と並行して成長したこのプロジェクトは、共有のマイルストーンとなった。キャンパスの建築的礎であり、カリフォルニアの建築家としての我々の進化を証明するものである。」
Photography by Laurian Ghinitoiu
Photography by Laurian Ghinitoiu
昼から夜へと移り変わる中、〈ロバート・デイ・サイエンス・センター〉は科学的アイデアと研究、革新が交わる灯台であり続ける。
サンガブリエル山脈を背景に照らし出される姿は、クレアモント・マケナ大学の東の玄関口として機能すると同時に、キャンパス全体を活気ある学びと発見の場へと変貌させるのである。
Photography by Laurian Ghinitoiu
Photography by Laurian Ghinitoiu
Photography by Laurian Ghinitoiu
Photography by Laurian Ghinitoiu
Photography by Laurian Ghinitoiu
Photography by Laurian Ghinitoiu
Photography by Laurian Ghinitoiu
Photography by Laurian Ghinitoiu
Plan Floor 0
Plan Floor 1
Plan Floor 2
Plan Floor 3
Section East-West
Section North-South
Elevation East
Elevation West
Elevation North
Elevation South
Detail Axon
Detail Section
Axon Southwest
以下、BIGのリリース(英文)です。
ROBERT DAY SCIENCES CENTER ADVANCES COMPUTATIONAL GENE, BRAIN & CLIMATE RESEARCH AT CLAREMONT MCKENNA COLLEGE
The new Robert Day Sciences Center at Claremont McKenna College maximizes multidisciplinary integration and interaction: each level of the 135,000-sq-ft building is oriented in a different direction, channeling the flow of people and ideas between the labs, classrooms, and the surrounding campus.
Commissioned in 2020, the Robert Day Sciences Center serves a community of 1,400 students. The center is BIG’s first built project in Los Angeles, and the first completed building in the BIG-designed masterplan for CMC’s Roberts Campus, which envisions a more unified campus shaped by a series of buildings that extend the central mall and adjacent sports bowl currently under construction. Collaborators on the Sciences Center include Saiful Bouquet as Structural Engineer, KPRS Construction as General Contractor, and IDS Real Estate Group as Construction Manager.
“This gorgeous architecture amplifies and elevates a revolutionary vision for higher learning at a critical moment in the well-being of our species, our brains, our planet. We can no longer rely on siloed disciplines within the sciences or between the sciences, social sciences, and the humanities to meet the challenges and opportunities of our time.
The Robert Day Sciences Center and Kravis Department of Integrated Sciences fuse facility and program, with multi-disciplinary expertise, problem-based learning, applied ethics, and higher human intelligence in an era of AI. Bjarke’s rotating stacks create opportunities to learn at the intersections. The wood fuels our social warmth. The glass cuts through the barriers. The beautiful finishes and spectacular public art inspire our humanism. This is a carved jewel for Claremont McKenna College. A gem for the ages.” – Hiram E. Chodosh, President, Claremont McKenna College
With views of Mount Baldy, the Robert Day Sciences Center is positioned on the eastern edge of campus at the corner of Ninth Street and Claremont Boulevard – creating a new gateway to the school and strategically facilitating strong connections to other academic departments. A dramatic 15-ft hovering canopy welcomes students, professors, staff, and visitors, drawing them into a sky-lit multilevel atrium buzzing with life and movement.
“The Robert Day Sciences Center brings together computer science, data science, and life sciences in one integrated environment. As the first completed building of our master plan for Claremont McKenna, it extends the north mall into a zigzag of malls, becoming a distributor of flows for the entire campus.
We imagined the Sciences Center as a series of parallel building volumes side by side – with a public space in between – that are rotated in all the same directions as the mall. Even though each of the individual building volumes are rational, flexible, and capable of being computer labs or wet labs, the open atrium in between becomes a Piranesian social space where you can see fellow students, faculty, colleagues, and professors from every level. So even if you spend most of your time in a wet lab, computer lab, or classroom, there will still be many opportunities for sparks to fly between you and your fellow students, stimulating the exchange of ideas across the traditional silos of knowledge. In that sense, the Robert Day Sciences Center becomes a crucible where all of the different kinds of knowledge and all of the different kinds of students and teachers come together in one complex, three-dimensional learning environment.” – Bjarke Ingels, Founder & Creative Director, BIG
The building’s structure is designed as a stack of two volumes, with each pair rotated 45 degrees from the floor below. The voids of the rotated blocks create the full-height atrium at the heart of the building, which provides direct views into classrooms and research spaces from all levels. The open spaces within the atrium invite collaboration, embodying the center’s architectural and educational approach. The facade incorporates board-formed panels of glass fiber reinforced concrete, which create a wood-like texture while providing the durability and fire resistance required for a modern laboratory. The roof’s 11,000 sq ft of solar panels provide about 342 megawatt hours of energy production per year.
Inside, each level bridges the level below, supported by triangular steel trusses clad in Douglas fir. The texture, rhythm, and geometry of the trusses carry through to the exterior, creating a seamless transition from inside to outside. The atrium features a large staircase meant for socializing and relaxing that connects the first two floors and a café, creating a lively hub in the center of the building.
Suspended 30 ft in the air, Magnetic Field by Damien Ortega – an intricate sculpture of Earth’s magnetosphere – floats in orbit, composed of 18 metal rings and 1,476 vibrant glass spheres.
The ground floor includes the McElwee Forum, a large seminar space, and imaging suites, while classrooms, research spaces, dry and wet labs, the Quantum Library, and a maker’s space are located on the upper floors. Classrooms are organized around the perimeter of the building, offering picturesque views while keeping them separate from the atrium and social spaces below.
Throughout the building, warm wood cladding and concrete floors are accented with the school’s signature colors of red and gold. The BIG-designed interiors are designed to accommodate future scientific innovation, incorporating elements such as reconfigurable classrooms and modular seating.
Eight outdoor rooftop terraces located on the corner perimeters of each ‘bar’ offer sweeping 360-degree views of the mountains to the north, the campus to the west, and the sports bowl to the east. These multifunctional spaces, landscaped with native flora, are designed to be used as outdoor classrooms, study areas, or places to meet. The Robert Day Sciences Center is aiming for LEED Gold.
“Like a well-placed queen on the chessboard, the Robert Day Sciences Building unlocks new moves for the campus – extending the north mall, initiating a diagonal mall, and opening access to the east sports campus. Growing in parallel with our Los Angeles office, it has become a shared milestone – an architectural cornerstone for the campus and a testament to our team’s evolution as California architects.” – Leon Rost, Partner, BIG
As day turns to night, the Robert Day Sciences Center continues to serve as a beacon for the confluence of scientific ideas, research, and innovation. Standing illuminated against the backdrop of the San Gabriel Mountains, the center not only anchors CMC’s eastern gateway, but transforms the surrounding campus into a vibrant, inspiring place of discovery.
Photography by Laurian Ghinitoiu
PROJECT FACTS
Name: Claremont McKenna College Robert Day Sciences Center
Size: 135,000 sq ft
Location: Claremont, California, United States
Client: Claremont McKenna College
Design Architect and Architect of Record: BIG
Collaborators: Saiful Bouquet, Acco Engineered Systems, Atlas Civil Design, MRY, Rosendin Electric, WSP USA, Jacobs, ARUP, KGM Architectural Lighting, Heintges, KOA, EWCG, KPRS, Herrick, Hortus Environmental Design, IDS Real Estate Group, Kleinfelder, Salamander, Code Consultants IncBIG TEAM
Creative Director: Bjarke Ingels
Partner-in-Charge: Leon Rost
Project Manager: Aran Coakley
Technical Lead: Amir Mikhaeil
Project Leader: Lorenz Krisai
Team: Abigail Meyer, Ahmad Tabbakh, Alan Maedo, Ana Luisa Pedreira, Beat Schenk, Bernardo Schuhmacher, Bianca Blanari, Casey Tucker, David Holbrook, David Iseri, Dylan Hames, Gus Steyer, Hector Romero, Jan Leenknegt, Janie Louise Green, Joe Veliz, Kam Chi Cheng, Minjung Ku, Neha Sadruddin, Pooya AleDavood, Richard Cagasca, Ryan Duval, Seung Ho Shin, Sue Biolsi, Terrence Chew, Thomas Guerra, Thomas McMurtrie, Tracy Sodder, Vi Madrazo, Won Ryu, Yanan Ding, Yasamin Mayyas, Yen-Jung Alex Wu, Yiling Emily Chen
BIG 公式サイト
https://big.dk/projects/claremont-mckenna-college-14115