
Photo: Jiri Hronik

Photo: Jiri Hronik
チェコのフルムに位置する〈Family house with a greenhouse〉は、1階が住宅、2階が温室という構成が特徴的な建築です。
プラハを拠点に活動する建築事務所 RicharDavidArchitektiが設計した建築であり、インテリアデザインはJana + Hana Medkovyが手掛けました。
注目ポイント
- 機能を分離しながらも共生させる生活空間と栽培空間
- コストや効率性など、屋上温室という合理的な配置戦略
- それぞれの部屋と庭をつなぐ全周囲テラス
- 異なる構造システムで構築する住居と温室
(以下、RicharDavidArchitektiから提供されたプレスキットのテキストの抄訳)

Photo: Jiri Hronik

Photo: Jiri Hronik
本プロジェクトは3段階から成る計画である。第1段階では、施主の旧住居の改築に着手した。コスト試算を行った結果、容積を半分に抑えつつも一切の妥協を排した新築案を提示した。
第2段階では、約800m²の好立地な敷地を取得し、工事を開始した。その過程で、施主は隣接する果樹園付きの土地を追加で購入し、総敷地面積は3100m²に拡大した。

Photo: Jiri Hronik
現在は第3段階、すなわち最終段階に取り組んでいる。最終的に、果樹園の中央に建物を配置し、すべての部屋から庭の景観を楽しめる構成が最適であると判断した。
温室を屋根上に設けたのは、住居からの眺望を妨げず、温室基礎の施工費を抑え、住宅内部の余熱を有効に活用しつつ、屋内から濡れることなく直接アクセスできるという、4つの利点を考慮した結果である。

Photo: Jiri Hronik
本住宅には、一般的な住宅に見られるような明確な階層構造は存在しない。玄関ドアやホールも設けず、直接リビングや寝室に入る構成となっている。
テラスからは鋼製階段を介して温室へ直接アクセス可能な独立した入口が設けられている。建物を囲むように歩行可能なテラスが配置されており、張り出した屋根によって全面が覆われている。各部屋はスライド式の大開口窓を介してテラスへ直接出入りすることができる。

Photo: Jiri Hronik

Photo: Jiri Hronik
建物は主に、1階の居住空間とその上に位置する温室という2つの部分で構成されており、両者は構造的にも機能的にも分離されている。
下層部の主要な耐力要素は、露出コンクリート製の梁で連結された鋼製柱と、それを補強する組積造壁である。天井はKVH部材で構成されており、可能な限り構造体を可視化することを設計方針としている。
温室の構造は鋼製部材で構成され、極力繊細な断面を用いることを意図した。これらは現場で組み立てられている。

Photo: Jiri Hronik
建物は通気性のある外壁を備えた低エネルギー煉瓦造住宅として設計されている。内部の支持蓄熱壁には砂岩を仕上げ材として用い、熱交換器付き薪ストーブを設置している。
外壁は垂直に配置されたカラマツ板によって通気層を確保し、自然な空気循環を促している。カラマツは無塗装のまま使用されている。

Photo: Jiri Hronik
開口部にはアルミ製サッシと三重断熱ガラスを採用し、枠色はナチュラルアルミ仕上げとした。温室の構造体は白色亜鉛メッキ仕上げの鋼製である。
温室の屋根には、全長約8.5mの4室中空半透明ポリカーボネート板を分割なしで施工している。居住空間の床はエポキシ樹脂仕上げとし、温室内部にもエポキシコーティングを施している。


Photo: Jiri Hronik

Photo: Jiri Hronik

Photo: Jiri Hronik

Photo: Jiri Hronik

Photo: Jiri Hronik

Photo: Jiri Hronik


Photo: Jiri Hronik

Photo: Jiri Hronik

Photo: Jiri Hronik

Photo: Jiri Hronik

Photo: Jiri Hronik

Photo: Jiri Hronik

Site plan

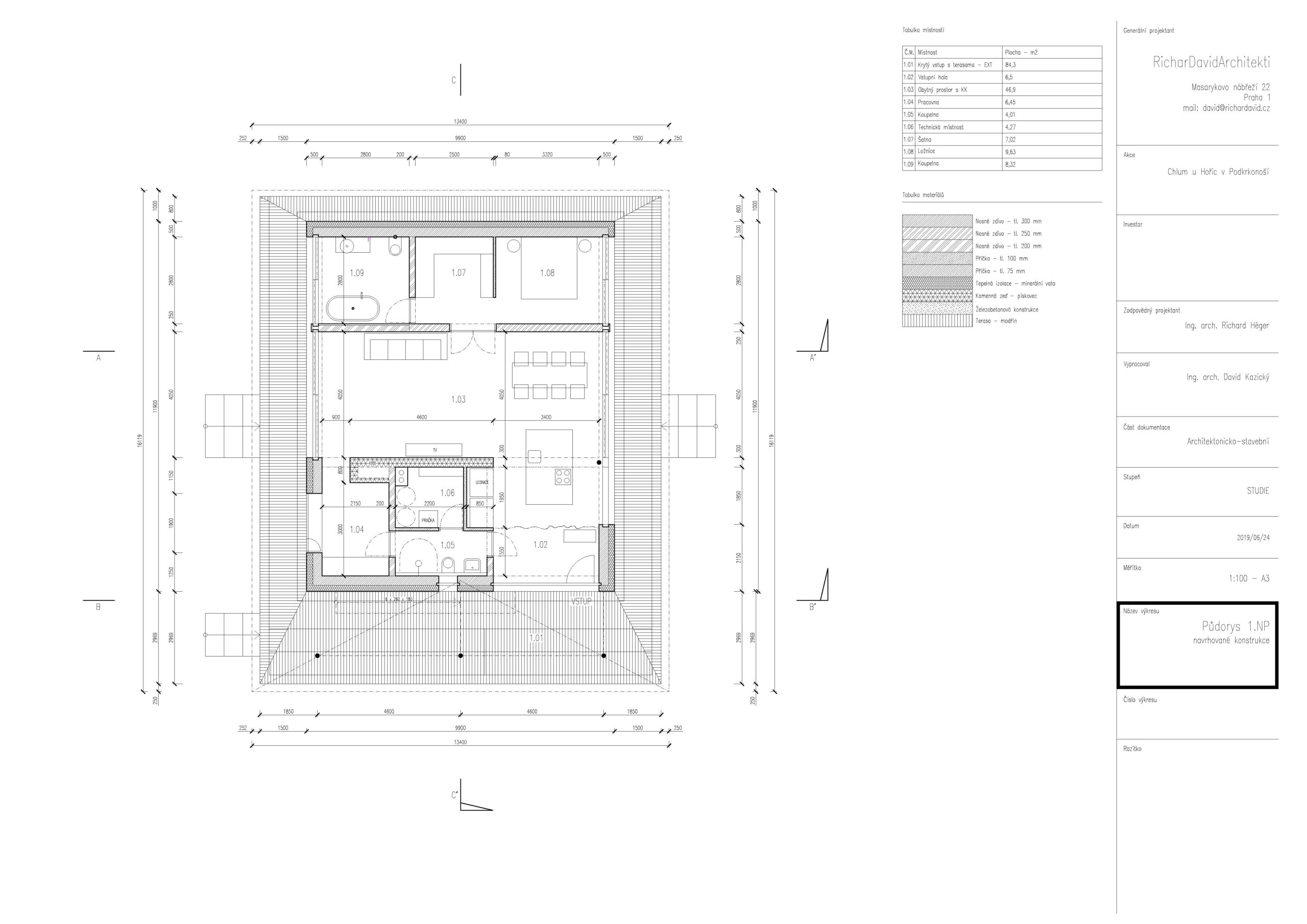
Plan

Section
以下、RicharDavidArchitektiのリリース(英文)です。
Project:
Greenhouse / Family house with a greenhouseLocation:
Chlum u Hořice v PodkrkonošíInvestor:
PrivateSupplier:
AVASTA s.r.o.Completion:
2018Author:
Architect: David Kazický
Interior: Jana Medková, Hana MedkováConcept:
This project has three stages.
The first one was reconstruction of their old house. We did some costs calculations and propose them to build new house with half volume and without any compromises.
Stage two:
They find nice plot about 800 m2, they bought it and we start work on it. During the process, the investor managed to buy an adjoining plot with orchard and the total area of land was 3100 m2.
Now we stared the third and last stage. That resulted in us deciding that it would be best to build in the middle of the orchard and have a view on the yard from every room in the house.
The greenhouse was placed on the roof for several reasons:1. Not spoil the view from the house
2. Save money on the foundation construction
3. Use of residual heat from the house
4. Access the greenhouse with the dry feetLayout:
There is no typical hierarchy of the house. There is no one main entrance door and hall. You are entering directly living area or bedroom.
From the terrace, there is also a separate entrance to the greenhouse through a single-arm steel staircase.
Around the entire perimeter of the house is a walk-on terrace which its entirely covered by the overhanging roof.
Every room in the house can be directly accessed through terrace, thanks to sliding windows.Construction:
The house consists of two main parts: Residential on the first floor and a greenhouse situated on the floor above it.
Both floors are structurally and functionally separated.The main load-bearing element of the lower part is masonry wall complemented by steel columns bound by an exposed concrete bond beam. The ceiling is made of KVH profiles.
The general aim was to keep the constructions visible, where and If possible.
The structure of the greenhouse is made of the steel profiles. The intention was to use the most subtle profiles for that purpose. Structure wais mounted on site.Materials:
The building is designed as a low-energy brick house with ventilated facade
Interior supporting accumulation wall is then lined with sandstone with Wood stove with exchanger
The facade is ventilated thanks to vertically laid larch planks, allowing air circulation.
Larch is used in its natural form.
Windows are designed as aluminum with tree-layered insulated glass/triple glazing. The frame color is natural aluminum. Greenhouse structure is steel – mounted with white galvanized finish.
4-chamber hollow translucent polycarbonate is used for the greenhouse roof structure/ is used as a roofing for the greenhouse. It’s not divided in length, making each individual board approx. 8.5m in length.The floor in the lower/ living area is an epoxy trowel, while the epoxy coating was choice for the greenhouse.
Technology:
Electric boiler
Wood stove with exchanger
Underfloor heating
RicharDavidArchitekti 公式サイト
https://www.richardavid.cz/projects/5774521