
Cinema ©︎ Wang Yun

Reading Room ©︎ Wang Yun
〈Down in the Clouds〉は、中国浙江省の村の農地にたたずむ、鋼製コンテナとインフレータブル(空気膜)構造を組み合わせた3つの建築です。
蘇州のデザインスタジオPractice on Earthとメルボルンの建築スタジオIncrements Studioが設計しました。
注目ポイント
- 「雲の中へ(Down in the Clouds)」をコンセプトとした、空気膜を用いた3種の空間
- クラウド・カフェ:雲の下に生まれるカフェ空間
- 傾いたシネマ:球体がコンテナを押し上げる上映室
- 秘密の読書室:雲の間へと分け入る秘密の部屋
(以下、Increments Studioから提供されたプレスキットのテキストの抄訳)

Site Photo ©︎ Wang Yun
海岸線の景観で知られる泗洲頭鎮(ししゅうとうちん)。その内陸部、低い丘陵地帯に墩岙村(どんおうむら)は静かに佇んでいる。「岙」という地名は、山々に囲まれた小さな谷間を意味する言葉である。プロジェクトの構想にあたり、私たちは丘陵に抱かれた農地の静謐さと安らぎを捉えることこそが重要だと考えた。
そこで、典型的な建築的枠組みを当てはめるのではなく、一連の短い詩やイラストレーションを通じて場所の情感を表現することを試みた。この抽象的かつ還元的なアプローチは、身体と自然の関係性を再考させ、そこに軽やかで遊び心のある性質を持たせる可能性を明らかにする。

Site_Aerial Photo
新たな構造物は、古い看板、作業小屋、倉庫といった、畑に点在していた遺構の跡地に計画された。限られた工期と予算内で実現可能な素材体系を検討した結果、鋼製コンテナとインフレータブル(空気膜)構造の組み合わせを選択した。
この手法は柔軟性と迅速な設置を可能にする。一見相容れないこれら2つの要素を統合することで、遊び心にあふれ、かつ個性的な空間体験を創出する方法を探求したのである。

Cafe ©︎ Wang Yun
最初の敷地は農地の入口に位置し、長年使われていなかった古い作業小屋があった場所である。この場所は、ゲートウェイとして新たな「ランドマーク」を自然と求めていた。「雲(クラウド)」というコンセプトは、視覚的に象徴的で強い公共性を発揮するだけでなく、インフレータブル構造の下に大きなキャンチレバー空間を生み出す。この覆われたエリアは、周囲の農地環境を阻害することなく、様々な活動に対して日陰と雨よけを提供する。

Cafe_Existing Conditions

Cafe_Diagram
通常、鋼製コンテナは輸送ロジスティクスの要件を満たすため、標準化されたサイズで工場生産される。しかし本プロジェクトでは、標準的な「既製品」のコンテナをそのまま再利用するのではなく、標準化された鋼製部品を用いてカスタマイズし、居住可能な構造物として機能するよう適応させた。

Cafe ©︎ Wang Yun

Cafe ©︎ Wang Yun
この3×3×8mの標準タワーユニット内には、「雲」の下の屋外プラットフォームにサービスを提供するコンパクトなコーヒーステーションを配置した。塔の頂部には展望デッキを設け、訪問者は「雲」を通り抜けてアクセスすることで、周囲の山々や田園風景を一望できる特別な視点を得ることができる。

Cafe ©︎ Wang Yun
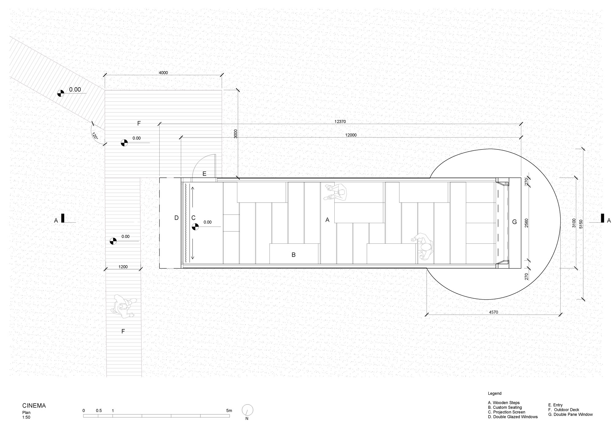
第2の介入は、古い看板が設置されていた場所で行われた。クライアントの要望は、冬や夏といった季節を問わず、訪問者が休息や交流を楽しめる空調管理されたサロン空間をつくることであった。ここでも農地への影響を最小限に抑えるため、コンテナを15度傾斜させ、二点支持の構造とすることで、内部にスクリーン上映用の階段状空間を創出した。

Cinema_Existing Conditions

Cinema_Diagram
支持柱は特注のインフレータブル・リングで覆われている。これは構造要素や空調のアクセスポイントを隠すだけでなく、遊び心のある視覚的効果も加えている。重厚なコンテナが、柔らかな風船のような形状にさりげなく寄りかかっているように見え、スケール感と素材感に奇妙な違和感を生み出しているのである。

Cinema ©︎ Wang Yun

Cinema ©︎ Wang Yun
上映室は30m²強とコンパクトだが、スクリーン、プロジェクター、スピーカー、空調システムが統合され、設備は充実している。壁と天井の仕上げには、吸音材として機能する木毛セメント板を採用した。
床面には標準的な木製階段に加え、人体にフィットするよう人間工学に基づいて設計された曲線状の背もたれを特注した。訪問者が快適にリクライニングできるこのディテールは、「傾いたシネマ」のくつろいだ精神性と完全に調和している。

Cinema ©︎ Wang Yun

Cinema ©︎ Wang Yun
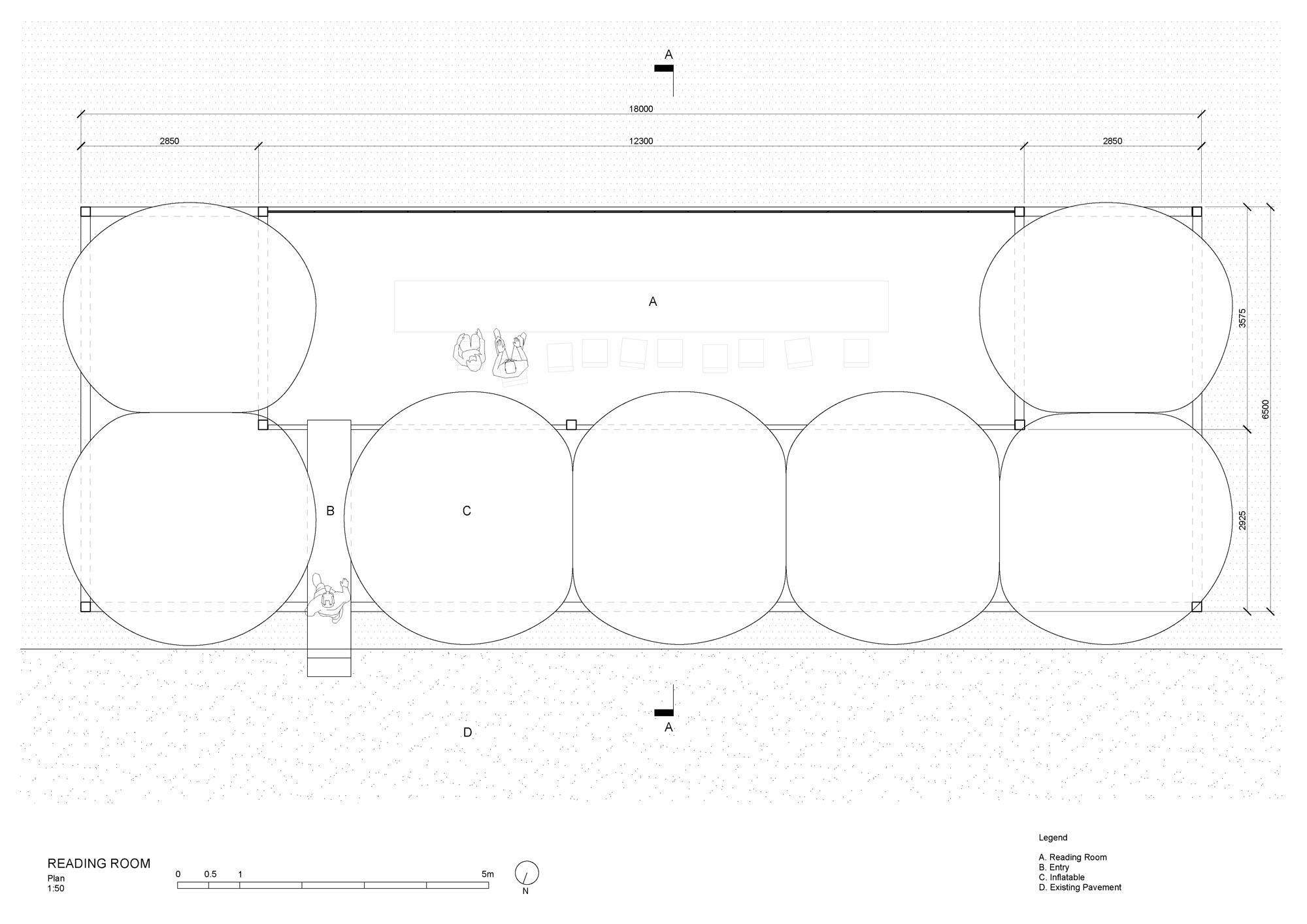
3つ目の敷地は丘の麓に位置する、もう1つの使用されていない作業小屋だった。静かで開放的な眺望をもち、農地を見下ろす読書空間へと変貌させるには理想的な場所である。ここでは、インフレータブル構造とコンテナを結びつける第3の方法を模索した。

Reading Room_Existing Conditions

Reading Room_Diagram
稲作地帯を見下ろす鉄骨フレーム内に設置された、7つの球体インフレータブルがその解決策となった。これらの柔らかな球体は扉のない円形の「壁」を形成しており、訪問者は球体を押し分けるようにして入室する。
後に多くの訪問者が「身体が触れて初めて、球体が固体ではなく柔らかく弾む風船だと気づいた」と語った。この触覚的な驚きは、従来の建築材料では得難い体験である。

Reading Room ©︎ Wang Yun

Reading Room ©︎ Wang Yun
読書室は半屋外空間であり、アルミパネルの天井、ステンレス製のデスク、グレーチングの床といった金属素材が、インフレータブルの滑らかで白く丸みを帯びた形状と鮮烈な対比を見せ、冷たい厳格さと遊び心のある柔らかさが融合した空間となっている。
気温が高い時には球体が膨張して張りが強くなり、南側からの明るい日光はフィルターを通して屋根下に入り込み、半反射性の天井面と相まって独特の影の効果を生み出す。

Reading Room ©︎ Wang Yun

Reading Room ©︎ Wang Yun

Reading Room ©︎ Wang Yun
インフレータブルは通常、一時的なインスタレーションに用いられることが多いが、本プロジェクトでは建築の恒久的な構成要素として構想された。この型破りなアプローチは、耐久性、メンテナンス、そしてコンセプトの造形的表現において重大な課題を提示した。これらに対処するため、実施段階においてチームは多大な研究時間を費やし、製造業者と緊密に連携しながら複数回の試作を重ねた。

Cafe ©︎ Wang Yun

Cafe_1:20 Prototype Timelapse
現場条件の違いにより、3カ所それぞれに異なる膨張方式を採用した。
「クラウド・カフェ」では、その巨大なサイズと悪天候時の収納必要性から、常時送風式のPVCメッシュシステムを採用した。高さ2mの側面と100平米の底面に沿って通気口を設け、2台の送風機で内部圧力を維持する。これにより、穿孔が生じても安定性を確保でき、密閉式インフレータブルに比べて材料重量を半減させている。
初期の1:20模型から工場での1:4試作、そして最終的な1:1実物大建設に至るプロセスは、大規模な空気膜の実現可能性を検証するだけでなく、調達ベースのプロジェクト設計において不可欠な、現場組立手順の反復リハーサルとしても機能した。

Cafe_1:4 Prototype Timelapse

Cafe_1:1 Prototype Construction Timelapse
一方、「シネマ」と「読書室」のインフレータブル構造は完全な球体であるため、滑らかで光沢のある表面を実現すべく、シームレス溶接を施した気密性の高い厚肉PVCを採用した。
シネマ用インフレータブルの1:2プロトタイプ製作中には、素材と空気の総重量による顕著なたるみや、膨張後のリング状テール部の密閉確保の困難さなど、予期せぬ問題が複数発生した。これらの問題は、製造業者との複数回のスケール調整と製造工程の改良を通じて徐々に解決されていった。

Cinema_Inflatable Prototyping Process

Prototype Construction Sequence
主要構造体とインフレータブルはプレファブリケーションであったが、天井、手すり、インフレータブルの設置など、現場での作業は依然として必要とされた。初期のミスや不慣れな工法により、図面以上にコミュニケーションが重要となった。約1カ月後、結果は計画通りのものとなり、当初は懐疑的であった現地の職人たちも「本当に見栄えが良い」と認めるに至った。
小規模ながら、このプロジェクトは農業・文化観光分野における私たちのチームの総合的な実践の場となった。この分野の多くのプロジェクト同様、経験を通じた学びがあり、途中の課題や修正が伴った。最終的には、関係者の協力により、「雲の中へ(Down in the Clouds)」という名称にふさわしい、遊び心にあふれた楽しい空間が実現したのである。

Cafe ©︎ Wang Yun

Cinema ©︎ Wang Yun

Reading Room ©︎ Wang Yun

Cafe_Plan

Cafe_Section

Cinema_Plan

Cinema_Section

Reading Room_Plan

Reading Room_Section
以下、Increments Studioのリリース(英文)です。
Down in the Clouds
猜一建筑 (Practice on Earth) + Increments StudioIntroduction
Dun’ao Village (墩岙村) is nestled inland among low hills in Sizhoutou Town, known for it’s coastal scenery. The term “岙 (ào)” embodies the notion of a small valley enclosed by mountains. At the conception of the project, we believed it was important to capture the sense of serenity and peace among the farmlands surrounded by hills. Instead of typical architectural frameworks, we wanted to express these sentiments through a series of short poems and illustrations. This abstract and reductive approach prompted a reconsideration of the relationship between the body and nature, revealing the potential for it to be lighthearted and playful in nature.
The new structures are located in place of various abandoned structures that stood in the field, including old billboards, utility buildings and storage buildings. We investigated material systems that were both available and feasible for the project timeline and budget, ultimately selecting a combination of steel containers and inflatables. We believe these systems allowed for flexibility and quick installation. This prompted us to explore how these seemingly disparate elements could be integrated to create playful and distinctive spatial experiences.
The Cloud Cafe
The first site is located at the entrance to the farmland, where an old utility building had long been unused. The site naturally called for a newly defined “landmark” at its gateway. The Cloud serves not only as a visually iconic concept with strong public appeal, but also creates a large cantilevered space beneath the inflatable. This sheltered area offers shade and rain protection for various activities—without disturbing the surrounding farmland.
Steel containers are traditionally prefabricated off-site into standardized sizes to meet the requirements of their contents and transportation logistics. Instead of reusing a standard ‘off-the shelf’ container, the containers for this project were customized with standardized steel components and adapted to function as occupiable structures. Within this 3×3×8m standard tower unit, we designed a compact coffee station to serve the outdoor platform beneath the “cloud.” A viewing deck atop the tower—accessible only by passing through the “cloud”—offers a unique perspective of the surrounding mountains and rice fields.
The Leaning Cinema
The second intervention is located at an existing billboard. The client wanted to create a climate-controlled salon space where visitors could rest or gather across all seasons, even through winter and summer. Once again prioritizing minimal impact on the farmland, we tilted the container at a 15-degree angle so that the structure only uses two points of support, creating a slope for stepped interior space for screenings. These supporting columns are wrapped in custom inflatable rings—not only concealing the structural elements and AC access points, but also adding a playful visual twist: the heavy container appears to lean casually against soft, balloon-like forms, creating curious unfamiliarity in scale and material.
The screening room covers just over 30 square meters—small, but fully equipped. We integrated the screen, projector, speakers, air conditioning, and other systems into the design. Wood wool panels serve both as acoustic treatment and as decorative finishes for the walls and ceiling. On the floor beyond the standard wooden steps, curved backrests were custom designed with ergonomic forms, shaped to fit the body, allowing visitors to recline comfortably. This detail aligns perfectly with the laid-back spirit of the “Leaning Cinema.”
The Secret Reading Room
The third site is another unused utility building, located at the foot of the hills. Quiet and with an open view, it was ideal for transforming into a reading space above the farmland. For this site, we sought a third way to connect inflatable forms with containers. We arrived at seven spherical inflatables placed within a steel frame elevated above the rice fields. These soft spheres form a circular “wall” without a door, where visitors must part them to enter. Many visitors later remarked that it wasn’t until their bodies touched the inflatables, that they realized the spheres weren’t solid, but soft, bouncy balloons. This tactile surprise is something conventional building materials rarely offer.
The reading room is a semi-outdoor space, where the metallic materials—aluminum panel ceiling, stainless steel desks, and gridded floor panels—contrast strikingly with the inflatable’s smooth, white, and rounded form, creating a blend of cool austerity and playful softness. In hot weather, the spheres become especially plump and taut due to the higher temperature. Bright sunlight from the south side, once filtered, enters beneath the roof and, together with the semi-reflective ceiling surface, creates a unique shadow effect.
Technique, Experiment & Local Construction
Inflatables are often used in temporary installations, but in this project, they were conceived as a permanent part of the architecture. This unconventional approach posed significant challenges in terms of durability, maintenance, and the formal expression of the concept. To address these, our team dedicated substantial time to research during the implementation phase and carried out multiple rounds of prototyping in close collaboration with the manufacturer.
Due to differing site conditions, we used different inflation methods for each of the three points. For the Cloud Cafe its large size and need to retract in bad weather led us to adopt a continuously inflated PVC mesh system. With air vents along its 2m-high sides and 100㎡ base, two blowers maintain internal pressure—ensuring stability even if punctured, and cutting material weight in half compared to sealed inflatables.
From the initial 1:20 handmade model to the 1:4 inflatable prototype at the factory, and finally the full-scale 1:1 construction, the process not only tested the feasibility of inflating at such a large scale, but also served as repeated rehearsals of the on-site assembly sequence—an essential consideration in design for procurement-based projects.
For the cinema and the reading room, since both inflatables are fully rounded spheres, we used sealed, thickened PVC with seamless welding to achieve a smooth, glossy surface.During the 1:2 prototyping of the cinema inflatable, several unexpected issues emerged: the combined weight of the material and air caused noticeable sagging, and it was challenging to ensure the ring-shaped tail closed tightly after inflation. These problems were gradually resolved through multiple rounds of scale adjustments and fabrication refinements with the manufacturer.
Although the main structure and inflatables were prefabricated, on-site work was still needed, like the ceiling, railings, and inflatable installation. Early errors and unfamiliar methods made communication more crucial than the drawings. After nearly a month, the result matched the plan, and local workers, once skeptical, acknowledged, “It really looks good.
Although small in scale, this project was a comprehensive practice for our team in agricultural and cultural tourism. Like most projects in this field, it involved learning through experience, with challenges and revisions along the way. In the end, thanks to everyone’s cooperation, the result was playful and enjoyable, much like the name “Down in the Clouds ”.
Project Name: ‘Down in the Clouds’Farm Field Renovation
Project Type: Renovation /Installation
Project Location: Dun’ao Village, Xiangshan,Ningbo, Zhejiang Province
Completion Date: April 2024
Site Area: 150m²
Building Area: 290m²
Design: Practice on Earth + Increments StudioContact Information:
Practice on Earth: http://www.practiceonearth.com
Increments Studio: http://www.incrementsstudio.comDesign Team:
Wu Haotian, Wang Yun, Lü Yancheng (Practice on Earth)
Hu Liang, Naomi Ng (Increments Studio)
Client: Dun’ao Village Collective Economic Cooperative
Operator: Ningbo Xiangwang Cultural Tourism Co., Ltd.
Inflatable Manufacturer: Shanghai Congxi Equipment
Local Construction Team: Huang Lunyü, Wang Haihua, Master Song, and others
Container Fabrication: Ye Zhongdong’s Team
Photography Credit: Wang Yun
Increments Studio 公式サイト
https://incrementsstudio.com/down-in-the-clouds