
Rendering © Outline Pictures / WOOW Studio
オーストリアのウィーンに位置する〈フランシス(Francis)〉は、1970年代に建てられた駅とオフィスビルの改修プロジェクトです。2つの地区を分断する「都市の障壁」であった既存建築を、歩行者ネットワークを組み込むことで「都市をつなぐ存在」へと再生しています。
DMAA(Delugan Meissl Associated Architects)とJWA(Josef Weichenberger Architects)が設計しました。
注目ポイント
- 地区の結節点へと改修する、都市スケールの再生戦略
- 都市空間と公共空間を連続させる、透過性と開放性の高い基壇部デザイン
- 解体、新築、改修の可能性を総合的に評価するBIMやデジタルツインによる解析
(以下、DMAAから提供されたプレスキットのテキストの抄訳)

© Gebhard Sengmüller

© Gebhard Sengmüller
DMAAとJWAは、フランツ・ヨーゼフ駅とその上部のオフィスビルを再生した。かつて地区の中心に位置しながら通行を妨げていたこの建築を、アルタン地区の透明で透過性のある新たな中心的存在へと変貌させたのである。
改築を決定づけた要因は、プロジェクトが生態系バランスに与える顕著な影響であった。この選択により、膨大な量のCO2の削減を実現した。

© Christian Pichlkastner

© Christian Pichlkastner
〈フランシス〉は、ウィーン第9区における新たな都市的結節点として再編された。新たに整備された歩行者ネットワークが、終着駅の線路と旧オーストリア銀行ビルによって長年分断されていた2つの地区を結びつけている。
2.4ヘクタールのアルタン地区は、今や街区の中核的な連結要素として機能し、再開発の主要目標である「地域の居住性と生活の質の向上」を実現した。


Diagram

Diagram
本プロジェクトは、既存建築の再生に潜む都市開発と環境の可能性を明示するものである。
土地および資源の不足が深刻化する現代において、価値ある既存構造物の保存と再利用は、きわめて意義深い選択である。
グレーエミッション(建設・解体時の環境負荷)の多くは鉄骨およびコンクリート構造体に含まれる。〈フランシス〉では、改修によりCO2排出量を新築する際の27,595トンから8,970トンへと削減し、実に67%の減少を達成した。

Diagram

Diagram
建築家・構造技師ヴェルナー・ゾベック(Werner Sobek)の研究によれば、122,480トンのコンクリートと10,944トンの鉄骨が節約された。これは原材料不足および気候変動の観点から画期的な成果である。
さらに、改修期間中も地域住民の生活品質が維持された。解体と新築を回避したことにより、推定1万台分のトラック輸送が削減されたのである。解体・撤去・リサイクル作業は建物内部および地下荷役場を通じて行われ、粉塵・騒音・交通への影響を最小限に抑えた。

© Gebhard Sengmüller

© Gebhard Sengmüller
設計の前提として、DMAAとJWAは、当時の設計者カール・シュヴァンツァー(Karl Schwanzer)の構想を歴史資料から読み解き、1970年代に建設された既存建物の構造と意図を徹底的に分析した。
さらにBIMを活用して建物のデジタルツインを作成し、コンクリート構造体の状態分析および改修による影響評価を包括的に実施した。

Diagram
1970年代に作成された鉄筋コンクリート構造は、構造力学・防火・音響性能の観点からも再評価を行った。かつてオーストリア銀行本社として使われていた建物は、鏡面ファサードと大階段が特徴であったが、それらは閉鎖性と記念碑的過剰性を強調していた。改修により、これら時代遅れの要素は除去された。

Diagram
計画の主眼の1つは、近隣地域への開放であった。再生された建築には、憩いの場としての都市空間、準公共空間、バリアフリーアクセス、そして開放的なレストランスペースが導入された。
オフィスビルの規模と本質を維持しながら、新たな開放空間を形成することで、ユリウス・タンドラー広場は景観とアクセスの両面で格段に魅力を増した。

© Christian Pichlkastner

© Gebhard Sengmüller
新たに設けられた中庭広場は路面より9mの高さに位置し、鉄道トンネルの上部に展開する。これにより、既存のシュピッテラウアー広場、リヒテンタラー広場、ユリウス・タンドラー広場の貴重なオープンスペースが連結された。
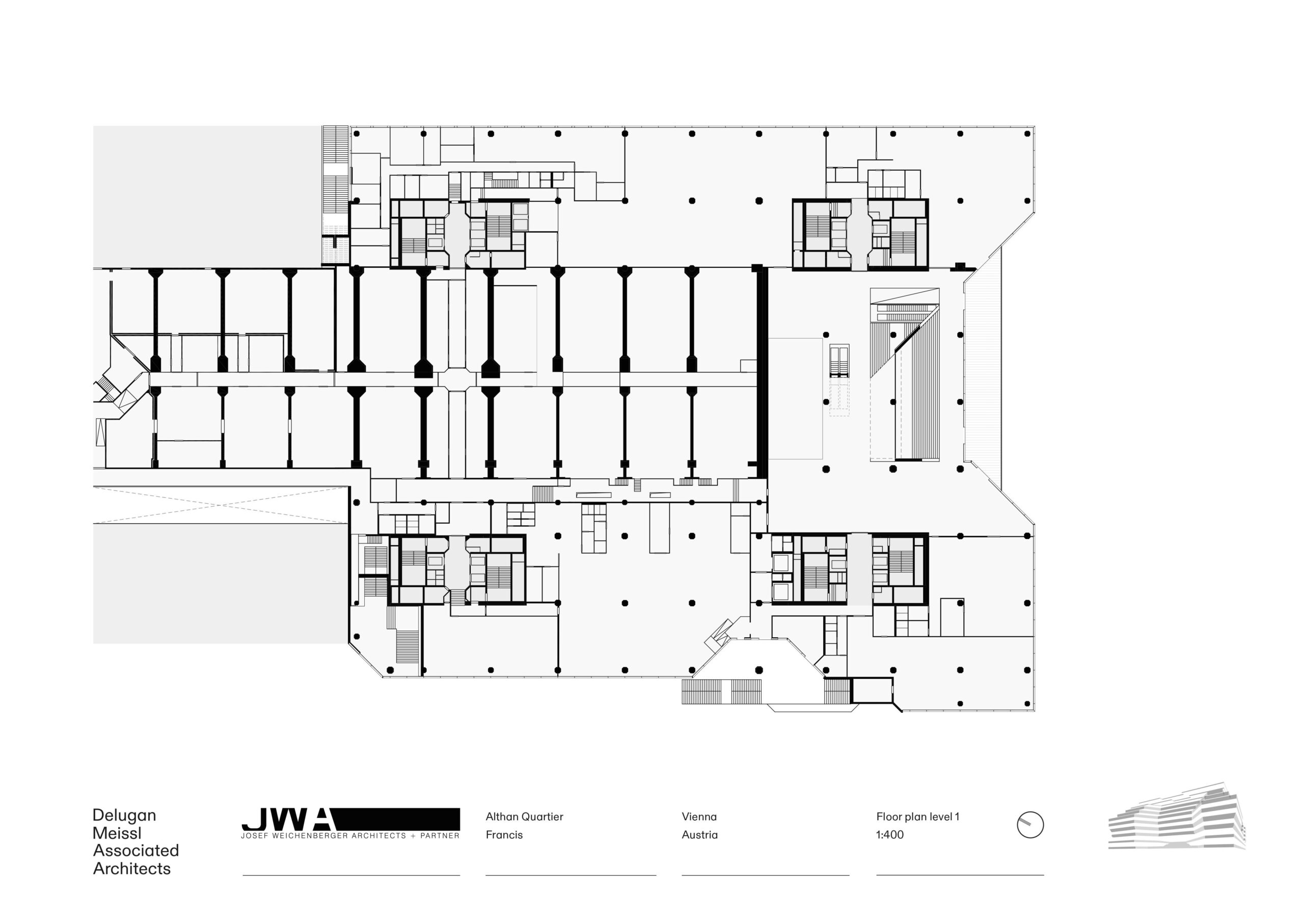
プロジェクトの主要条件は、歩行者透過性、ユリウス・タンドラー広場への開放性、用途の多様化、都市中核部の再集約化、そして都市空間への調和的統合であった。

© Christian Pichlkastner

© Christian Pichlkastner

© Christian Pichlkastner
建物の外観は鏡面仕上げから、微細なエンボス加工を施したステンレス鋼製ファサードへと更新された。これにより、眩しさのない絹のようなマットな質感が実現され、テラスがレストランやオフィスの追加開放空間として機能している。
また、基壇部の開放的なデザインによって、ユリウス・タンドラー広場との空間的連続性が強化され、駅ホールへの誘引性が向上した。北側背面では1970年代の連結構造物を撤去し、カール・シュヴァンツァーの当初構想であった立方体の孤立建築へと回帰した。

© Christian Pichlkastner
建物には2層の増築を行ったが、建物の輪郭から後退配置されたため、既存景観に自然に溶け込んでいる。
広々とした屋外エリアを備えた8階建てオフィス棟は、約40,000m²の有効面積を提供し、リヒテンシュタイン公園や市街中心部、さらにはシュテファン大聖堂までを一望する。公共交通網へのアクセスは数分圏内で、ドナウ運河沿いの自転車ルートとも連携している。1階には安全な駐輪場が整備され、物流動線は地下荷役場を経由することで地上交通を最小限に抑えている。

© Christian Pichlkastner

© Christian Pichlkastner
本プロジェクトは、既存構造の経済性と柔軟性を最大限に活かしている。10mの柱スパンと取り外し可能なプレファブリケーション天井により、改修設計に高い自由度を確保した。新築では稀な3.5mの天井高は、明るく開放的な空間体験をもたらす。
現代の安全基準、建築物理、耐震性への適合に加え、建材の高い環境基準を満たした結果、本プロジェクトはオーストリア持続可能建築評議会(ÖGNI)のゴールド認証を取得した。これは都市再生の新たなモデルケースとしての意義を裏付けるものである。

© Christian Pichlkastner
〈フランシス〉は、既存建築構造の知的な活用を実証するとともに、生態学的持続可能性と都市的統合の新たな基準を提示している。
「生態学的理由に加え、モダニズムの精神で開発されたこのモジュール構造の優れた空間的品質と柔軟性も、既存建築構造を保存する利点として挙げられる。」
ディートマー・ファイステル(Dietmar Feistel)
DMAA パートナー

© Christian Pichlkastner

© Christian Pichlkastner

© Christian Pichlkastner

© Gebhard Sengmüller

© Christian Pichlkastner

© Christian Pichlkastner

© Christian Pichlkastner

© Christian Pichlkastner

以下、DMAAのリリース(英文)です。
Althan Quartier Francis
New life at Franz-Josefs-Bahnhof: Delugan Meissl Associated Architects (DMAA) and Josef Weichenberger Architects (JWA) transformed the terminus station and the office building above it under the name Francis from an impassable barrier in the centre of the district into a transparently permeable centrepiece of the new Althan Quartier.
The decisive factor in the decision to convert, i.e. to demolish, redevelop and add storeys, was the significant impact on the ecological balance of the project. This meant that considerable amounts of CO2 could be saved.
From a split neighbourhood to casual transparency
With Francis and the Althan Quartier around Franz-Josefs-Bahnhof (Franz-Josef-Station), a new urban and also connecting quarter is being established in Vienna‘s ninth district.
New thoroughfares form a bridge between the Spittelau and Lichtental districts, which were long separated by the railway tracks of the terminus station and the previously inaccessible former Bank Austria building. The 2.4-hectare site of the Althan Quartier now serves as a central connecting element in the district. This means that one of the main objectives of the conversion has been achieved: a better quality of stay and life for the neighbourhood.
Conversion or the beauty of chances
The project illustrates the potential for urban development and the environment that lies in the transformation of existing buildings. Particularly in times of land and resource scarcity, the preservation and further development of valuable existing structures is worthwhile.
As a large proportion of the so-called grey emissions are bound up in the steel and concrete supporting structure, conversion in the case of Francis means enormous ecological benefits: instead of 27,595 tonnes of CO2 for demolition and new construction, the value for conversion is 8,970 tonnes of CO2 – a saving of 67 percent. According to the results of a study by sustainability expert, architect and civil engineer Werner Sobek, 122,480 tonnes of concrete and 10,944 tonnes of steel were saved, which is groundbreaking regarding the shortage of raw materials and climate change.
In addition, the quality of life of local residents was maintained during the renovation – an estimated 10,000 lorry journeys were avoided by not demolishing and rebuilding the existing. Necessary dismantling work, removal and recycling were carried out inside the building and in the underground loading yard, minimising dust, noise and construction site traffic.
Study and analysis of the existing building
The new design was preceded by an extensive reading and understanding of the existing building from the 1970s. Using historical plans and documents, DMAA and JWA analysed and internalised the initial ideas of the original architect Karl Schwanzer in order to make a fundamental decision between demolition and conversion. With the help of BIM (Building Information Modelling), a digital twin of the existing building was created, which enabled comprehensive studies of the concrete cubature and the consequences of possible adaptations. The potential of the existing building with its economically optimised reinforced concrete structure, which was exceptional for the 1970s, was thoroughly examined in terms of statics, noise and fire protection as well as suitability in terms of building physics.
Characteristics of the existing building in its function as the headquarters of Bank Austria were the mirrored façade and a striking, expansive but almost unused staircase. The mirrored façade emphasised the hermetic nature of the building, while the monumental gesture of the external staircase dominated the area of Julius-Tandler-Platz. The remodelling allowed these outdated stylistic elements to be removed.
Development of the new
One of the main focuses of the planning process was to create a new opening to the neighbourhood: new urban places to linger, semi-public spaces, barrier-free access and restaurants with open spaces were to be created. The dimensions and substance of the office building were retained, but new open spaces were created, making Julius-Tandler-Platz much more attractive with a new look and increased accessibility.
Situated nine metres above street level and above the tracks of the railway tunnel, the new plaza level in the inner courtyard links the valuable open spaces of Spittelauer Platz, Lichtentaler Platz and Julius-Tandler-Platz.
Decisive premises of the project development were the pedestrian permeability, the opening to Julius-Tandler-Platz, the broadest possible mix of uses, the redensification of an urban core zone and the harmonious integration into the urban space.
The façade of the building was freed from its mirroring. The new stainless steel cladding of the façade has a glare-free and silky matt appearance thanks to its fine embossing, while the terraces create additional open spaces for restaurants and offices and a counter-design to the building‘s previous seclusion.
Another planning focus was on the design of a vivid base zone. The extensive opening of the base achieves the desired spatial relationship to Julius-Tandler-Platz, makes the station hall more attractive and creates an inviting connection to the central plaza level. At the northern rear of the building, a connecting structure from the 1970s, between the office complex and the garage, was removed in order to return to Karl Schwanzer‘s original idea of a cubic solitary building.
The redensification was achieved by means of a two-storey extension, which was staggered back in line with the contours of the building and thus blends almost imperceptibly into the physiognomy of the existing structure.
The eight office storeys with their spacious outdoor areas offer around 40,000 m² of usable space, looking out over the neighbouring palaces, Liechtenstein Park and across the city centre to St. Stephen‘s Cathedral. The optimal connection to the local and long-distance transport network, with all major means of public transport accessible within a few minutes, is forward-looking. The connection to the nearby bike routes along the Danube Canal is just as ideal. Secure bicycle parking spaces are available on the first floor of Francis. The intelligence of the building is also evident in the supply and disposal system: this is organised via the underground loading yard, thus keeping above-ground delivery traffic to a minimum.
The conversion project benefits from the intelligent economy of the existing building‘s skeleton structure. Column spacing of 10 metres and the removable prefabricated ceiling allow the greatest possible flexibility for the design of the conversion. Attractive room heights of up to 3.5 metres, which are rarely realized in new buildings, provide flair and brightness.
The comprehensive adaptation to today‘s safety standards, safety technology, building physics, statics and earthquake resistance, as well as the achievement of gold certification from the ÖGNI (Austrian Sustainable Building Council/ Österreichische Gesellschaft für Nachhaltige Immobilienwirtschaft) through high ecological standards for building material, underline the importance of this project as a model for future urban transformations.
The Francis conversion project thus demonstrates the intelligent utilisation of existing building structures and sets new standards in terms of ecological sustainability and urban integration.
»In addition to ecological reasons, the great spatial quality and flexibility of this modular structure, developed in the spirit of modernism, also speak in favour of preserving the existing building fabric.«
Dietmar Feistel, DMAACATEGORY
Office, Gastronomy,
Retail, InfrastructureADRESS
Julius Tandler Platz 3
1090 Vienna, AustriaSTART OF PLANNING
2016START OF CONSTRUCTION
Spring 2022COMPLETION
End of 2024FLOOR AREA
ca. 60.000 m²GROSS FLOOR AREA
ca. 70.000 m² (above ground)
ca. 11.000 m² (below ground)GROSS VOLUME
ca. 280.000 m³ (above ground)
63.000 m³ (below ground)HEIGHT
45 mNUMBER OF LEVELS
11NUMBER OF BASEMENTS
2VISUALIZATION
Outline Pictures / WOOW Studio (bird eye view)PHOTOGRAPHER
Christian Pichlkastner
Gebhard SengmüllerART IN CONSTRUCTION
Steinbrener/Dempf & HuberIN COLLABORATION WITH
Josef Weichenberger Architectsas ARGE AQ-Arch
Delugan Meissl Associated Architects (DMAA) und Josef Weichenberger Architects (JWA)CONSULTANTS
STRUCTURAL ENGINEERING
Spirk + PartnerLIGHTING DESIGN
BartenbachBUILDING PHYSICS
Pilz und PartnerFACADE
Dr Pfeiler GmbHHVACR/ ELECTRICS
ICE Project GroupFIRE SAFETY
BrandratSURVEYOR
Vermessung MeixnerTRAFFIC PLANNER
TraffixPROJECT MANAGEMENT
ICCLIENT
Eristalis Holding GmbH
DMAA 公式サイト
https://www.dmaa.at/work-preview/althan-quartier-francis